Contacto
Cuéntenos sobre sus necesidades

23673 NE 134TH LANE ROAD

Casa En Venta
$169,900

BTC: 5.66333333

ETH: 84.95000000

-$29K (2025/08/01)
499 días
Frente al mar
2 camas
1 baños
612 sqft
Est. Rango de ventas estimado: $0 - $0
$0

Visión general

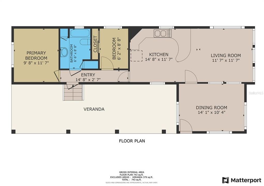
Kerr Key Classic is the perfect way to describe this cute 1965 mobile home with Keys feel and super clean with lots of updates. Outdoors includes 150' of canal water frontage with bulkhead, both open and covered Gazebo dock area with power, water and lighting, built in bench and fish cleaning station. Bring the fishing poles and cold beverages. Home includes 2 bedrooms, 1 bathroom with 612 square feet of living area. Spacious living room and open kitchen area with classic wood cabinets and lots of counter space. Main bedroom is cozy in size with a window AC unit. Bathroom includes tub/shower combo, wood cabinets, storage/linen closet and large counter space. 2nd bedroom is smaller and includes a large closet and storage. There is also an attached 144 sq ft bonus Florida/Dining room with canal views and the new owner could easily add an AC/Heat unit. This home is ready for guests with 2 RV hookups and a large covered front porch with LED lighting. Storage shed(12'x12') included as well with power and water hook-ups. Updates include new flooring throughout the main bedroom and hallway with drywall finishing and paint. Roof sealed in 2022. Lake Kerr is approx. 2800 acre spring fed lake and 2nd largest lake in Marion County. Located in the Heart of the Ocala National Forests. Lake Kerr also has access to Little Lake Kerr(Lake Werner). Some of the best fishing in Central Florida with largemouth bass, bream, catfish, specks and more to challenge you daily. Unique shape of the lake lends great opportunities for every kind of watersports including wakeboarding, waterskiing, canoeing, kayaking, tubing or just going for a relaxing boat cruise. There is only one public boat ramp(Morehead Park) with beautiful Kaufman Island located in the middle of lake.Located in the heart of the Ocala National Forest w/ beautiful Salt Springs swim area, boat launch and short ride to Lake George and the St. Johns River. Salt Springs is also home to miles and miles of ATV/SxS, Horseback and hiking trails. Great fishing year round in the many lakes, rivers and forest ponds, and don't forget about the excellent hunting too. Close to local shopping including grocery store, Dollar General, hardware, gas station, great restaurants, entertainment and more. Only a short 30 minute drive to Ocala or Palatka for all your needs.

Ubicación

Hechos y características

Tipo:
Residential
Estacionamiento:
Boat / RV Parking
Año de construcción:
1965
Lote:
0.41 Hectáreas
Calefacción:
Other / Wall Units / Window Unit
precio por sq. medidor:
$278
Enfriamiento:
Wall/Window Unit(s)
HOA:
Sin datos
Más hechos y características
  • Piso

    • Luxury Vinyl

    Calefacción

    • Other

    • Wall Units / Window Unit

    Enfriamiento

    • Wall/Window Unit(s)

    Accesorios

    • Dryer

    • Electric Water Heater

    • Range

    • Range Hood

    • Refrigerator

    • Washer

    Otras características interiores

    • Eating Space In Kitchen

    • Solid Wood Cabinets

    • Window Treatments

    Dormitorios y baños

    • Dormitorios: 2

    • Baños completos: 1

  • Estacionamiento

    • Boat

    • RV Parking

    Propiedad

    • Pisos: One

    • Características Exteriores: Other

    Lote

    • Lote: 0.41 Hectáreas

    Otra Información de Propiedad

    • Número de Parcela: 1138004000

    • Zonificación: R4

  • Tipo y estilo

    • Tipo de propiedad: Residential

    • Subtipo de propiedad: Mobile Home

  • Utilidad

    • Electricity Connected

    • Sewer Connected

    • Water Connected

  • Otra información financiera

    • Importe anual de impuestos: $1,307

  • Detalles de la fuente

    • MLS ID: OM682675

    Otros hechos

    • Materiales de construcción: Metal Siding

    • Detalles de la fundación: Pillar/Post/Pier

    • Características de lavandería: Other

    • Características del lote: Cleared / FloodZone / In County

    • Características del patio y el porche: Covered / Deck / Front Porch

    • Caras de dirección: East

    • Frente al mar: Si

    • Nombre del cuerpo de agua: LAKE KERR

    • Salón: 612

    • Fuente de agua: Well

    • Tamaño de la parcela: 150 x 118

    • Nombre de subdivisión: LAKE KERR KEY

Casas similares

15080 NE 242ND AVENUE placeholder 15080 NE 242ND AVENUE
39 días
En Venta
$165,000
2 camas 2 baños 1,188 sqft
15080 NE 242ND AVENUE
24797 NE 135TH STREET placeholder 24797 NE 135TH STREET
-$5K (2025/11/24)
En Venta
$154,900
3 camas 2 baños 1,440 sqft
24797 NE 135TH STREET
13425 NE 217TH COURT placeholder 13425 NE 217TH COURT
-$15K (2025/11/12)
En Venta
Casa
$220,000
2 camas 2 baños 1,072 sqft
13425 NE 217TH COURT
24089 NE 152ND LANE placeholder 24089 NE 152ND LANE
67 días
En Venta
Casa
$129,900
2 camas 2 baños 925 sqft
24089 NE 152ND LANE
14010 NE 250TH CIRCLE placeholder 14010 NE 250TH CIRCLE
-$2K (2025/11/03)
En Venta
Casa
$187,500
2 camas 1 baños 672 sqft
14010 NE 250TH CIRCLE
24839 NE 130TH STREET placeholder 24839 NE 130TH STREET
-$30K (2025/11/19)
En Venta
Casa
$129,900
2 camas 1 baños 1,038 sqft
24839 NE 130TH STREET
14365 NE 252ND COURT ROAD UNIT 123 placeholder 14365 NE 252ND COURT ROAD UNIT 123
104 días
En Venta
$135,000
1 camas 1 baños 511 sqft
14365 NE 252ND COURT ROAD UNIT 123
23880 NE 121ST LANE placeholder 23880 NE 121ST LANE
-$5K (2025/09/16)
En Venta
$212,900
3 camas 2 baños 1,620 sqft
23880 NE 121ST LANE

The multiple listing information is provided by the Stellar MLS from a copyrighted compilation of listings. The compilation of listings and each individual listing are ©2025-present Stellar MLS. All Rights Reserved. The information provided is for consumers' personal, noncommercial use and may not be used for any purpose other than to identify prospective properties consumers may be interested in purchasing. All properties are subject to prior sale or withdrawal. All information provided is deemed reliable but is not guaranteed accurate, and should be independently verified. Listing courtesy of: ROUNTREE REALTY CORP.