Contacto
Cuéntenos sobre sus necesidades

HS-58 ROSARIO ARUTI ST. LEVITTOWN LAKES

Multifamiliar Vendido Recientemente
$300,000

BTC: 3.45423143

ETH: 150.00000000

Fecha de venta: 2025-11-25
Nuevo
7 camas
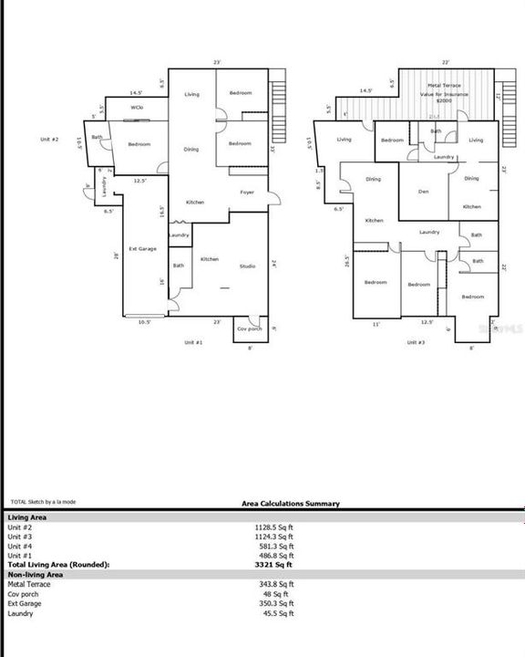
3,321 sqft
Est. Rango de ventas estimado: $0 - $0
$0

Visión general

Multi-family building with 4 units, one electricity meter and one water meter for all units. First Level: Unit #1: Studio, kitchen, 1 bathroom, laundry room, and extended garage for 1 car. Unit #2: 3 bedrooms, kitchen, bathroom, living/dining room, and pantry. Second Level: Unit #3: 2 bedrooms, 1 bathroom, kitchen, living room, and laundry room. Unit #4: 3 bedrooms, 2 bathrooms, kitchen, living room, dining room, and laundry room. Aluminum roof on the second floor. The property has a solar panel lease.

Ubicación

Hechos y características

Tipo:
Residential Income
Estacionamiento:
Sin datos
Año de construcción:
1970
Lote:
0.11 Hectáreas
Calefacción:
None
precio por sq. medidor:
$90
Enfriamiento:
Mini-Split Unit(s)
HOA:
Sin datos
Más hechos y características
  • Calefacción

    • None

    Enfriamiento

    • Mini-Split Unit(s)

    Dormitorios y baños

    • Dormitorios: 7

  • Propiedad

    • Pisos: Two

    • Características Exteriores: Balcony / Fenced / Garden

    Lote

    • Lote: 0.11 Hectáreas

    Otra Información de Propiedad

    • Número de Parcela: 06100234258001

    • Zonificación: R-1

  • Tipo y estilo

    • Tipo de propiedad: Residential Income

    • Subtipo de propiedad: Quadruplex

  • Utilidad

    • Electricity Connected

    • Solar

    • Water Connected

    Energía verde

    • Solar Energy Storage On Site

  • Detalles de la fuente

    • MLS ID: J995723

    Otros hechos

    • Materiales de construcción: Block / Concrete

    • Detalles de la fundación: Block / Concrete Perimeter

    • Características de lavandería: Common Area / Laundry Room

    • Hogar: Si

    • Espacios de garaje: 2

    • Garaje adjunto: Si

    • Garaje: Si

    • Salón: 3321

    • Nombre de subdivisión: LEVITTOWN LAKES

Casas similares

17 AL-8 PRADERA NORTE placeholder 17 AL-8 PRADERA NORTE
Nuevo
Vendido Recientemente
Casa
$240,000
4 camas 3 baños 2,467 sqft
17 AL-8 PRADERA NORTE
AH12 URB. LAS CASCADAS CALLE AGUAS CRISTALINAS placeholder AH12 URB. LAS CASCADAS CALLE AGUAS CRISTALINAS
Nuevo
Vendido Recientemente
Casa
$385,000
4 camas 2 baños 2,200 sqft
AH12 URB. LAS CASCADAS CALLE AGUAS CRISTALINAS
 placeholder
Nuevo
Vendido Recientemente
Casa
$285,000
4 camas 2 baños 1,730 sqft
AA-8 L CALLE ANA placeholder AA-8 L CALLE ANA
Nuevo
Vendido Recientemente
Casa
$215,500
3 camas 2 baños 1,479 sqft
AA-8 L CALLE ANA
N CALLE BAHIA GUANICA UNIT RF6 placeholder N CALLE BAHIA GUANICA UNIT RF6
Nuevo
Vendido Recientemente
Casa
$294,000
3 camas 2 baños 1,358 sqft
N CALLE BAHIA GUANICA UNIT RF6
Calle 11 M12 URB RIVERVIEW placeholder Calle 11 M12 URB RIVERVIEW
Nuevo
Vendido Recientemente
Casa
$210,000
4 camas 2 baños
Calle 11 M12 URB RIVERVIEW
D-36 CALLE 9 placeholder D-36 CALLE 9
1 días
Vendido Recientemente
Casa
$208,000
4 camas 2 baños 1,847 sqft
D-36 CALLE 9
Urb Toaville #18 CALLE JÚPITER placeholder Urb Toaville #18 CALLE JÚPITER
3 días
Vendido Recientemente
Casa
$290,000
3 camas 2 baños 3,129 sqft
Urb Toaville #18 CALLE JÚPITER

The multiple listing information is provided by the Stellar MLS from a copyrighted compilation of listings. The compilation of listings and each individual listing are ©2025-present Stellar MLS. All Rights Reserved. The information provided is for consumers' personal, noncommercial use and may not be used for any purpose other than to identify prospective properties consumers may be interested in purchasing. All properties are subject to prior sale or withdrawal. All information provided is deemed reliable but is not guaranteed accurate, and should be independently verified. Listing courtesy of: STELLAR NON-MEMBER OFFICE