Contacto
Cuéntenos sobre sus necesidades

2865 OCOEE APOPKA ROAD UNIT 3

Comercial En Venta
$2,310,000

BTC: 77.00000000

ETH: 1,155.00000000

-$90K (2025/10/02)
195 días
0 room(s)
Est. Rango de ventas estimado: $0 - $0
$0

Visión general

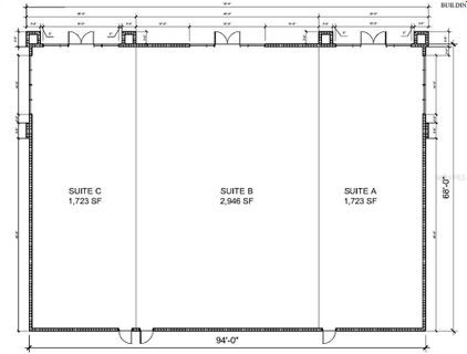
Under Construction. Building #03 is available for purchase at Lake Carter Exchange, a distinguished mixed-use development in Apopka’s East Shore at the intersection of Ocoee-Apopka Road and W Keene Road. This dark gray shell retail building features a customizable interior, shared patio space and end-unit dedicated patio space. The shell delivery provides buyers with maximum flexibility to design the interior layout, with three front entrances supporting up to three unique suites. The development is strategically located less than one mile from Advent Health’s seven-story, 120-bed hospital and opposite a new Publix Supermarket development. Situated in the vibrant East Shore trade area, which includes 5,000 planned residences and an average household income above $100k, this Class A property is perfectly positioned for businesses targeting growth in Central Florida’s second-fastest-growing city. Contact us for pricing details/incentives and to schedule a tour of this exceptional commercial opportunity.

Ubicación

Hechos y características

Tipo:
Commercial Sale
Estacionamiento:
Sin datos
Año de construcción:
2025
Lote:
0.23 Hectáreas
Calefacción:
Sin datos
precio por sq. medidor:
Sin datos
Enfriamiento:
None
HOA:
Sin datos
Más hechos y características
  • Enfriamiento

    • None

  • Propiedad

    • Pisos: One

    Lote

    • Lote: 0.23 Hectáreas

    Otra Información de Propiedad

    • Número de Parcela: 292128437603000

  • Tipo y estilo

    • Tipo de propiedad: Commercial Sale

    • Subtipo de propiedad: Retail

  • Utilidad

    • Public

    • Underground Utilities

  • Detalles de la fuente

    • MLS ID: O6300766

    Otros hechos

    • Materiales de construcción: Block / Brick / Stucco

    • Detalles de la fundación: Stem Wall

    • Fuente de agua: Public

Casas similares

2595 OCOEE APOPKA ROAD UNIT 6 placeholder 2595 OCOEE APOPKA ROAD UNIT 6
-$10K (2025/10/02)
En Venta
Comercial
$1,840,000
0 room(s)
2595 OCOEE APOPKA ROAD UNIT 6
2535 OCOEE APOPKA ROAD UNIT 5 placeholder 2535 OCOEE APOPKA ROAD UNIT 5
-$250K (2025/10/02)
En Venta
Comercial
$2,560,000
0 room(s)
2535 OCOEE APOPKA ROAD UNIT 5
2100 WEST ROAD placeholder 2100 WEST ROAD
482 días
En Venta
Lotes / Tierras
$2,000,000
0 room(s)
2100 WEST ROAD

The multiple listing information is provided by the Stellar MLS from a copyrighted compilation of listings. The compilation of listings and each individual listing are ©2025-present Stellar MLS. All Rights Reserved. The information provided is for consumers' personal, noncommercial use and may not be used for any purpose other than to identify prospective properties consumers may be interested in purchasing. All properties are subject to prior sale or withdrawal. All information provided is deemed reliable but is not guaranteed accurate, and should be independently verified. Listing courtesy of: THE MARKS GROUP REALTY, LLC