Contacto
Cuéntenos sobre sus necesidades

13307 TULA LOOP

Casa En Venta
$282,900

BTC: 9.43000000

ETH: 141.45000000

-$27K (2025/11/18)
120 días
2 camas
2 baños
1,032 sqft
Est. Rango de ventas estimado: $0 - $0
$0

Visión general

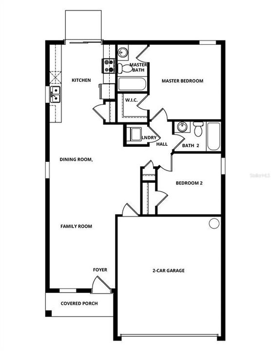
Under Construction. Introducing the Alafia model at Tula Parc, a welcoming 2-bedroom, 2-bathroom home that blends modern style with everyday comfort. Designed with an emphasis on easy living, this home features an open-concept layout that creates a seamless flow between the kitchen, dining area, and family room—perfect for hosting friends or enjoying a quiet night in. The kitchen stands out with its granite countertops, stainless steel Whirlpool® appliances, and 36” wood cabinets with crown molding, offering plenty of storage and a polished look. Energy-efficient touches such as double-pane Low-E windows, LED flush mount Energy Star® lighting, and a programmable thermostat help keep utility costs low while keeping your home comfortable year-round. Your private master retreat provides a relaxing escape with a soaking tub, dual shower, spacious vanity, and a large walk-in closet. The home also features a separate laundry room, a convenient hallway linen closet, and a two-car garage for added functionality. Curb appeal shines with professional landscaping and a charming covered front porch, ideal for enjoying your morning coffee or unwinding in the evenings. At Tula Parc, you’ll also enjoy community amenities such as a gazebo and playground, all while being just minutes from Little Lake Harris and the Chain of Lakes—a perfect setting for boating, fishing, kayaking, and outdoor fun. Nature parks, reserves, and Orlando’s vibrant entertainment, dining, and shopping are just a short drive away, giving you the best of both tranquility and convenience. The Alafia model offers comfort, charm, and a fantastic location—everything you need to enjoy Florida living at its finest.

Ubicación

Hechos y características

Tipo:
Residential
Estacionamiento:
Driveway / Garage Door Opener
Año de construcción:
2026
Lote:
0.10 Hectáreas
Calefacción:
Electric / Heat Pump
precio por sq. medidor:
$274
Enfriamiento:
Central Air
HOA:
$95
Más hechos y características
  • Piso

    • Carpet

    • Luxury Vinyl

    Calefacción

    • Electric

    • Heat Pump

    Enfriamiento

    • Central Air

    Accesorios

    • Dishwasher

    • Disposal

    • Electric Water Heater

    • Exhaust Fan

    • Ice Maker

    • Microwave

    • Range

    • Refrigerator

    Otras características interiores

    • Ceiling Fan(s)

    • Kitchen/Family Room Combo

    • Open Floorplan

    • Pest Guard System

    • Primary Bedroom Main Floor

    • Stone Counters

    • Thermostat

    • Walk-In Closet(s)

    • Window Treatments

    Dormitorios y baños

    • Dormitorios: 2

    • Baños completos: 2

  • Estacionamiento

    • Driveway

    • Garage Door Opener

    Propiedad

    • Pisos: One

    • Características Exteriores: Irrigation System / Lighting / Sidewalk / Sliding Doors

    Lote

    • Lote: 0.10 Hectáreas

    Otra Información de Propiedad

    • Número de Parcela: 292026020000008100

    • Zonificación: MPUD

  • Tipo y estilo

    • Tipo de propiedad: Residential

    • Subtipo de propiedad: Single Family Residence

  • Utilidad

    • BB/HS Internet Available

    • Cable Available

    • Electricity Available

    • Electricity Connected

    • Fiber Optics

    • Phone Available

    • Public

    • Street Lights

    • Underground Utilities

    • Water Available

    • Water Connected

  • Otra información financiera

    • HOA: $95

    • Frecuencia HOA: Monthly

    • Importe anual de impuestos: $993

  • Detalles de la fuente

    • MLS ID: TB8415319

    Otros hechos

    • Materiales de construcción: Block / Stucco

    • Detalles de la fundación: Slab

    • Características de lavandería: Electric Dryer Hookup / In Kitchen / Inside / Laundry Room / Washer Hookup

    • Características del patio y el porche: Covered / Front Porch / Patio

    • Características de la ventana: Blinds / Double Pane Windows / ENERGY STAR Qualified Windows / Insulated Windows / Low-Emissivity Windows / Window Treatments

    • Caras de dirección: West

    • Estilo arquitectónico: Traditional

    • Espacios de garaje: 2

    • Garaje adjunto: Si

    • Garaje: Si

    • Salón: 1032

    • Fuente de agua: Public

    • Nombre de subdivisión: TULA PARC

Casas similares

13316 TULA LOOP placeholder 13316 TULA LOOP
16 días
En Venta
Casa
$282,900
2 camas 2 baños 1,032 sqft
13316 TULA LOOP
5446 SEA LEOPARD STREET placeholder 5446 SEA LEOPARD STREET
-$16K (2025/11/18)
En Venta
Casa
$359,000
2 camas 2 baños 1,848 sqft
5446 SEA LEOPARD STREET
14233 TASSLEFLOWER COURT placeholder 14233 TASSLEFLOWER COURT
-$9K (2025/11/28)
En Venta
$239,900
4 camas 2 baños 1,440 sqft
14233 TASSLEFLOWER COURT
13312 TULA LOOP placeholder 13312 TULA LOOP
21 días
En Venta
Casa
$302,900
3 camas 2 baños 1,206 sqft
13312 TULA LOOP
6153 SAILBOAT AVENUE placeholder 6153 SAILBOAT AVENUE
22 días
En Venta
Casa
$289,000
2 camas 2 baños 1,307 sqft
6153 SAILBOAT AVENUE
4985 GRASSY KNOLL DRIVE placeholder 4985 GRASSY KNOLL DRIVE
-$76K (2025/11/29)
En Venta
Casa
$299,000
3 camas 2 baños 1,747 sqft
4985 GRASSY KNOLL DRIVE
5676 GULF STREAM STREET placeholder 5676 GULF STREAM STREET
29 días
En Venta
Casa
$359,000
4 camas 3 baños 1,915 sqft
5676 GULF STREAM STREET
4861 WATERS GATE DRIVE placeholder 4861 WATERS GATE DRIVE
30 días
En Venta
Casa
$325,000
4 camas 2 baños 1,976 sqft
4861 WATERS GATE DRIVE

The multiple listing information is provided by the Stellar MLS from a copyrighted compilation of listings. The compilation of listings and each individual listing are ©2025-present Stellar MLS. All Rights Reserved. The information provided is for consumers' personal, noncommercial use and may not be used for any purpose other than to identify prospective properties consumers may be interested in purchasing. All properties are subject to prior sale or withdrawal. All information provided is deemed reliable but is not guaranteed accurate, and should be independently verified. Listing courtesy of: LGI REALTY- FLORIDA, LLC