Contacto
Cuéntenos sobre sus necesidades

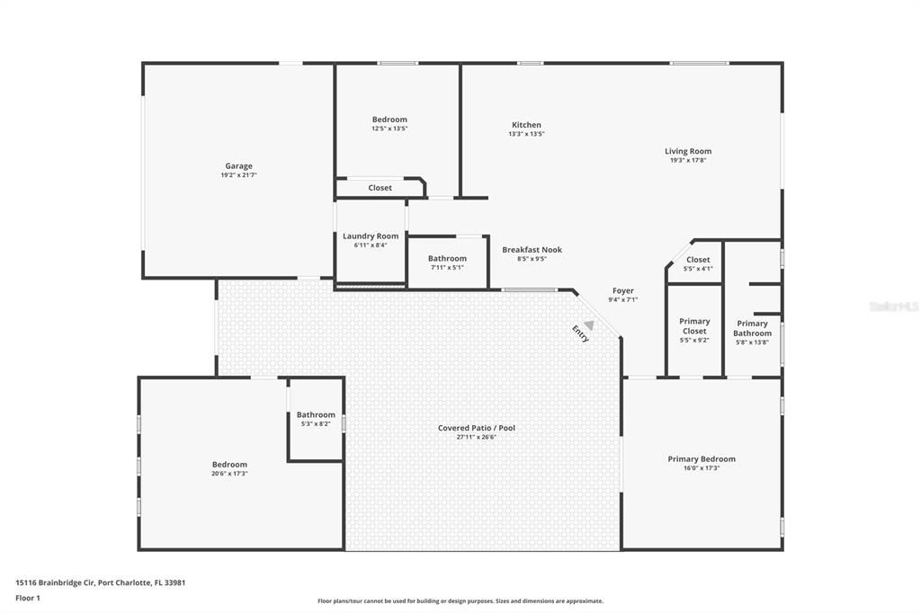
15116 BRAINBRIDGE CIRCLE

Casa En Venta
$489,900

BTC: 7.53692308

ETH: 257.84210526

2 días
Frente al mar
3 camas
3 baños
2,100 sqft
Est. Rango de ventas estimado: $0 - $0
$0

Visión general

Opportunity awaits with this new, unfinished construction built in 2024 and ideally located in Port Charlotte, FL. This property offers a flexible 3-bedroom layout, including a private in-law suite with a full bathroom—perfect for multi-generational living or guest accommodations. The open floor plan is ready for your finishing touches, allowing you to design the interior to your personal taste. Kitchen cabinets are already in place, giving you the freedom to complete the kitchen exactly how you envision. A unique center courtyard enhances the home’s design and features the beginnings of an in-ground pool, creating the potential for a stunning private oasis. Situated on a canal with access to the river and the Gulf, this property combines customization potential with a desirable waterfront lifestyle. A rare chance to finish a nearly new home to your specifications in a prime Florida location. Property is being sold AS-IS. Construction is unfinished and will require completion; buyer to verify condition, permits, zoning, utilities, and suitability for intended use. No warranties or representations are made regarding the completion, condition, or code compliance of the structure.

Ubicación

Hechos y características

Tipo:
Residential
Estacionamiento:
Sin datos
Año de construcción:
2024
Lote:
0.23 Hectáreas
Calefacción:
Central
precio por sq. medidor:
$233
Enfriamiento:
Central Air
HOA:
$120
Más hechos y características
  • Piso

    • Luxury Vinyl

    Calefacción

    • Central

    Enfriamiento

    • Central Air

    Accesorios

    • Microwave

    Otras características interiores

    • Open Floorplan

    • Primary Bedroom Main Floor

    Dormitorios y baños

    • Dormitorios: 3

    • Baños completos: 3

  • Propiedad

    • Pisos: One

    • Piscina Privada: Si

    • Características Exteriores: Other

    Lote

    • Lote: 0.23 Hectáreas

    Otra Información de Propiedad

    • Número de Parcela: 412128431001

    • Zonificación: RSF3.5

  • Tipo y estilo

    • Tipo de propiedad: Residential

    • Subtipo de propiedad: Single Family Residence

  • Utilidad

    • Water Available

  • Otra información financiera

    • HOA: $120

    • Frecuencia HOA: Annually

    • Importe anual de impuestos: $1,976

  • Detalles de la fuente

    • MLS ID: C7519678

    Otros hechos

    • Materiales de construcción: Stucco

    • Detalles de la fundación: Slab

    • Características de lavandería: Electric Dryer Hookup / Laundry Room / Washer Hookup

    • Características de la piscina: Other

    • Caras de dirección: North

    • Frente al mar: Si

    • Espacios de garaje: 2

    • Garaje adjunto: Si

    • Garaje: Si

    • Salón: 2100

    • Fuente de agua: Public

    • Nombre de subdivisión: PORT CHARLOTTE SEC 082

Casas similares

15033 SPANISH POINT DRIVE placeholder 15033 SPANISH POINT DRIVE
1 días
En Venta
Casa
$359,000
3 camas 3 baños 1,857 sqft
15033 SPANISH POINT DRIVE
14059 Barbet Ln, Port Charlotte FL 33981 placeholder 14059 Barbet Ln, Port Charlotte FL 33981
1 días
En Venta
Casa
$349,000
4 camas 2 baños 1,800 sqft
14059 Barbet Ln, Port Charlotte FL 33981
8221 AGATE STREET placeholder 8221 AGATE STREET
1 días
En Venta
Casa
$549,900
3 camas 2 baños 1,663 sqft
8221 AGATE STREET
 placeholder
2 días
En Venta
Casa
$360,000
4 camas 2 baños 1,813 sqft
14120 NAYLOR AVENUE placeholder 14120 NAYLOR AVENUE
5 días
En Venta
Casa
$499,000
3 camas 2 baños 1,680 sqft
14120 NAYLOR AVENUE
13514 KEYSTONE BOULEVARD placeholder 13514 KEYSTONE BOULEVARD
9 días
En Venta
Casa
$465,000
4 camas 3 baños 2,114 sqft
13514 KEYSTONE BOULEVARD
13219 PACE CIRCLE placeholder 13219 PACE CIRCLE
11 días
En Venta
Casa
$374,300
4 camas 2 baños 2,169 sqft
13219 PACE CIRCLE
208 ANTILLA DRIVE placeholder 208 ANTILLA DRIVE
14 días
En Venta
Casa
$515,000
3 camas 2 baños 2,068 sqft
208 ANTILLA DRIVE

The multiple listing information is provided by the Stellar MLS from a copyrighted compilation of listings. The compilation of listings and each individual listing are ©2026-present Stellar MLS. All Rights Reserved. The information provided is for consumers' personal, noncommercial use and may not be used for any purpose other than to identify prospective properties consumers may be interested in purchasing. All properties are subject to prior sale or withdrawal. All information provided is deemed reliable but is not guaranteed accurate, and should be independently verified. Listing courtesy of: THE LANDMARK GROUP SWFL LLC