Contacto
Cuéntenos sobre sus necesidades

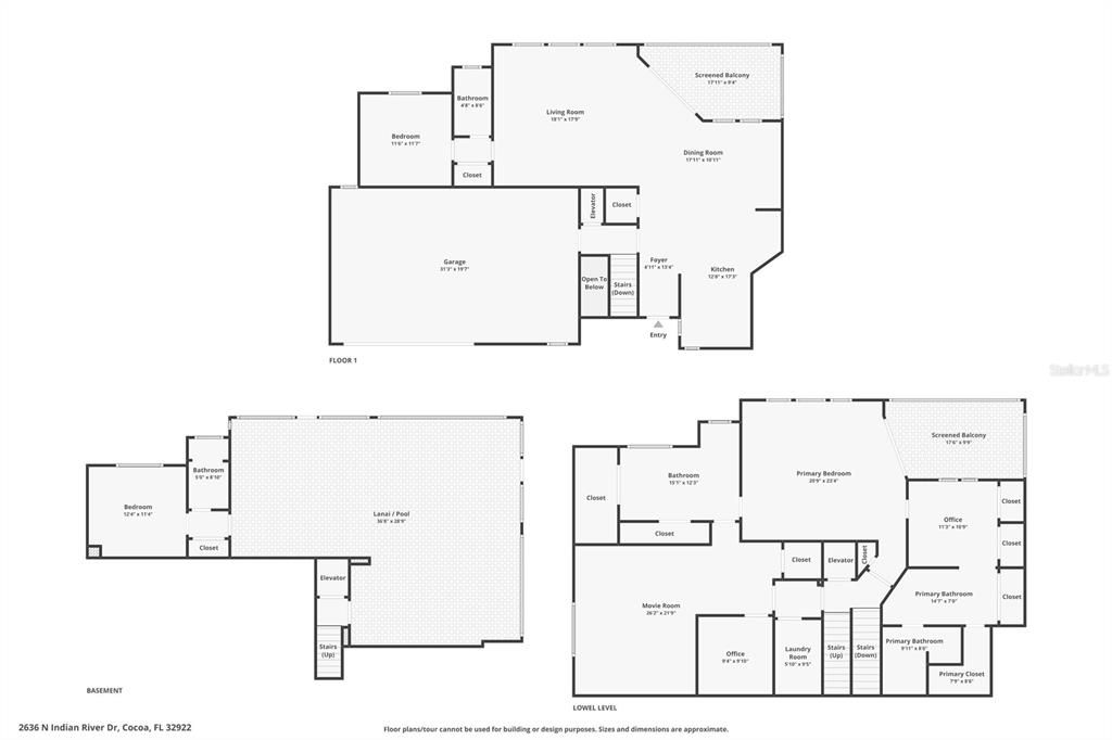
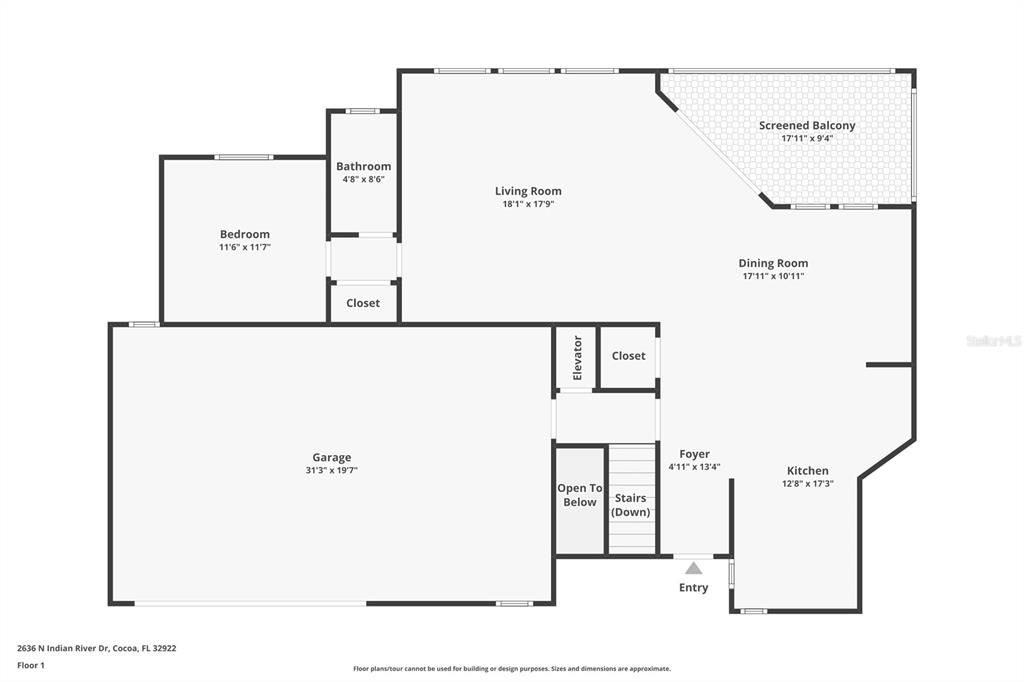
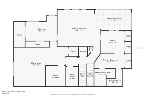
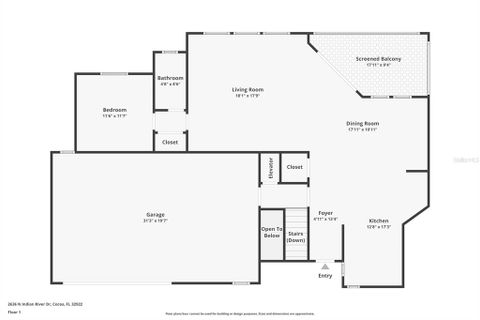
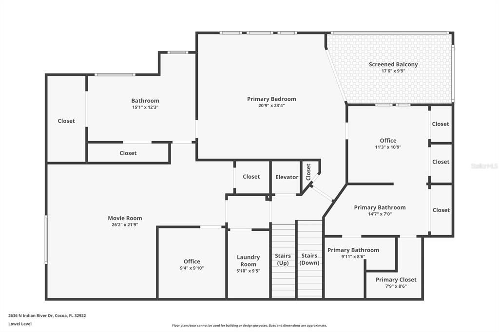
2636 N INDIAN RIVER DRIVE

Casa En Venta
$1,700,000

BTC: 56.66666667

ETH: 850.00000000

70 días
Frente al mar
4 camas
4 baños
3,482 sqft
Est. Rango de ventas estimado: $0 - $0
$0

Visión general

Welcome to your private sanctuary on the shores of the Indian River which could come fully furnished! This stunning riverfront estate blends comfort, style, and breathtaking views in a golf cart-friendly neighborhood just minutes from historic Cocoa Village. With beaches and Cape Canaveral only 10 minutes away, it offers the perfect balance of convenience and the ultimate Florida lifestyle. The property features a private dock and sandy riverfront beach, giving you direct access for boating, paddleboarding, fishing, or simply relaxing by the water. A year-round, climate-controlled indoor pool boasts a summer kitchen with endless river views, while a dedicated theatre room provides the perfect setting for movie nights or entertaining guests. Expansive glass windows, soaring ceilings, and custom finishes create a seamless connection between indoor luxury and outdoor beauty. Every room offers panoramic views of dolphins, sunrises, and even rocket launches from nearby Cape Canaveral. Multiple screened balconies allow you to enjoy morning coffee or evening cocktails in comfort. The gourmet kitchen is equipped with top-tier appliances and designed for both indulgence and entertaining, while spa-inspired baths add to the home’s retreat-like feel. This home also has a brand-new generator and is fully equipped with automatic hurricanes shutters.

Ubicación

Hechos y características

Tipo:
Residential
Estacionamiento:
Sin datos
Año de construcción:
1990
Lote:
0.21 Hectáreas
Calefacción:
Central
precio por sq. medidor:
$488
Enfriamiento:
Central Air
HOA:
Sin datos
Más hechos y características
  • Piso

    • Carpet

    • Ceramic Tile

    Calefacción

    • Central

    Enfriamiento

    • Central Air

    Accesorios

    • Dishwasher

    • Disposal

    • Microwave

    • Range

    • Refrigerator

    Otras características interiores

    • Elevator

    Dormitorios y baños

    • Dormitorios: 4

    • Baños completos: 4

  • Propiedad

    • Pisos: Three Or More

    • Piscina Privada: Si

    • Características Exteriores: Balcony / Hurricane Shutters / Irrigation System / Outdoor Grill / Outdoor Kitchen / Sidewalk / Sliding Doors

    Lote

    • Lote: 0.21 Hectáreas

    Otra Información de Propiedad

    • Número de Parcela: 24 361754A5

    • Zonificación: RU17

  • Tipo y estilo

    • Tipo de propiedad: Residential

    • Subtipo de propiedad: Single Family Residence

  • Utilidad

    • BB/HS Internet Available

    • Cable Available

    • Electricity Available

    • Water Available

  • Otra información financiera

    • Importe anual de impuestos: $10,123

  • Detalles de la fuente

    • MLS ID: S5134740

    Otros hechos

    • Materiales de construcción: Block / Concrete / Stucco / Wood Frame

    • Detalles de la fundación: Slab

    • Características de lavandería: Laundry Room

    • Características del lote: City Lot

    • Características del patio y el porche: Screened

    • Características de la piscina: In Ground / Indoor / Pool Sweep

    • Caras de dirección: West

    • Otras estructuras: Boat House / Outdoor Kitchen

    • Frente al mar: Si

    • Nombre del cuerpo de agua: INDIAN RIVER

    • Espacios de garaje: 2

    • Garaje adjunto: Si

    • Garaje: Si

    • Salón: 3482

    • Fuente de agua: Public

    • Tamaño de la parcela: 73.73 x 120

    • Nombre de subdivisión: CARLTON TERRACE RESUB BLKS A B C

Casas similares

3525 N COURTENAY PARKWAY placeholder 3525 N COURTENAY PARKWAY
-$304K (2025/05/14)
En Venta
Comercial
$1,395,000
0 room(s) 5,240 sqft
3525 N COURTENAY PARKWAY
150 PEACHTREE STREET placeholder 150 PEACHTREE STREET
-$275K (2025/08/13)
En Venta
Multifamiliar
$1,425,000
8 camas 5,450 sqft
150 PEACHTREE STREET
1613 N Indian River Drive, Cocoa FL 32922 placeholder 1613 N Indian River Drive, Cocoa FL 32922
-$100K (2024/08/21)
En Venta
Casa
$1,775,000
5 camas 5 baños 4,372 sqft
1613 N Indian River Drive, Cocoa FL 32922

The multiple listing information is provided by the Stellar MLS from a copyrighted compilation of listings. The compilation of listings and each individual listing are ©2025-present Stellar MLS. All Rights Reserved. The information provided is for consumers' personal, noncommercial use and may not be used for any purpose other than to identify prospective properties consumers may be interested in purchasing. All properties are subject to prior sale or withdrawal. All information provided is deemed reliable but is not guaranteed accurate, and should be independently verified. Listing courtesy of: LEGACY REALTY OF CENTRAL FLORIDA LLC