Contacto
Cuéntenos sobre sus necesidades

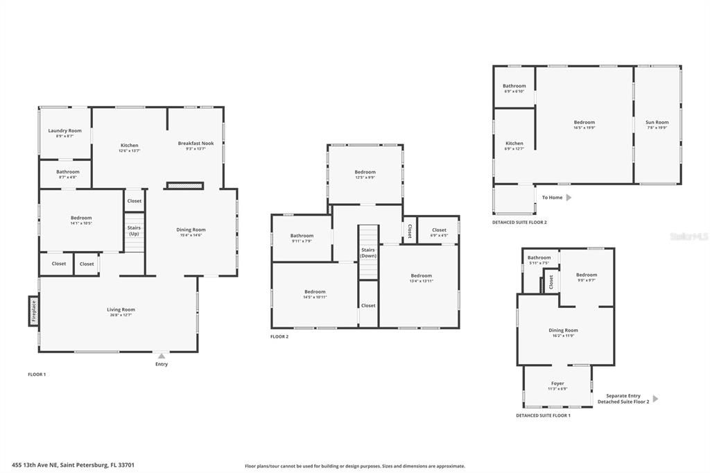
455 13 TH AVENUE NE

Casa Activo con contrato
$1,525,000

BTC: 50.83333333

ETH: 762.50000000

-$100K (2025/02/24)
433 días
5 camas
4 baños
2,906 sqft
Est. Rango de ventas estimado: $0 - $0
$0

Visión general

Under contract-accepting backup offers. Irresistible 1920s Craftsman in Old Northeast – Multi-Generational Living & Income Potential Step inside this charming bungalow and feel instantly at home. Featuring 3 spacious bedrooms, 2 full baths, and a bright Florida room that can serve as an extra bedroom or home office, this home perfectly blends historic character with modern comfort. Heart pine floors, coffered ceilings, custom built-ins, and a wraparound front porch with Cuban tiles add timeless appeal and welcoming charm. The updated kitchen—complete with granite countertops, a gas cooktop, and a walk-in pantry—is ideal for family meals and entertaining. Designed with flexibility in mind, the detached two-car garage features two income-producing accessory dwelling units (ADUs): a spacious one-bedroom with a Florida room, and a bright upstairs studio complete with a full kitchen, bath, and front porch. Perfect for extended family, guests, or rental income, these units offer endless versatility. Plus, the garage itself presents an additional opportunity for conversion into a third ADU. Relax on a serene corner lot with a private patio and mature trees, just two blocks from the waterfront and a short stroll to downtown St. Petersburg, shops, dining, museums, and the Pier. Plans are ready for a pool, and the property offers peace of mind with brand new roofs on both the home and garage, no hurricane damage, and no flood insurance required. This isn’t just a home—it’s a lifestyle. With historic charm, modern updates, and endless possibilities for living, entertaining, and earning income, this property is a rare gem in one of St. Pete’s most coveted neighborhoods. Don’t miss your chance to make it yours!

Ubicación

Hechos y características

Tipo:
Residential
Estacionamiento:
Alley Access / Converted Garage / Driveway / Guest / On Street / Open / Split Garage
Año de construcción:
1920
Lote:
0.15 Hectáreas
Calefacción:
Central
precio por sq. medidor:
$525
Enfriamiento:
Central Air
HOA:
Sin datos
Más hechos y características
  • Piso

    • Carpet

    • Tile

    • Hardwood

    Calefacción

    • Central

    Enfriamiento

    • Central Air

    Accesorios

    • Built-In Oven

    • Cooktop

    • Dishwasher

    • Disposal

    • Dryer

    • Microwave

    • Refrigerator

    • Washer

    Otras características interiores

    • Built-in Features

    • Ceiling Fan(s)

    • Coffered Ceiling(s)

    • Eating Space In Kitchen

    • High Ceilings

    • Kitchen/Family Room Combo

    • Primary Bedroom Main Floor

    • Solid Wood Cabinets

    • Split Bedroom

    • Walk-In Closet(s)

    Dormitorios y baños

    • Dormitorios: 5

    • Baños completos: 4

  • Estacionamiento

    • Alley Access

    • Converted Garage

    • Driveway

    • Guest

    • On Street

    • Open

    • Split Garage

    Propiedad

    • Pisos: Two

    • Características Exteriores: Sidewalk

    Lote

    • Lote: 0.15 Hectáreas

    Otra Información de Propiedad

    • Número de Parcela: 173117832180630120

  • Tipo y estilo

    • Tipo de propiedad: Residential

    • Subtipo de propiedad: Single Family Residence

  • Utilidad

    • Public

  • Otra información financiera

    • Importe anual de impuestos: $11,217

  • Detalles de la fuente

    • MLS ID: TB8302135

    Otros hechos

    • Materiales de construcción: Wood Frame

    • Detalles de la fundación: Concrete Perimeter

    • Características de la chimenea: Living Room / Wood Burning

    • Características de lavandería: Inside / Laundry Room

    • Características del lote: Corner Lot / Historic District / City Lot / Landscaped / Near Marina / Near Public Transit / Sidewalk

    • Características del patio y el porche: Front Porch / Patio / Rear Porch

    • Características de la ventana: Window Treatments

    • Caras de dirección: South

    • Otras estructuras: Guest House / Storage

    • Estilo arquitectónico: Bungalow / Craftsman / Historical

    • Hogar: Si

    • Espacios de garaje: 2

    • Garaje: Si

    • Salón: 2906

    • Fuente de agua: Public

    • Tamaño de la parcela: 60 x 110

    • Nombre de subdivisión: SNELL & HAMLETTS NORTH SHORE ADD

Casas similares

1008 MONTROSE BOULEVARD N placeholder 1008 MONTROSE BOULEVARD N
Nuevo
Activo con contrato
Casa
$1,850,000
5 camas 3 baños 2,964 sqft
1008 MONTROSE BOULEVARD N
612 29TH AVENUE N placeholder 612 29TH AVENUE N
Nuevo
Activo con contrato
Casa
$1,850,000
5 camas 4 baños 3,394 sqft
612 29TH AVENUE N
100 1ST AVENUE N UNIT 3506 placeholder 100 1ST AVENUE N UNIT 3506
Nuevo
Activo con contrato
Condo / Coop
$1,400,000
2 camas 2 baños 1,402 sqft
100 1ST AVENUE N UNIT 3506
3223 MELTON STREET N placeholder 3223 MELTON STREET N
Nuevo
Activo con contrato
Casa
$1,395,000
5 camas 3 baños 2,840 sqft
3223 MELTON STREET N
2910 11TH STREET N placeholder 2910 11TH STREET N
Nuevo
Activo con contrato
Casa
$1,875,000
5 camas 4 baños 3,465 sqft
2910 11TH STREET N
115 19TH AVENUE SE placeholder 115 19TH AVENUE SE
Nuevo
Activo con contrato
Casa
$1,695,000
6 camas 4 baños 3,573 sqft
115 19TH AVENUE SE
100 1ST AVENUE N UNIT 2106 placeholder 100 1ST AVENUE N UNIT 2106
2 días
Activo con contrato
Condo / Coop
$1,249,000
2 camas 2 baños 1,402 sqft
100 1ST AVENUE N UNIT 2106
176 25TH AVENUE N placeholder 176 25TH AVENUE N
3 días
Activo con contrato
Casa
$1,699,000
3 camas 3 baños 2,420 sqft
176 25TH AVENUE N

The multiple listing information is provided by the Stellar MLS from a copyrighted compilation of listings. The compilation of listings and each individual listing are ©2025-present Stellar MLS. All Rights Reserved. The information provided is for consumers' personal, noncommercial use and may not be used for any purpose other than to identify prospective properties consumers may be interested in purchasing. All properties are subject to prior sale or withdrawal. All information provided is deemed reliable but is not guaranteed accurate, and should be independently verified. Listing courtesy of: LUXURY & BEACH REALTY INC