Contacto
Cuéntenos sobre sus necesidades

500 S RIVERSIDE DRIVE

Casa En Venta
$1,475,000

BTC: 49.16666667

ETH: 737.50000000

29 días
Frente al mar
4 camas
3 baños
1,905 sqft
Est. Rango de ventas estimado: $0 - $0
$0

Visión general

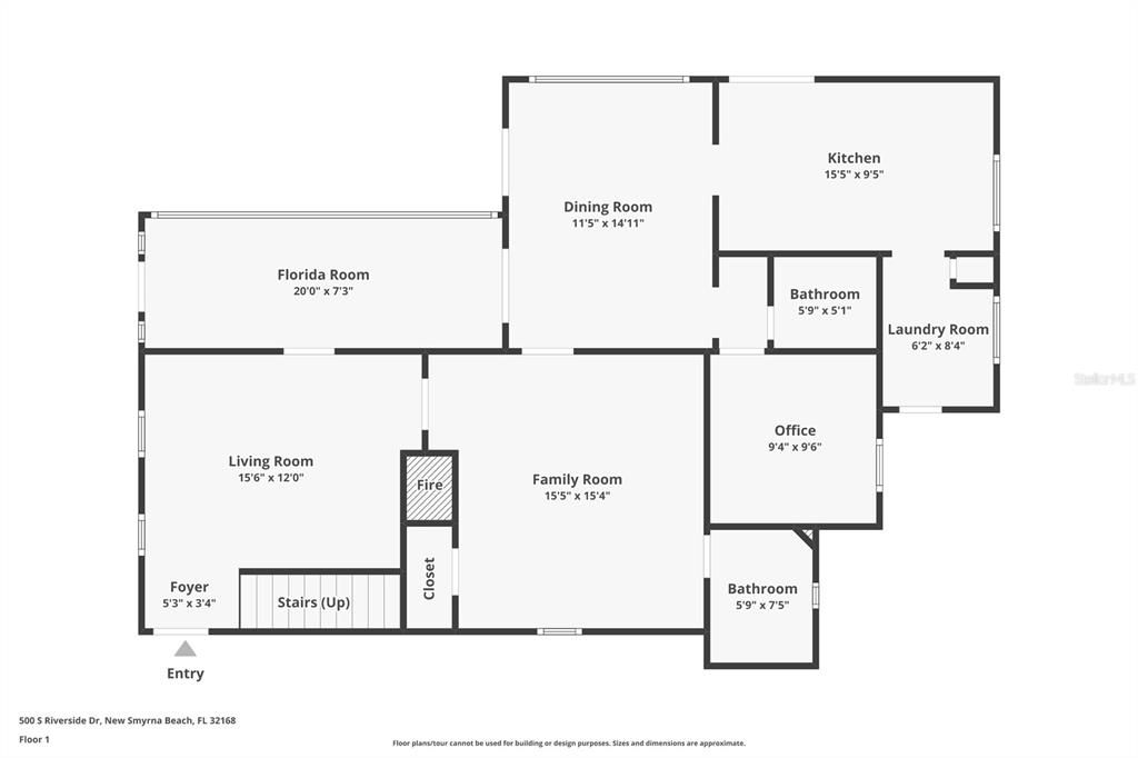
For the first time in decades, this rare riverfront treasure on historic Riverside Drive in New Smyrna Beach is available—an authentic circa 1900 4BR/3BA home with riparian rights to a deepwater dock & boathouse (needs repair) just across the street. Perfectly positioned on a corner lot with a detached oversized 2-car garage (32x24), this charming property sits within the exclusive Bed & Breakfast Overlay Zone (allowing short-term rentals with a 2-night minimum)—a truly uncommon find on Riverside Drive. Step onto the wide front porch and enjoy the serenity of boats passing by and gentle ocean and river breezes, just four blocks from the vibrant Canal Street Historic District, where you can stroll or golf cart to shops, restaurants, breweries, art shows, and the weekly farmers market. The first floor boasts river views from the living room, dining room, kitchen, and sunroom—all of which open to wraparound porches and decks perfect for entertaining. Two spacious bedrooms and two full baths are conveniently located downstairs, along with a laundry/mudroom that opens to the rear courtyard and garage. The second floor features a private primary suite with panoramic river views and access to a large balcony overlooking the water, plus an additional guest bedroom, full bath, and a second kitchen with its own balcony and stairway to the courtyard—ideal for rental income or extended family. With original hardwood floors throughout, charming period details like French doors, tall windows, herringbone brick entry, and exposed roof rafters under a certified metal roof (10–15 years of life remaining), this home embodies timeless craftsmanship. The kitchen blends history with modern convenience, featuring wood cabinetry, stone countertops, and stainless-steel appliances. Just across the bridge, you’ll find the lively Flagler Avenue beachside district for more shopping, dining, and nightlife—all just minutes from your porch swing. With a transferable termite bond, a solid power grid near Advent Hospital, and endless possibilities to restore or reimagine a new home, this property offers both historic charm and unmatched location in the heart of coastal New Smyrna Beach living. ALL INFORMATION IS ASSUMED ACCURATE BUT NOT GUARANTEED. ALL MEASUREMENTS ARE ESTIMATED. BUYERS AND THEIR AGENTS TO VERIFY ALL INFORMATION DEEMED IMPORTANT TO THEM.

Ubicación

Hechos y características

Tipo:
Residential
Estacionamiento:
Alley Access / Garage Faces Side / Golf Cart Parking / Off Street / Oversized / Workshop in Garage
Año de construcción:
1943
Lote:
0.17 Hectáreas
Calefacción:
Electric
precio por sq. medidor:
$774
Enfriamiento:
Central Air
HOA:
Sin datos
Más hechos y características
  • Piso

    • Hardwood

    Calefacción

    • Electric

    Enfriamiento

    • Central Air

    Accesorios

    • Dishwasher

    • Disposal

    • Dryer

    • Microwave

    • Range

    • Refrigerator

    • Washer

    • Wine Refrigerator

    Otras características interiores

    • Built-in Features

    • Ceiling Fan(s)

    • Solid Wood Cabinets

    • Stone Counters

    Dormitorios y baños

    • Dormitorios: 4

    • Baños completos: 3

  • Estacionamiento

    • Alley Access

    • Garage Faces Side

    • Golf Cart Parking

    • Off Street

    • Oversized

    • Workshop in Garage

    Propiedad

    • Pisos: Two

    • Características Exteriores: Balcony / Rain Barrel/Cistern(s) / Sidewalk / Storage

    Lote

    • Lote: 0.17 Hectáreas

    Otra Información de Propiedad

    • Número de Parcela: 744138050250

    • Zonificación: 10R2

  • Tipo y estilo

    • Tipo de propiedad: Residential

    • Subtipo de propiedad: Single Family Residence

  • Utilidad

    • BB/HS Internet Available

    • Cable Available

    • Electricity Connected

    • Natural Gas Connected

  • Otra información financiera

    • Importe anual de impuestos: $4,313

  • Detalles de la fuente

    • MLS ID: NS1086457

    Otros hechos

    • Materiales de construcción: Wood Frame / Wood Siding

    • Detalles de la fundación: Crawlspace / Pillar/Post/Pier

    • Características de la chimenea: Living Room

    • Características de lavandería: Inside / Laundry Room

    • Características del lote: Historic District / City Lot / Near Marina / Sidewalk

    • Características del patio y el porche: Covered / Deck / Front Porch / Patio / Porch / Rear Porch / Side Porch / Wrap Around

    • Caras de dirección: East

    • Otras estructuras: Workshop

    • Estilo arquitectónico: Bungalow / Cape Cod / Coastal / Cottage / Craftsman / Florida / Historical / Key West

    • Frente al mar: Si

    • Hogar: Si

    • Nombre del cuerpo de agua: INTRACOASTAL WATERWAY

    • Espacios de garaje: 2

    • Garaje: Si

    • Salón: 1905

    • Fuente de agua: Public

    • Tamaño de la parcela: 50 x 150 + 50 x 60

    • Nombre de subdivisión: ANDREWS NEW SMYRNA

Casas similares

807 S ATLANTIC AVENUE UNIT 402 placeholder 807 S ATLANTIC AVENUE UNIT 402
-$4K (2025/11/20)
En Venta
Condo / Coop
$1,895,000
3 camas 3 baños 2,011 sqft
807 S ATLANTIC AVENUE UNIT 402
119 FAULKNER STREET placeholder 119 FAULKNER STREET
16 días
En Venta
Casa
$1,690,000
3 camas 3 baños 3,300 sqft
119 FAULKNER STREET
106 LIVE OAK STREET placeholder 106 LIVE OAK STREET
30 días
En Venta
Casa
$1,100,000
7 camas 5 baños 3,801 sqft
106 LIVE OAK STREET
838 E 17TH AVENUE placeholder 838 E 17TH AVENUE
30 días
En Venta
Casa
$1,049,000
4 camas 2 baños 1,845 sqft
838 E 17TH AVENUE
1012 S RIVERSIDE DRIVE placeholder 1012 S RIVERSIDE DRIVE
-$15K (2025/11/17)
En Venta
Casa
$1,185,000
4 camas 4 baños 3,216 sqft
1012 S RIVERSIDE DRIVE
106 LIVE OAK STREET placeholder 106 LIVE OAK STREET
34 días
En Venta
Multifamiliar
$1,100,000
7 camas 3,801 sqft
106 LIVE OAK STREET
110 SURF STREET placeholder 110 SURF STREET
35 días
En Venta
Casa
$1,250,000
3 camas 3 baños 2,288 sqft
110 SURF STREET
509 FAULKNER STREET placeholder 509 FAULKNER STREET
-$20K (2025/11/24)
En Venta
Casa
$1,229,000
4 camas 3 baños 2,408 sqft
509 FAULKNER STREET

The multiple listing information is provided by the Stellar MLS from a copyrighted compilation of listings. The compilation of listings and each individual listing are ©2025-present Stellar MLS. All Rights Reserved. The information provided is for consumers' personal, noncommercial use and may not be used for any purpose other than to identify prospective properties consumers may be interested in purchasing. All properties are subject to prior sale or withdrawal. All information provided is deemed reliable but is not guaranteed accurate, and should be independently verified. Listing courtesy of: COLLADO REAL ESTATE