Contacto
Cuéntenos sobre sus necesidades

8823 GINKO RUN

Adosados En Venta
$279,539

BTC: 4.11086765

ETH: 2,795.39000000

21 días
3 camas
2 baños
1,691 sqft
Est. Rango de ventas estimado: $0 - $0
$0

Visión general

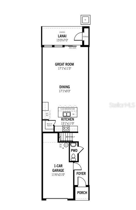
Under Construction. Welcome to the Lakewood, a thoughtfully designed 1,691 square foot townhome that offers the perfect blend of comfort, style, and functionality. Featuring three bedrooms, two full bathrooms, a convenient powder room, and a one-car garage, this home is ideal for modern living. Step inside to an inviting open-concept main floor that seamlessly integrates the kitchen, dining, and great room areas—perfect for entertaining or everyday life. The L-shaped kitchen is a chef’s delight, boasting quartz countertops, a walk-in pantry, and a generous island with a flush breakfast bar that comfortably seats four. Just beyond the great room, glass sliders lead to a covered lanai, creating a bright and airy extension of the living space. The lanai also includes a handy storage closet, ideal for stashing seasonal items or outdoor gear. The powder room is conveniently located just off the foyer for guests. Upstairs, the landing area provides access to the laundry space and a linen closet for added practicality. The two secondary bedrooms are positioned on one side of the home and share a spacious full bathroom. One of these bedrooms even includes a cozy seating area, making it perfect for guests or a private retreat. The owner’s suite offers a luxurious escape with a dual-sink raised vanity, glass-enclosed shower, private water closet, and a large walk-in closet that provides ample storage. Designed with energy efficiency in mind, the Lakewood includes a hybrid hot water heater and is rated with a HERS (Home Energy Rating System) score, ensuring lower utility costs and environmental impact. Thoughtful exterior touches such as paver driveways, walkways, and lanais add curb appeal and long-lasting durability. The Lakewood combines smart design and elegant finishes to offer a lifestyle of comfort and convenience—welcome home. Photos, renderings and plans are for illustrative purposes only and should never be relied upon and may vary from the actual home. Pricing, dimensions and features can change at any time without notice or obligation. The photos are from a furnished model home and not the home offered for sale.

Ubicación

Hechos y características

Tipo:
Residential
Estacionamiento:
Garage Door Opener
Año de construcción:
2025
Lote:
0.04 Hectáreas
Calefacción:
Electric / Heat Pump
precio por sq. medidor:
$165
Enfriamiento:
Central Air
HOA:
$144
Más hechos y características
  • Piso

    • Carpet

    • Tile

    Calefacción

    • Electric

    • Heat Pump

    Enfriamiento

    • Central Air

    Accesorios

    • Dishwasher

    • Dryer

    • Electric Water Heater

    • Microwave

    • Range

    • Refrigerator

    • Washer

    Otras características interiores

    • Eating Space In Kitchen

    • Open Floorplan

    • PrimaryBedroom Upstairs

    • Solid Surface Counters

    • Thermostat

    • Walk-In Closet(s)

    Dormitorios y baños

    • Dormitorios: 3

    • Baños: 1

    • Baños completos: 2

  • Estacionamiento

    • Garage Door Opener

    Propiedad

    • Pisos: Two

    • Características Exteriores: Irrigation System / Sidewalk / Sliding Doors

    Lote

    • Lote: 0.04 Hectáreas

    Otra Información de Propiedad

    • Número de Parcela: 414057609

    • Zonificación: PD-MU

  • Tipo y estilo

    • Tipo de propiedad: Residential

    • Subtipo de propiedad: Townhouse

  • Utilidad

    • Cable Available

    • Electricity Connected

    • Public

    • Street Lights

    • Underground Utilities

    • Water Connected

    Energía verde

    • Appliances

    • Insulation

    • Lighting

    • Thermostat

    • Water Heater

  • Otra información financiera

    • HOA: $144

    • Frecuencia HOA: Monthly

  • Detalles de la fuente

    • MLS ID: TB8487105

    Otros hechos

    • Materiales de construcción: Block / Stucco / Wood Frame

    • Detalles de la fundación: Slab

    • Características de lavandería: Inside / Upper Level / Washer Hookup

    • Características del patio y el porche: Rear Porch

    • Características de la ventana: Insulated Windows / Low-Emissivity Windows

    • Caras de dirección: East

    • Estilo arquitectónico: Craftsman

    • Espacios de garaje: 1

    • Garaje adjunto: Si

    • Garaje: Si

    • Salón: 1691

    • Fuente de agua: Public

    • Nombre de subdivisión: CROSSWIND RANCH

Casas similares

12420 CRYSTAL JADE WAY placeholder 12420 CRYSTAL JADE WAY
2 días
En Venta
Adosados
$225,900
3 camas 2 baños 1,760 sqft
12420 CRYSTAL JADE WAY
9911 WIMICO TERRACE placeholder 9911 WIMICO TERRACE
2 días
En Venta
Casa
$340,250
3 camas 2 baños 1,504 sqft
9911 WIMICO TERRACE
11454 E 52ND COURT E placeholder 11454 E 52ND COURT E
7 días
En Venta
Adosados
$235,000
2 camas 2 baños 1,436 sqft
11454 E 52ND COURT E
11734 FULL MOON LOOP placeholder 11734 FULL MOON LOOP
20 días
En Venta
Adosados
$359,990
3 camas 2 baños 2,145 sqft
11734 FULL MOON LOOP
8667 CANYON CREEK TRAIL placeholder 8667 CANYON CREEK TRAIL
24 días
En Venta
Adosados
$299,000
3 camas 2 baños 1,822 sqft
8667 CANYON CREEK TRAIL
7734 SATTERFIELD TERRACE placeholder 7734 SATTERFIELD TERRACE
-$15K (2026/04/06)
En Venta
Casa
$347,580
3 camas 2 baños 1,491 sqft
7734 SATTERFIELD TERRACE
12220 MOUNTAIN ISLAND TRL placeholder 12220 MOUNTAIN ISLAND TRL
26 días
En Venta
Casa
$329,000
3 camas 2 baños 1,516 sqft
12220 MOUNTAIN ISLAND TRL
12373 OAK  HILL WAY placeholder 12373 OAK  HILL WAY
27 días
En Venta
Casa
$346,541
3 camas 2 baños 1,534 sqft
12373 OAK HILL WAY

The multiple listing information is provided by the Stellar MLS from a copyrighted compilation of listings. The compilation of listings and each individual listing are ©2026-present Stellar MLS. All Rights Reserved. The information provided is for consumers' personal, noncommercial use and may not be used for any purpose other than to identify prospective properties consumers may be interested in purchasing. All properties are subject to prior sale or withdrawal. All information provided is deemed reliable but is not guaranteed accurate, and should be independently verified. Listing courtesy of: MATTAMY REAL ESTATE SERVICES