特性
探索我们的清单
聯繫
告诉我们您的需求

1178 BASS BOULEVARD

房屋 合同活跃
$439,900

BTC: 14.66333333

ETH: 219.95000000

6 天
3 贝兹
2 浴室
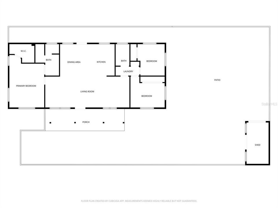
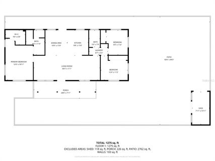
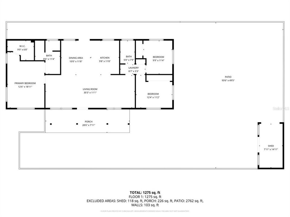
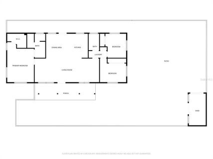
1,392 平方英尺
Est. 预计销售范围: $0 - $0
$0

总览

Under contract-accepting backup offers. Live in the Heart of Dunedin! Grab your golf cart, bike, or simply stroll just 0.3 miles to Main Street and enjoy everything vibrant downtown Dunedin has to offer — award-winning restaurants, local breweries, boutique shopping, the scenic Pinellas Trail, Edgewater Park, and the Dunedin Marina. This is Florida living at its finest — where location meets lifestyle. Step inside this turn-key, move-in ready home, filled with natural light and thoughtfully updated from top to bottom. The open-concept design features: Solid granite countertops, white cabinetry, large kitchen island/breakfast bar with storage and power outlets on two sides, high-tech waterproof vinyl plank flooring throughout. Major updates (2018–2019): Complete electrical system, inside plumbing, HVAC, tankless water heater, appliances, and 8 replacement windows. Additional modern upgrades: Energy-efficient LED lighting, Alexa-compatible, app-controlled thermostat and lighting, circular driveway repaved (2022), freshly painted interior & exterior. The primary bathroom (2025) showcases brand-new tile flooring, a cultured marble double vanity, updated mirrors, and a new toilet in the water closet. Enjoy the outdoor lifestyle Dunedin is famous for. 3.7 miles to the Dunedin Causeway/ Honeymoon Island,15 minutes to Clearwater Beach. No HOA. X flood zone. This home is light, bright, beautifully updated, and truly move-in ready — the perfect blend of comfort, convenience, and coastal charm.

位置

佛罗里达 DUNEDIN 34698 房屋 合同活跃

详情与特色

类型:
Residential
停车:
Circular Driveway
建造年份:
1969
地段:
0.14 英亩
暖气:
Central
价格/平方英尺:
$316
冷气:
Central Air
HOA:
没有数据
更多事实和特点
  • 地板

    • Vinyl

    暖气

    • Central

    冷气

    • Central Air

    设备

    • Dishwasher

    • Disposal

    • Dryer

    • Exhaust Fan

    • Ice Maker

    • Microwave

    • Range

    • Refrigerator

    • Tankless Water Heater

    • Washer

    其他室内特点

    • Ceiling Fan(s)

    • Eating Space In Kitchen

    • Kitchen/Family Room Combo

    • Open Floorplan

    • Primary Bedroom Main Floor

    • Smart Home

    • Solid Surface Counters

    • Split Bedroom

    • Thermostat

    • Walk-In Closet(s)

    • Window Treatments

    卧室和浴室

    • 卧室: 3

    • 完整的浴室: 2

  • 停车

    • Circular Driveway

    房屋

    • 等级: One

    • 外观特征: Irrigation System / Lighting / Sidewalk / Sprinkler Metered / Storage

    地段

    • 地段: 0.14 英亩

    其他财产信息

    • 包裹编号: 272815629100010280

  • 类型与风格

    • 财产种类: Residential

    • 属性子类型: Single Family Residence

  • 公益

    • Cable Connected

    • Electricity Connected

    • Public

    • Sewer Connected

    • Sprinkler Meter

    • Water Connected

  • 其他财政信息

    • 年税额: $3,815

  • 来源细节

    • MLS ID: TB8447037

    其他详情

    • 建筑材料: Block / Stucco

    • 基金会详情: Slab

    • 洗衣功能: Inside

    • 天井和门廊特色: Front Porch

    • 窗户功能: Blinds / Drapes / Window Treatments

    • 方向面: East

    • 建筑风格: Florida / Ranch

    • 生活区域: 1392

    • 水源: Public

    • 细分名称: OAKLAND SUB 2

类似房屋

2009 FOREST DRIVE placeholder 2009 FOREST DRIVE
1 天
合同活跃
房屋
$495,000
2 贝兹 2 浴室 1,557 平方英尺
2009 FOREST DRIVE
1943 SKY DRIVE placeholder 1943 SKY DRIVE
2 天
合同活跃
房屋
$420,000
3 贝兹 2 浴室 1,538 平方英尺
1943 SKY DRIVE
1975 SKY DRIVE placeholder 1975 SKY DRIVE
2 天
合同活跃
房屋
$549,900
3 贝兹 2 浴室 1,740 平方英尺
1975 SKY DRIVE
449 ROANOKE STREET placeholder 449 ROANOKE STREET
4 天
合同活跃
房屋
$379,900
3 贝兹 2 浴室 986 平方英尺
449 ROANOKE STREET
664 FREDERICA LANE placeholder 664 FREDERICA LANE
4 天
合同活跃
房屋
$375,000
2 贝兹 1 浴室 1,398 平方英尺
664 FREDERICA LANE
1342 STONEHAVEN LANE placeholder 1342 STONEHAVEN LANE
4 天
合同活跃
公寓/合作社
$364,900
2 贝兹 2 浴室 1,110 平方英尺
1342 STONEHAVEN LANE
1155 SEDEEVA STREET placeholder 1155 SEDEEVA STREET
5 天
合同活跃
房屋
$390,000
3 贝兹 2 浴室 1,583 平方英尺
1155 SEDEEVA STREET
1956 BARBARA AVENUE placeholder 1956 BARBARA AVENUE
6 天
合同活跃
房屋
$380,000
3 贝兹 2 浴室 1,537 平方英尺
1956 BARBARA AVENUE

The multiple listing information is provided by the Stellar MLS from a copyrighted compilation of listings. The compilation of listings and each individual listing are ©2025-present Stellar MLS. All Rights Reserved. The information provided is for consumers' personal, noncommercial use and may not be used for any purpose other than to identify prospective properties consumers may be interested in purchasing. All properties are subject to prior sale or withdrawal. All information provided is deemed reliable but is not guaranteed accurate, and should be independently verified. Listing courtesy of: EXP REALTY LLC