特性
探索我们的清单
聯繫
告诉我们您的需求

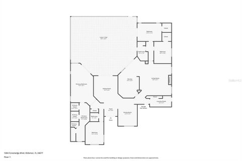
1384 FORESTEDGE BOULEVARD

房屋 待售
$759,900

BTC: 8.80023162

ETH: 259.70608339

-$40K (2025/12/04)
92 天
4 贝兹
2 浴室
2,814 平方英尺
Est. 预计销售范围: $0 - $0
$0

总览

Stunning 4BR/2.5BA pool home on an oversized lot in the gated East Lake Woodlands – Aberdeen community. This airy single-story residence offers over 2,800 sq ft with soaring ceilings, open floorplan, and abundant natural light. The spacious primary suite features private access to the patio, and in the bathroom you will find a walk-in closet, dual vanities, beautiful clawfoot tub, and separate shower. The home also boasts formal living and dining areas, a family room with fireplace, and a bright open kitchen. A large laundry room/wash room combo with exterior access and 3-car garage provide added convenience. Outdoors, relax or entertain with a screen-enclosed pool, covered patio, and mature landscaped yard. Enjoy community amenities including golf, tennis, fitness center, pool, and sidewalks—all ideally located near shopping, dining, top schools, and the Gulf beaches.

位置

佛罗里达 OLDSMAR 34677 房屋 待售

详情与特色

类型:
Residential
停车:
没有数据
建造年份:
1991
地段:
0.34 英亩
暖气:
Central
价格/平方英尺:
$270
冷气:
Central Air
HOA:
$730
更多事实和特点
  • 地板

    • Tile

    • Hardwood

    暖气

    • Central

    冷气

    • Central Air

    设备

    • Dishwasher

    • Dryer

    • Microwave

    • Range

    • Refrigerator

    • Washer

    其他室内特点

    • Ceiling Fan(s)

    • Eating Space In Kitchen

    • High Ceilings

    • Primary Bedroom Main Floor

    • Vaulted Ceiling(s)

    • Walk-In Closet(s)

    卧室和浴室

    • 卧室: 4

    • 洗手间: 1

    • 完整的浴室: 2

  • 房屋

    • 等级: One

    • 私人泳池: 是

    • 外观特征: Rain Gutters / Sliding Doors

    地段

    • 地段: 0.34 英亩

    其他财产信息

    • 包裹编号: 102816000260060110

    • 分区: RPD-2.5_1.0

  • 类型与风格

    • 财产种类: Residential

    • 属性子类型: Single Family Residence

  • 公益

    • Electricity Connected

    • Public

    • Sewer Connected

    • Water Connected

  • 其他财政信息

    • HOA: $730

    • HOA频率: Quarterly

    • 年税额: $11,844

  • 来源细节

    • MLS ID: W7879236

    其他详情

    • 建筑材料: Block / Stucco

    • 基金会详情: Slab

    • 壁炉功能: Living Room

    • 洗衣功能: Electric Dryer Hookup / Inside / Laundry Room / Washer Hookup

    • 天井和门廊特色: Covered / Patio / Screened

    • 泳池特色: In Ground / Screen Enclosure

    • 方向面: Northeast

    • 壁炉: 是

    • 车库空间: 3

    • 附属车库: 是

    • 车库: 是

    • 生活区域: 2814

    • 水源: Public

    • 地块大小: 127 x 109

    • 细分名称: ABERDEEN UNIT TWO

类似房屋

4151 EAGLE WATCH BOULEVARD placeholder 4151 EAGLE WATCH BOULEVARD
2 天
待售
房屋
$720,000
3 贝兹 3 浴室 2,628 平方英尺
4151 EAGLE WATCH BOULEVARD
2639 LANDING WAY placeholder 2639 LANDING WAY
6 天
待售
房屋
$734,900
4 贝兹 2 浴室 2,314 平方英尺
2639 LANDING WAY
3193 SANDY RIDGE DRIVE placeholder 3193 SANDY RIDGE DRIVE
7 天
待售
房屋
$765,000
4 贝兹 2 浴室 2,623 平方英尺
3193 SANDY RIDGE DRIVE
12929 ROYAL GEORGE AVENUE placeholder 12929 ROYAL GEORGE AVENUE
14 天
待售
房屋
$550,000
4 贝兹 2 浴室 1,530 平方英尺
12929 ROYAL GEORGE AVENUE
2309 LANDING WAY placeholder 2309 LANDING WAY
-$24K (2025/12/12)
待售
房屋
$761,450
3 贝兹 2 浴室 2,425 平方英尺
2309 LANDING WAY
440 LAKEVIEW DRIVE placeholder 440 LAKEVIEW DRIVE
20 天
待售
房屋
$565,000
3 贝兹 2 浴室 1,554 平方英尺
440 LAKEVIEW DRIVE
254 TIMBERVIEW DRIVE placeholder 254 TIMBERVIEW DRIVE
21 天
待售
房屋
$579,737
4 贝兹 2 浴室 2,172 平方英尺
254 TIMBERVIEW DRIVE
3134 EAGLES LANDING CIRCLE W UNIT 3134 placeholder 3134 EAGLES LANDING CIRCLE W UNIT 3134
22 天
待售
联排别墅
$539,900
3 贝兹 3 浴室 1,823 平方英尺
3134 EAGLES LANDING CIRCLE W UNIT 3134

The multiple listing information is provided by the Stellar MLS from a copyrighted compilation of listings. The compilation of listings and each individual listing are ©2025-present Stellar MLS. All Rights Reserved. The information provided is for consumers' personal, noncommercial use and may not be used for any purpose other than to identify prospective properties consumers may be interested in purchasing. All properties are subject to prior sale or withdrawal. All information provided is deemed reliable but is not guaranteed accurate, and should be independently verified. Listing courtesy of: BHHS FLORIDA PROPERTIES GROUP