特性
探索我们的清单
聯繫
告诉我们您的需求

215 Wildwood Cir, Key Largo FL 33037

房屋 待售
$2,340,000

BTC: 78.00000000

ETH: 1,170.00000000

-$60K (2025/08/26)
140 天
滨水区
4 贝兹
3 浴室
2,025 平方英尺
Est. 预计销售范围: $0 - $0
$0

总览

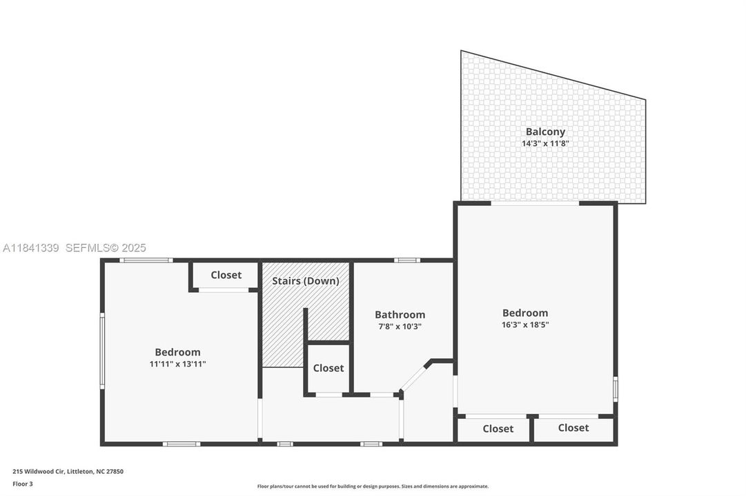
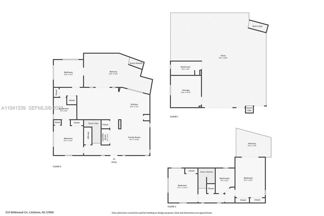
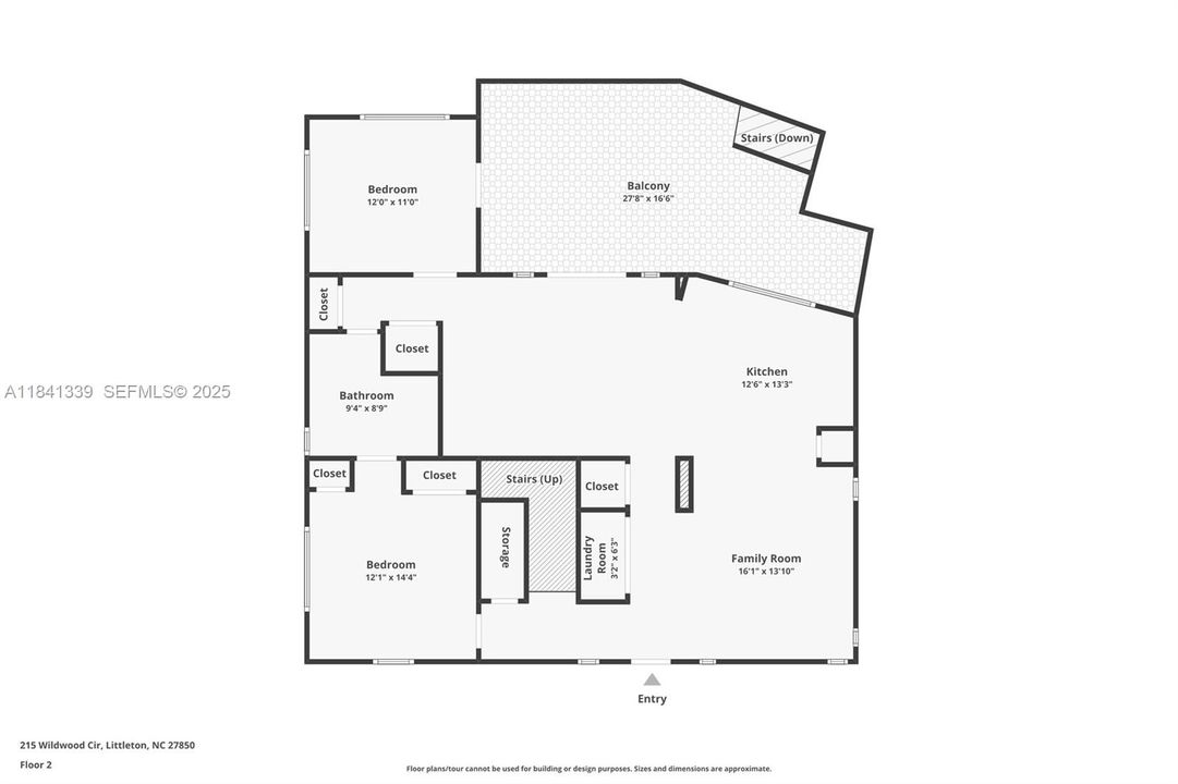
Turnkey Canal Front Pool Home with Immediate Ocean Access! Located just one canal from the open Atlantic, this 4-bedroom, 3-bathroom all-concrete home is a true Keys retreat, complete with 72 ft. of dockage, a 14K boat lift, incredible ocean views and more! Completely updated inside and out, this move-in ready. Spacious primary suite located on the third floor includes a private balcony with panoramic ocean views and an additional guest bedroom, perfect for visitors or a home office. The ground level is built for entertaining, with a large, covered outdoor living space, a new heated pool, full bath, air-conditioned storage, outdoor TVs, full security system & more!

位置

详情与特色

类型:
Residential
停车:
Guest / Other
建造年份:
1987
地段:
7200 平方英尺
暖气:
Central
价格/平方英尺:
$1,156
冷气:
Central Air
HOA:
没有数据
更多事实和特点
  • 地板

    • Tile

    暖气

    • Central

    冷气

    • Central Air

    设备

    • Dishwasher

    • Disposal

    • Dryer

    • Electric Water Heater

    • Microwave

    • Electric Range

    • Refrigerator

    • Washer

    其他室内特点

    • Second Floor Entry

    • Split Bedroom

    • Storage

    卧室和浴室

    • 卧室: 4

    • 完整的浴室: 3

  • 停车

    • Guest

    • Other

    房屋

    • 外观特征: Lighting

    地段

    • 地段: 7200 平方英尺

    其他财产信息

    • 包裹编号: 00503680-000000

    • 分区: is

  • 类型与风格

    • 财产种类: Residential

    • 属性子类型: Single Family Residence

  • 其他财政信息

    • 年税额: $12,757

  • 来源细节

    • MLS ID: A11841339

    其他详情

    • 建筑材料: CBS Construction

    • 地段特征: Less Than 1/4 Acre Lot

    • 天井和门廊特色: Patio

    • 泳池特色: In Ground / Concrete / Heated

    • 方向面: West

    • 建筑风格: Detached / Split Level

    • 滨水区: 是

    • 生活区域: 2025

    • 水源: Municipal Water

    • 细分名称: KEY LARGO BEACH ADD

类似房屋

365 Buttonwood Shores Dr, Key Largo FL 33037 placeholder 365 Buttonwood Shores Dr, Key Largo FL 33037
3 天
待售
房屋
$1,850,000
4 贝兹 3 浴室 2,430 平方英尺
365 Buttonwood Shores Dr, Key Largo FL 33037
392 Laguna Ave, Key Largo FL 33037 placeholder 392 Laguna Ave, Key Largo FL 33037
3 天
待售
房屋
$2,249,000
5 贝兹 3 浴室 204 平方英尺
392 Laguna Ave, Key Largo FL 33037
139 Marina Ave, Key Largo FL 33037 placeholder 139 Marina Ave, Key Largo FL 33037
14 天
待售
多户家庭
$2,695,000
0 room(s) 2,485 平方英尺
139 Marina Ave, Key Largo FL 33037
97501 Overseas Hwy # 131, Key Largo FL 33037 placeholder 97501 Overseas Hwy # 131, Key Largo FL 33037
35 天
待售
公寓/合作社
$2,099,990
4 贝兹 3 浴室 2,635 平方英尺
97501 Overseas Hwy # 131, Key Largo FL 33037
174 Corrine Pl, Key Largo FL 33037 placeholder 174 Corrine Pl, Key Largo FL 33037
54 天
待售
房屋
$1,750,000
4 贝兹 2 浴室 2,196 平方英尺
174 Corrine Pl, Key Largo FL 33037
98468 Overseas Hwy, Key Largo FL 33037 placeholder 98468 Overseas Hwy, Key Largo FL 33037
-$250K (2025/11/10)
待售
商业的
$2,850,000
0 room(s)
98468 Overseas Hwy, Key Largo FL 33037
97501 Overseas Hwy # 312, Key Largo FL 33037 placeholder 97501 Overseas Hwy # 312, Key Largo FL 33037
68 天
待售
公寓/合作社
$1,800,000
3 贝兹 2 浴室 1,876 平方英尺
97501 Overseas Hwy # 312, Key Largo FL 33037
97501 Overseas Hwy # 316, Key Largo FL 33037 placeholder 97501 Overseas Hwy # 316, Key Largo FL 33037
68 天
待售
公寓/合作社
$2,149,999
5 贝兹 3 浴室 2,635 平方英尺
97501 Overseas Hwy # 316, Key Largo FL 33037

The multiple listing information is provided by the Miami Association of REALTORS® from a copyrighted compilation of listings. The compilation of listings and each individual listing are ©2025-present Miami Association of REALTORS®. All Rights Reserved. The information provided is for consumers' personal, noncommercial use and may not be used for any purpose other than to identify prospective properties consumers may be interested in purchasing. All properties are subject to prior sale or withdrawal. All information provided is deemed reliable but is not guaranteed accurate, and should be independently verified. Listing courtesy of: American Caribbean Real Estate