特性
探索我们的清单
聯繫
告诉我们您的需求

3154 BRIGANTINE COURT

房屋 待售
$1,980,000

BTC: 66.00000000

ETH: 990.00000000

62 天
滨水区
3 贝兹
2 浴室
4,018 平方英尺
Est. 预计销售范围: $0 - $0
$0

总览

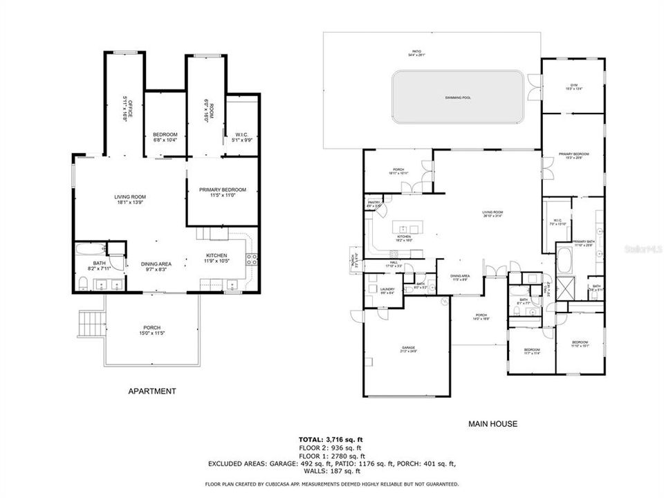
Paradise awaits at this exceptional three-bedroom, two-and-a-half-bath waterfront estate with a detached two-bedroom in-law suite on a double lot in New Port Richey. Resting proudly on 0.43 acres, this 4,018-square-foot home blends luxury, resilience and comfort—having weathered two hurricanes with no damage or flooding. Fully restored in 2017, the main home features a chef’s kitchen with vaulted beamed ceilings, granite counters, stainless steel appliances, double ovens and a spacious pantry. The expansive great room opens to tranquil waterfront views and an entertainer’s lanai. French doors lead to the primary suite, which includes a bonus room (currently used as a gym), a spa-like bath with a soaking tub, dual sinks, and custom California Closets. Outdoors, enjoy the open-air saltwater pool, a tiki hut with power and lighting and a private dock with concrete pilings and a 16,000-pound boat lift. For the car enthusiast or RV owner, the 45-by-38-foot detached garage offers storage for 4–6 cars, RV access, and a second-floor in-law suite with two bedrooms, a full kitchen, a bath and a private balcony with water views. Additional features include a two-car attached garage, solar water heater, 20 owned solar panels, plantation shutters and lush landscaping. This is luxury waterfront living—designed for boaters, RVers, and anyone who craves space, style and security.

位置

详情与特色

类型:
Residential
停车:
Boat / Oversized / RV Garage / RV Parking / Tandem / Workshop in Garage
建造年份:
1982
地段:
0.46 英亩
暖气:
Central / Other
价格/平方英尺:
$493
冷气:
Central Air
HOA:
$150
更多事实和特点
  • 地板

    • Ceramic Tile

    • Engineered Hardwood

    暖气

    • Central

    • Other

    冷气

    • Central Air

    设备

    • Dishwasher

    • Dryer

    • Microwave

    • Range

    • Refrigerator

    • Solar Hot Water Owned

    • Washer

    • Water Softener

    其他室内特点

    • Ceiling Fan(s)

    • Open Floorplan

    • Split Bedroom

    • Walk-In Closet(s)

    卧室和浴室

    • 卧室: 3

    • 洗手间: 1

    • 完整的浴室: 2

  • 停车

    • Boat

    • Oversized

    • RV Garage

    • RV Parking

    • Tandem

    • Workshop in Garage

    房屋

    • 等级: One

    • 私人泳池: 是

    • 外观特征: Irrigation System / Lighting / Private Mailbox / Rain Gutters / Sprinkler Metered / Storage

    地段

    • 地段: 0.46 英亩

    其他财产信息

    • 包裹编号: 152612082A000000530

    • 分区: R4

  • 类型与风格

    • 财产种类: Residential

    • 属性子类型: Single Family Residence

  • 公益

    • Electricity Available

    • Electricity Connected

    • Public

    • Solar

    绿色能源

    • Insulation

  • 其他财政信息

    • HOA: $150

    • HOA频率: Annually

    • 年税额: $23,027

  • 来源细节

    • MLS ID: TB8434385

    其他详情

    • 建筑材料: Block / HardiPlank Type / Stucco

    • 基金会详情: Slab

    • 洗衣功能: Inside / Laundry Room

    • 地段特征: Corner Lot / Oversized Lot / Street Dead-End

    • 天井和门廊特色: Deck / Patio / Rear Porch

    • 泳池特色: Deck / Gunite / In Ground / Salt Water / Tile

    • 窗户功能: Double Pane Windows

    • 方向面: West

    • 其他结构: Cabana / Guest House

    • 滨水区: 是

    • 水体名称: GULF

    • 车库空间: 6

    • 附属车库: 是

    • 车库: 是

    • 生活区域: 4018

    • 水源: Public

    • 细分名称: FLOR A MAR REP

类似房屋

5124 SOUTH SHORE DRIVE placeholder 5124 SOUTH SHORE DRIVE
14 天
待售
房屋
$1,450,000
4 贝兹 3 浴室 3,986 平方英尺
5124 SOUTH SHORE DRIVE
5049 CABRILLA COURT placeholder 5049 CABRILLA COURT
42 天
待售
房屋
$2,371,000
4 贝兹 4 浴室 4,300 平方英尺
5049 CABRILLA COURT
3143 PINEVIEW DRIVE placeholder 3143 PINEVIEW DRIVE
55 天
待售
房屋
$1,785,000
4 贝兹 4 浴室 4,204 平方英尺
3143 PINEVIEW DRIVE
3339 SEAWAY DRIVE placeholder 3339 SEAWAY DRIVE
97 天
待售
房屋
$1,390,000
4 贝兹 3 浴室 2,612 平方英尺
3339 SEAWAY DRIVE
5521 WINDWARD WAY placeholder 5521 WINDWARD WAY
142 天
待售
房屋
$2,100,000
3 贝兹 4 浴室 2,954 平方英尺
5521 WINDWARD WAY
2016 GULFVIEW DRIVE placeholder 2016 GULFVIEW DRIVE
153 天
待售
房屋
$1,459,000
3 贝兹 2 浴室 2,723 平方英尺
2016 GULFVIEW DRIVE
3150 TRIDENT TERRACE placeholder 3150 TRIDENT TERRACE
-$100K (2025/09/18)
待售
房屋
$1,390,000
5 贝兹 4 浴室 4,489 平方英尺
3150 TRIDENT TERRACE
5025 WESTSHORE DRIVE placeholder 5025 WESTSHORE DRIVE
199 天
待售
房屋
$1,890,000
4 贝兹 4 浴室 2,774 平方英尺
5025 WESTSHORE DRIVE

The multiple listing information is provided by the Stellar MLS from a copyrighted compilation of listings. The compilation of listings and each individual listing are ©2025-present Stellar MLS. All Rights Reserved. The information provided is for consumers' personal, noncommercial use and may not be used for any purpose other than to identify prospective properties consumers may be interested in purchasing. All properties are subject to prior sale or withdrawal. All information provided is deemed reliable but is not guaranteed accurate, and should be independently verified. Listing courtesy of: PREMIER SOTHEBYS INTL REALTY