特性
探索我们的清单
聯繫
告诉我们您的需求

316 SHORE DRIVE E

房屋 待售
$1,475,000

BTC: 17.08164447

ETH: 504.10116200

-$100K (2025/12/19)
160 天
滨水区
4 贝兹
3 浴室
2,496 平方英尺
Est. 预计销售范围: $0 - $0
$0

总览

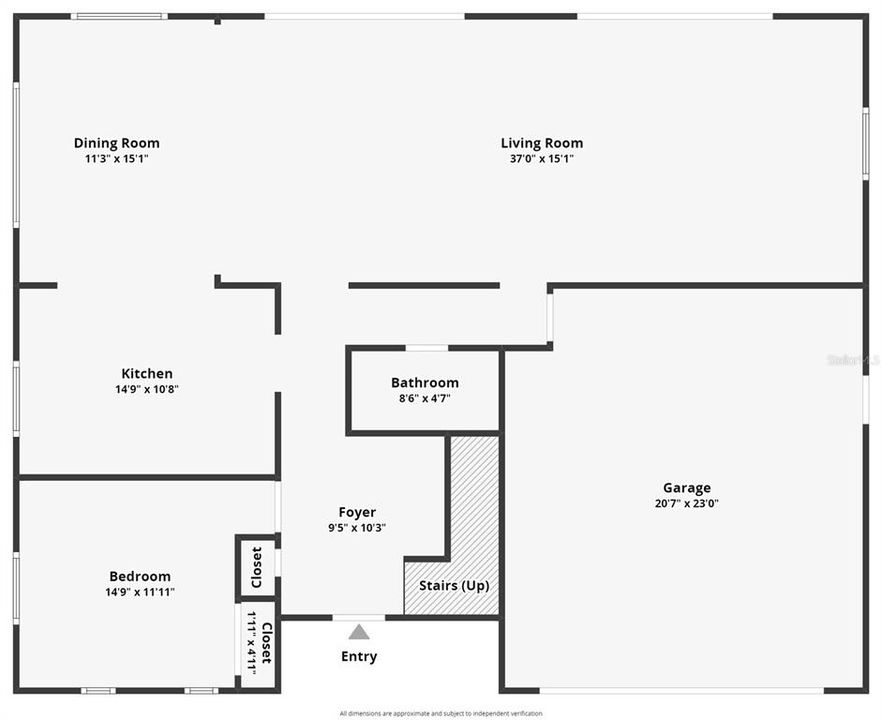
Wake up to million-dollar views, and unwind with spectacular sunsets - this is the waterfront lifestyle you've been waiting for. This updated 4-bedroom, 3-bath pool home sits directly on Tampa Bay on an oversized lot along iconic Shore Drive in Oldsmar. Enjoy panoramic water views across the Bay from a home that's high and dry - built on an elevated slab that has never flooded, eliminating the need for stilts or the stairs that come with them. Inside, a welcoming foyer leads to the open-concept living and dining area, where sliding doors frame the scenic backdrop and open to the covered deck, pool, and backyard. The new kitchen features quartz countertops, premium cabinetry, and stainless steel appliances. Also on the first floor: a bedroom (or office) and a renovated full bath. Upstairs, the primary suite offers a private balcony with sweeping water views and an ensuite bath. Two additional bedrooms share an updated full bath. Fish, kayak, windsurf, or watch dolphins from your own backyard - or add a dock for boating. Prefer to launch nearby? The city’s boat ramp is just minutes away. This home is in Oldsmar’s most coveted neighborhood, surrounded by parks and close to everything: top-rated schools, walkable and golf cart-friendly streets, and easy access to dining, shopping, Tampa International Airport, and sparkling Gulf beaches. New seawall (2024). New pool pump (2024). New water heater (2024). Two new AC units (2022). Metal roof (2008). Hurricane shutters. Low-cost, transferable flood insurance. No HOA or CDD fees. Centrally-located waterfront homes with views like this are rare - schedule your private showing today and see it for yourself.

位置

佛罗里达 OLDSMAR 34677 房屋 待售 滨水区

详情与特色

类型:
Residential
停车:
Driveway / Garage Door Opener / Ground Level / Guest / Off Street / Oversized / Parking Pad
建造年份:
1975
地段:
0.42 英亩
暖气:
Central / Electric
价格/平方英尺:
$591
冷气:
Central Air
HOA:
没有数据
更多事实和特点
  • 地板

    • Luxury Vinyl

    • Tile

    暖气

    • Central

    • Electric

    冷气

    • Central Air

    设备

    • Convection Oven

    • Dishwasher

    • Electric Water Heater

    • Exhaust Fan

    • Freezer

    • Microwave

    • Range

    • Refrigerator

    其他室内特点

    • Ceiling Fan(s)

    • Living Room/Dining Room Combo

    • Open Floorplan

    • PrimaryBedroom Upstairs

    • Skylight(s)

    • Solid Surface Counters

    • Solid Wood Cabinets

    • Stone Counters

    • Thermostat

    • Walk-In Closet(s)

    卧室和浴室

    • 卧室: 4

    • 完整的浴室: 3

  • 停车

    • Driveway

    • Garage Door Opener

    • Ground Level

    • Guest

    • Off Street

    • Oversized

    • Parking Pad

    房屋

    • 等级: Two

    • 私人泳池: 是

    • 外观特征: Awning(s) / Balcony / Hurricane Shutters / Private Mailbox / Sliding Doors

    地段

    • 地段: 0.42 英亩

    其他财产信息

    • 包裹编号: 252816184320010020

  • 类型与风格

    • 财产种类: Residential

    • 属性子类型: Single Family Residence

  • 公益

    • BB/HS Internet Available

    • Cable Available

    • Electricity Connected

    • Fiber Optics

    • Fire Hydrant

    • Phone Available

    • Public

    • Sewer Connected

    • Sprinkler Recycled

    • Street Lights

    • Water Connected

  • 其他财政信息

    • 年税额: $17,562

  • 来源细节

    • MLS ID: TB8408673

    其他详情

    • 建筑材料: Stucco

    • 基金会详情: Slab

    • 洗衣功能: Electric Dryer Hookup / In Garage / Washer Hookup

    • 地段特征: City Lot / Level / Oversized Lot / Sidewalk

    • 天井和门廊特色: Covered / Deck / Front Porch / Rear Porch

    • 泳池特色: Deck / Gunite / In Ground / Lighting

    • 方向面: East

    • 建筑风格: Contemporary

    • 滨水区: 是

    • 水体名称: UPPER TAMPA BAY

    • 车库空间: 2

    • 附属车库: 是

    • 车库: 是

    • 生活区域: 2496

    • 水源: Public

    • 地块大小: 100 x 200

    • 细分名称: COUNTRY CLUB ADD TO OLDSMAR REV

类似房屋

372 COCO PLUM COURT placeholder 372 COCO PLUM COURT
20 天
待售
房屋
$1,380,000
5 贝兹 4 浴室 3,945 平方英尺
372 COCO PLUM COURT
324 3RD AVENUE N placeholder 324 3RD AVENUE N
21 天
待售
房屋
$1,699,999
4 贝兹 3 浴室 2,835 平方英尺
324 3RD AVENUE N
3684 TAMPA ROAD UNIT 101 placeholder 3684 TAMPA ROAD UNIT 101
24 天
待售
商业的
$1,795,000
0 room(s) 3,850 平方英尺
3684 TAMPA ROAD UNIT 101
623 1ST AVENUE N placeholder 623 1ST AVENUE N
-$25K (2025/12/17)
待售
房屋
$1,175,000
4 贝兹 5 浴室 3,782 平方英尺
623 1ST AVENUE N
406 SHORE DRIVE W placeholder 406 SHORE DRIVE W
48 天
待售
房屋
$1,598,000
3 贝兹 2 浴室 1,838 平方英尺
406 SHORE DRIVE W
165 MOBBLY BAY DRIVE placeholder 165 MOBBLY BAY DRIVE
-$25K (2025/11/06)
待售
房屋
$1,324,900
5 贝兹 4 浴室 3,945 平方英尺
165 MOBBLY BAY DRIVE
1244 GREYBROOKE PLACE placeholder 1244 GREYBROOKE PLACE
-$50K (2025/11/06)
待售
房屋
$1,100,000
5 贝兹 3 浴室 3,450 平方英尺
1244 GREYBROOKE PLACE
3426 CHANNELSIDE COURT placeholder 3426 CHANNELSIDE COURT
-$99K (2025/11/22)
待售
房屋
$1,799,999
4 贝兹 4 浴室 3,488 平方英尺
3426 CHANNELSIDE COURT

The multiple listing information is provided by the Stellar MLS from a copyrighted compilation of listings. The compilation of listings and each individual listing are ©2025-present Stellar MLS. All Rights Reserved. The information provided is for consumers' personal, noncommercial use and may not be used for any purpose other than to identify prospective properties consumers may be interested in purchasing. All properties are subject to prior sale or withdrawal. All information provided is deemed reliable but is not guaranteed accurate, and should be independently verified. Listing courtesy of: CHARLES RUTENBERG REALTY INC