特性
探索我们的清单
聯繫
告诉我们您的需求

507 12TH STREET NW

房屋 待售
$349,900

BTC: 11.66333333

ETH: 174.95000000

2 贝兹
1 浴室
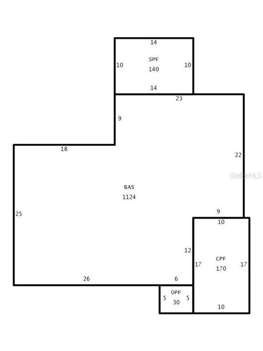
1,124 平方英尺
Est. 预计销售范围: $0 - $0
$0

总览

BRAND NEW ROOF TODAY -This beautiful House has many updates and improvements. All new insulated windows, new front door, carport entry door, and back door. The rooms are all freshly painted for a sharp clean look. There is an extra room in the back that has 3 - 6 foot sliding glass door that open to a large screen room. The view from there is the huge back yard with 2 beautiful trees and the Pinellas trail right through the gate. The kitchen is updated with all wood cabinets and modern appliances. Through the kitchen to the large laundry room with another set of base cabinets with a counter-top and 2 more wall cabinets. The door there goes to another concrete patio perfect for the BBQ grill. Beyond that in the yard is another large patio to sit and watch the walkers and bikers pass by on the trail. Each of the 2 bedrooms has a large closet with 2 shelves for plenty of clothes. The bathroom is modern and updated, and just outside of the bathroom is a large closet with lots of shelves. The living room and dining room are open and spacious for comfortable living. The side yard has another concrete pad with 2 large gate to bring in your boat or trailer for storage. The property has PVC fence on 3 sides with gates on both sides and chain like along the back bordering the Pinellas Bike Trail. This really is a great house and will be a great home.

位置

佛罗里达 LARGO 33770 房屋 待售

详情与特色

类型:
Residential
停车:
没有数据
建造年份:
1957
地段:
0.16 英亩
暖气:
Central / Electric
价格/平方英尺:
$311
冷气:
Central Air
HOA:
没有数据
更多事实和特点
  • 地板

    • Ceramic Tile

    • Laminate

    暖气

    • Central

    • Electric

    冷气

    • Central Air

    设备

    • Dishwasher

    • Electric Water Heater

    • Exhaust Fan

    • Microwave

    • Range

    • Refrigerator

    其他室内特点

    • Ceiling Fan(s)

    • Living Room/Dining Room Combo

    • Open Floorplan

    • Primary Bedroom Main Floor

    • Thermostat

    • Walk-In Closet(s)

    • Window Treatments

    卧室和浴室

    • 卧室: 2

    • 完整的浴室: 1

  • 房屋

    • 等级: One

    • 外观特征: Irrigation System / Lighting / Sliding Doors

    地段

    • 地段: 0.16 英亩

    其他财产信息

    • 包裹编号: 332915532800050130

  • 类型与风格

    • 财产种类: Residential

    • 属性子类型: Single Family Residence

  • 公益

    • Cable Available

    • Electricity Connected

    • Public

    • Sewer Connected

    • Sprinkler Recycled

    • Street Lights

    • Water Connected

  • 其他财政信息

    • 年税额: $563

  • 来源细节

    • MLS ID: TB8454483

    其他详情

    • 建筑材料: Wood Frame

    • 基金会详情: Slab

    • 洗衣功能: Electric Dryer Hookup / Inside / Laundry Room / Washer Hookup

    • 地段特征: City Lot

    • 方向面: West

    • 生活区域: 1124

    • 水源: None

    • 地块大小: 70 x 102

    • 细分名称: LUCYMAR 4TH ADD

类似房屋

1406 S LAKE AVENUE placeholder 1406 S LAKE AVENUE
2 天
待售
房屋
$399,900
2 贝兹 2 浴室 1,300 平方英尺
1406 S LAKE AVENUE
2010 7TH PLACE SW placeholder 2010 7TH PLACE SW
2 天
待售
房屋
$425,000
3 贝兹 2 浴室 1,148 平方英尺
2010 7TH PLACE SW
12651 SEMINOLE BOULEVARD UNIT 4F placeholder 12651 SEMINOLE BOULEVARD UNIT 4F
2 天
待售
$299,000
3 贝兹 2 浴室 2,115 平方英尺
12651 SEMINOLE BOULEVARD UNIT 4F
30 TURNER STREET UNIT 408 placeholder 30 TURNER STREET UNIT 408
3 天
待售
公寓/合作社
$249,900
2 贝兹 2 浴室 1,290 平方英尺
30 TURNER STREET UNIT 408
12609 130TH STREET placeholder 12609 130TH STREET
4 天
待售
房屋
$450,000
3 贝兹 2 浴室 1,398 平方英尺
12609 130TH STREET
1642 FORTUNE DRIVE placeholder 1642 FORTUNE DRIVE
5 天
待售
房屋
$369,000
2 贝兹 2 浴室 1,164 平方英尺
1642 FORTUNE DRIVE
10225 ULMERTON ROAD UNIT 12B placeholder 10225 ULMERTON ROAD UNIT 12B
5 天
待售
商业的
$310,000
0 room(s) 1,525 平方英尺
10225 ULMERTON ROAD UNIT 12B
1726 SOUTHVIEW ROAD placeholder 1726 SOUTHVIEW ROAD
6 天
待售
房屋
$440,000
3 贝兹 2 浴室 1,344 平方英尺
1726 SOUTHVIEW ROAD

The multiple listing information is provided by the Stellar MLS from a copyrighted compilation of listings. The compilation of listings and each individual listing are ©2025-present Stellar MLS. All Rights Reserved. The information provided is for consumers' personal, noncommercial use and may not be used for any purpose other than to identify prospective properties consumers may be interested in purchasing. All properties are subject to prior sale or withdrawal. All information provided is deemed reliable but is not guaranteed accurate, and should be independently verified. Listing courtesy of: BRICK TOWER REALTY LLC