特性
探索我们的清单
聯繫
告诉我们您的需求

515 ORANGE STREET

房屋 合同活跃
$859,900

BTC: 28.66333333

ETH: 429.95000000

-$10K (2025/10/31)
42 天
3 贝兹
3 浴室
3,264 平方英尺
Est. 预计销售范围: $0 - $0
$0

总览

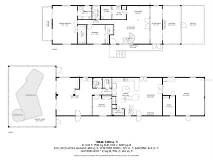
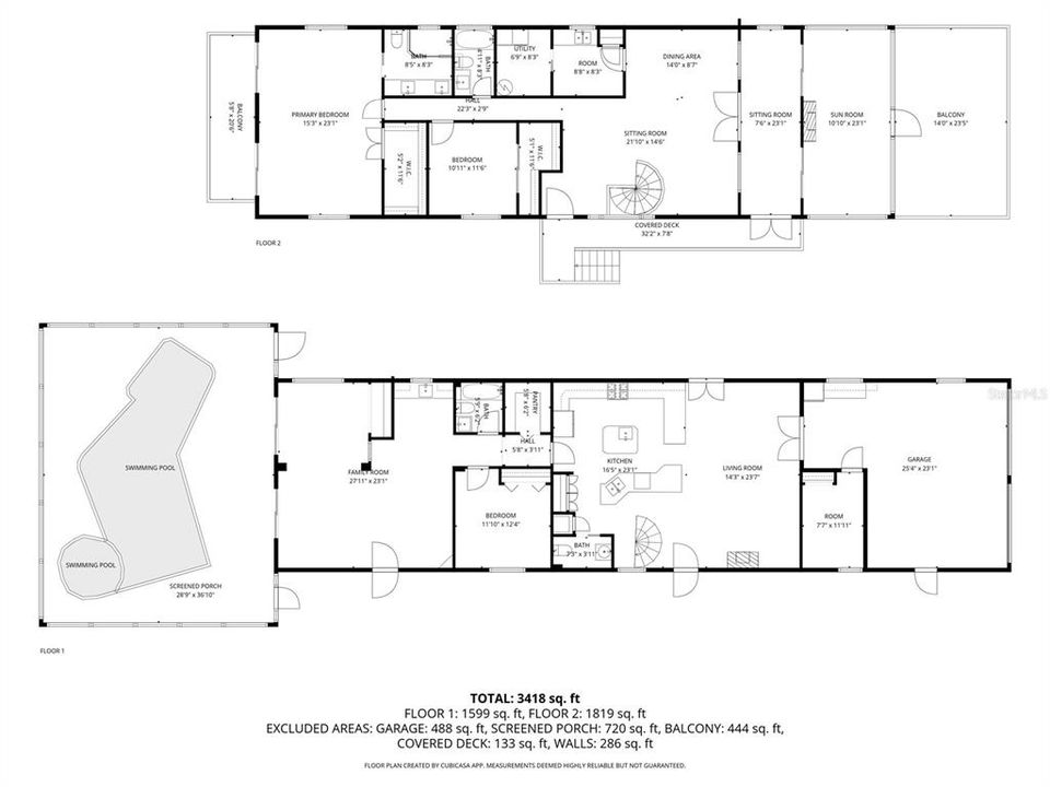
Under contract-accepting backup offers. ATTENTION, This is Currently the ONLY SINGLE FAMILY RESIDENCE HOME AVAILABLE in Ozona that is NOT in a FLOOD ZONE! High & Dry, No Flood Insurance Required, and NO Damage from last year’s hurricanes! Located in the Highly Desirable Old Florida Golf Cart Community of Ozona. Bursting with Eclectic Charm and Zoned for some of the Best Schools in the entire state! Brand New Roof October 2025 and New Exterior Paint May 2024. Bring your Buyers who Despise the “Cookie Cutter Home”. This home exudes Artistic Flare and is a true Architectural and Craftsmanship Masterpiece. You will Love everything from the Custom Hand-Crafted Doors, to the Wrought Iron Spiral Staircase & Gates, along with Gorgeous Stained Glass splashed around and some really cool Etched Icarus Glass upstairs. If you are looking for that Special Unique Home that Absolutely fits the Community it's situated in, then you have Found what you are looking for. Walkability is key here. You can walk to any of your favorite bars, restaurants or shops, or head west a couple of blocks to watch Amazing Sunsets or head east a few blocks to the Pinellas Trail. If there is anything about living a Laidback Lifestyle that allows you to either Relax in your Own Private Backyard Oasis, or listening to soft, gentle waves along our Gulf Coast Beaches, then not only have you found the Perfect Home, but also the Perfect Location!! Picture, everyday being able to launch your boat from one of the many local Marinas, or get your outside exercise on the trails, or kayaking the waterways, or ride your bike or golf cart to any of the many restaurants, shops and bars! In other words, Live where others Vacation!! This home has so many Bonuses, but one really special feature is the Rooftop Balcony overlooking Orange St. where you can catch a Seasonal Golf Cart Parade or any other Ozona Events that give you a Private Box-Seat Experience to all of the Fun. Another Bonus is you can use a portion of the downstairs space as a Mother-In-Law Suite that could have a kitchenette and its own private entrance, or keep it as a wet bar and Entertaining Area!! And the Screened-In Heated Pool & Spill-Over Spa Area is Perfect for All Entertaining Events! Sooo Many Possibilities in this Home! This Home is one that You Must See It and Feel It, to Really Get It! Start Living The Florida Lifestyle You have Always Dreamed of Today!! Please note that the only inside staircase to the upstairs is the spiral staircase; however, we do have estimates to add in a convenient elevator.

位置

详情与特色

类型:
Residential
停车:
Driveway / Oversized
建造年份:
1987
地段:
0.21 英亩
暖气:
Central / Electric / Natural Gas
价格/平方英尺:
$263
冷气:
Central Air
HOA:
没有数据
更多事实和特点
  • 地板

    • Laminate

    • Tile

    • Travertine

    • Hardwood

    暖气

    • Central

    • Electric

    • Natural Gas

    冷气

    • Central Air

    设备

    • Bar Fridge

    • Dishwasher

    • Dryer

    • Gas Water Heater

    • Microwave

    • Range

    • Range Hood

    • Refrigerator

    • Washer

    • Wine Refrigerator

    其他室内特点

    • Built-in Features

    • Ceiling Fan(s)

    • Crown Molding

    • Eating Space In Kitchen

    • High Ceilings

    • Kitchen/Family Room Combo

    • Living Room/Dining Room Combo

    • Open Floorplan

    • PrimaryBedroom Upstairs

    • Solid Surface Counters

    • Solid Wood Cabinets

    • Split Bedroom

    • Stone Counters

    • Thermostat

    • Walk-In Closet(s)

    • Wet Bar

    • Window Treatments

    卧室和浴室

    • 卧室: 3

    • 洗手间: 1

    • 完整的浴室: 3

  • 停车

    • Driveway

    • Oversized

    房屋

    • 等级: Two

    • 私人泳池: 是

    • 外观特征: Balcony / Irrigation System / Lighting / Private Mailbox / Rain Gutters / Sidewalk / Sliding Doors

    地段

    • 地段: 0.21 英亩

    其他财产信息

    • 包裹编号: 112815298980010011

    • 分区: R-4

  • 类型与风格

    • 财产种类: Residential

    • 属性子类型: Single Family Residence

  • 公益

    • BB/HS Internet Available

    • Cable Available

    • Electricity Connected

    • Public

    • Sewer Connected

    • Street Lights

    • Water Connected

  • 其他财政信息

    • 年税额: $8,327

  • 来源细节

    • MLS ID: TB8434909

    其他详情

    • 建筑材料: Stucco / Wood Frame

    • 基金会详情: Slab

    • 洗衣功能: Inside / Laundry Room / Upper Level

    • 地段特征: Landscaped / Near Golf Course / Near Marina / Near Public Transit / Private / Sidewalk

    • 天井和门廊特色: Covered / Enclosed / Front Porch / Rear Porch / Screened / Side Porch

    • 泳池特色: Gunite / Heated / In Ground / Screen Enclosure

    • 窗户功能: Shutters / Window Treatments

    • 方向面: East

    • 车库空间: 2

    • 附属车库: 是

    • 车库: 是

    • 生活区域: 3264

    • 水源: Public

    • 地块大小: 50 x 180

    • 细分名称: FUTRELLS SUB

类似房屋

2394 JONES DRIVE placeholder 2394 JONES DRIVE
1 天
合同活跃
房屋
$625,000
3 贝兹 2 浴室 1,448 平方英尺
2394 JONES DRIVE
2251 HIGHWOOD COURT placeholder 2251 HIGHWOOD COURT
2 天
合同活跃
房屋
$925,000
4 贝兹 3 浴室 2,736 平方英尺
2251 HIGHWOOD COURT
2039 KINGFISHER DRIVE placeholder 2039 KINGFISHER DRIVE
4 天
合同活跃
房屋
$649,900
4 贝兹 2 浴室 2,175 平方英尺
2039 KINGFISHER DRIVE
770 VILLAGE WAY placeholder 770 VILLAGE WAY
4 天
合同活跃
房屋
$649,000
3 贝兹 2 浴室 2,421 平方英尺
770 VILLAGE WAY
1955 DUNLOE CIRCLE placeholder 1955 DUNLOE CIRCLE
8 天
合同活跃
房屋
$847,000
3 贝兹 3 浴室 2,332 平方英尺
1955 DUNLOE CIRCLE
774 TOMOKA DRIVE placeholder 774 TOMOKA DRIVE
14 天
合同活跃
房屋
$749,990
4 贝兹 2 浴室 2,307 平方英尺
774 TOMOKA DRIVE
3206 ENISGROVE DRIVE E placeholder 3206 ENISGROVE DRIVE E
18 天
合同活跃
房屋
$880,000
4 贝兹 4 浴室 2,765 平方英尺
3206 ENISGROVE DRIVE E
2275 TWIN LANE DRIVE placeholder 2275 TWIN LANE DRIVE
19 天
合同活跃
房屋
$625,000
3 贝兹 2 浴室 2,425 平方英尺
2275 TWIN LANE DRIVE

The multiple listing information is provided by the Stellar MLS from a copyrighted compilation of listings. The compilation of listings and each individual listing are ©2025-present Stellar MLS. All Rights Reserved. The information provided is for consumers' personal, noncommercial use and may not be used for any purpose other than to identify prospective properties consumers may be interested in purchasing. All properties are subject to prior sale or withdrawal. All information provided is deemed reliable but is not guaranteed accurate, and should be independently verified. Listing courtesy of: COASTAL PROPERTIES GROUP INTERNATIONAL