特性
探索我们的清单
聯繫
告诉我们您的需求

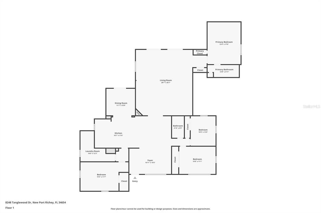
8248 TANGLEWOOD DRIVE

房屋 合同活跃
$649,000

BTC: 7.47265400

ETH: 324.50000000

-$1K (2025/10/11)
55 天
4 贝兹
2 浴室
2,370 平方英尺
Est. 预计销售范围: $0 - $0
$0

总览

MUST SEE!!! NO HOA OR CDD!! 1.77 ACRES!! This home is LOADED WITH UPGRADES AND PERSONAL TOUCHES and even an Enclosed Swim SPA!!! Looking for a large 4-bedroom home on ACREAGE?? You can get it all with this home: acreage, detached 2 car garage with A/C, 31 x 18 workshop, 22X21 car port, 8x12 storage shed, covered outdoor kitchen area, new partial privacy fence, fenced in yard, water treatment system, new asphalt driveway, outdoor Shower and Sink, pavers and neatly designed walkway, fire pit, gutters, and your own personal outdoor stage for entertainment and parties!! You can even have up to 3 grazing livestock on this property!! This home is ready to go, turnkey with lots of new features. There will be nothing holding you back from this one, home is like new and has been completely updated!! Located in the desirable Tanglewood East neighborhood, which is close to schools, PHS college west, shopping, restaurants, and easy commute to Tampa or the beaches. Put this on your list to see and let's make a deal!

位置

详情与特色

类型:
Residential
停车:
Driveway / Garage Door Opener / Workshop in Garage
建造年份:
1972
地段:
1.77 英亩
暖气:
Central
价格/平方英尺:
$274
冷气:
Central Air
HOA:
没有数据
更多事实和特点
  • 地板

    • Luxury Vinyl

    • Tile

    暖气

    • Central

    冷气

    • Central Air

    设备

    • Dishwasher

    • Electric Water Heater

    • Microwave

    • Range

    • Refrigerator

    • Washer

    • Water Softener

    其他室内特点

    • Living Room/Dining Room Combo

    • Open Floorplan

    • Thermostat

    • Walk-In Closet(s)

    卧室和浴室

    • 卧室: 4

    • 完整的浴室: 2

  • 停车

    • Driveway

    • Garage Door Opener

    • Workshop in Garage

    房屋

    • 等级: One

    • 私人泳池: 是

    • 外观特征: Lighting / Rain Gutters / Sliding Doors / Storage

    地段

    • 地段: 1.77 英亩

    其他财产信息

    • 包裹编号: 162525076A000000060

    • 分区: ER

  • 类型与风格

    • 财产种类: Residential

    • 属性子类型: Single Family Residence

  • 公益

    • Cable Available

  • 其他财政信息

    • 年税额: $3,889

  • 来源细节

    • MLS ID: TB8425377

    其他详情

    • 建筑材料: Block / Stucco

    • 基金会详情: Slab

    • 洗衣功能: Inside / Laundry Room

    • 地段特征: Cleared / Conservation Area / In County / Landscaped / Level / Oversized Lot

    • 天井和门廊特色: Covered / Front Porch / Rear Porch / Screened

    • 泳池特色: Above Ground / Fiberglass / Other

    • 方向面: Southwest

    • 其他结构: Storage / Workshop

    • 建筑风格: Ranch

    • 车库空间: 2

    • 车库: 是

    • 生活区域: 2370

    • 水源: Well

    • 细分名称: TANGLEWOOD EAST

类似房屋

8900 SHARON DRIVE placeholder 8900 SHARON DRIVE
6 天
合同活跃
房屋
$575,000
3 贝兹 2 浴室 2,879 平方英尺
8900 SHARON DRIVE
9425 OSCEOLA DRIVE placeholder 9425 OSCEOLA DRIVE
13 天
合同活跃
房屋
$725,000
7 贝兹 3 浴室 2,592 平方英尺
9425 OSCEOLA DRIVE
9661 SPRINGMEADOW DRIVE placeholder 9661 SPRINGMEADOW DRIVE
27 天
合同活跃
房屋
$459,900
3 贝兹 2 浴室 2,188 平方英尺
9661 SPRINGMEADOW DRIVE
10240 INDIAN MOUND DRIVE placeholder 10240 INDIAN MOUND DRIVE
-$24K (2025/12/03)
合同活跃
房屋
$475,000
3 贝兹 2 浴室 1,918 平方英尺
10240 INDIAN MOUND DRIVE
11602 LAKEVIEW DRIVE placeholder 11602 LAKEVIEW DRIVE
-$26K (2025/12/05)
合同活跃
房屋
$699,000
4 贝兹 4 浴室 3,288 平方英尺
11602 LAKEVIEW DRIVE
9505 DELRAY DRIVE placeholder 9505 DELRAY DRIVE
47 天
合同活跃
房屋
$499,900
3 贝兹 3 浴室 2,198 平方英尺
9505 DELRAY DRIVE
10137 WORTHY LAMB WAY placeholder 10137 WORTHY LAMB WAY
-$20K (2025/12/04)
合同活跃
房屋
$629,000
3 贝兹 3 浴室 2,399 平方英尺
10137 WORTHY LAMB WAY
5515 GANNETT COURT placeholder 5515 GANNETT COURT
-$14K (2025/12/03)
合同活跃
房屋
$464,900
3 贝兹 2 浴室 2,013 平方英尺
5515 GANNETT COURT

The multiple listing information is provided by the Stellar MLS from a copyrighted compilation of listings. The compilation of listings and each individual listing are ©2025-present Stellar MLS. All Rights Reserved. The information provided is for consumers' personal, noncommercial use and may not be used for any purpose other than to identify prospective properties consumers may be interested in purchasing. All properties are subject to prior sale or withdrawal. All information provided is deemed reliable but is not guaranteed accurate, and should be independently verified. Listing courtesy of: THE WILKINS WAY LLC