特性
探索我们的清单
聯繫
告诉我们您的需求

463 BAYOU VILLAGE DRIVE

联排别墅 待售
$358,500

BTC: 11.95000000

ETH: 179.25000000

-$11K (2025/09/14)
119 天
3 贝兹
3 浴室
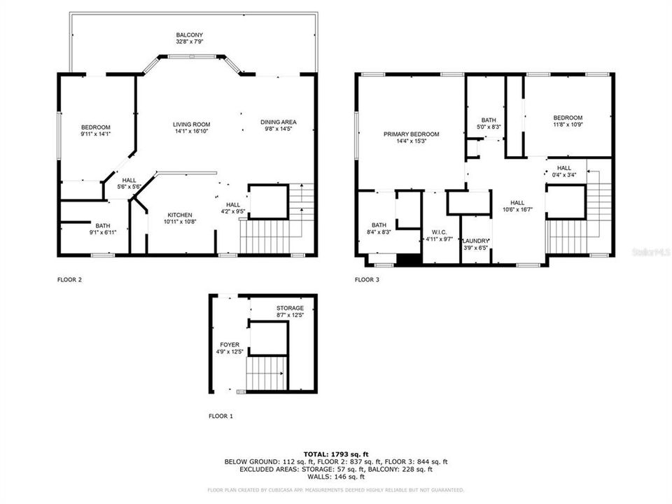
1,793 平方英尺
Est. 预计销售范围: $0 - $0
$0

总览

Welcome to 463 Bayou Village, a beautiful move-in ready three-story Townhome in the heart of Tarpon Springs! This property has been completely updated with three bedrooms, three full bathrooms and an oversized two car garage. The townhome does have a newly installed roof (2024) and a new A/C (2025) along with vinyl flooring in the living room and carpet throughout the rooms. The home comes with a personal elevator to bring you up to the 2nd floor so whether you choose elevator or the stairs you will make your way to the second story where you walk into a large open living/dining room right off the beautiful updated kitchen with granite countertops with all stainless steel appliances. Down the hall you will find your first bedroom with the bathroom across the way. This bedroom has a door that leads out to the wrap-around patio, which was just completely re-done (2024) which is perfect to enjoy the peaceful ambience of outside. Then taking the stairs to the 3rd floor where we find the 2nd bedroom and bathroom along with the master bedroom and bath! This townhome has large rooms and plenty of windows to let in all the natural sunlight. This townhome does have a washer& dryer as well in the laundry closet making it super convenient. This townhome is located in the heart of Tarpon Springs, just minutes if not seconds away from all the action. Whether you need to go to the grocery store, go to the gym or go out on a Friday night to attend Tarpon Spring’s First Friday event you could not ask for a better location. There are also so many amazing restaurants, breweries and boutique shops to choose from all located minutes away from you in the historic city of Tarpon Springs. Don't wait to schedule your showing today as this property may not be on the market for long.

位置

详情与特色

类型:
Residential
停车:
没有数据
建造年份:
2008
地段:
0.09 英亩
暖气:
Central
价格/平方英尺:
$200
冷气:
Central Air
HOA:
$448
更多事实和特点
  • 地板

    • Carpet

    • Tile

    • Vinyl

    暖气

    • Central

    冷气

    • Central Air

    设备

    • Dishwasher

    • Dryer

    • Freezer

    • Ice Maker

    • Microwave

    • Refrigerator

    其他室内特点

    • Ceiling Fan(s)

    • Crown Molding

    • Elevator

    • Kitchen/Family Room Combo

    • Thermostat

    • Walk-In Closet(s)

    卧室和浴室

    • 卧室: 3

    • 完整的浴室: 3

  • 房屋

    • 等级: Three Or More

    • 外观特征: Balcony / Sidewalk

    地段

    • 地段: 0.09 英亩

    其他财产信息

    • 包裹编号: 132715039500000110

  • 类型与风格

    • 财产种类: Residential

    • 属性子类型: Townhouse

  • 公益

    • Cable Available

    • Electricity Available

    • Sewer Available

    • Water Available

  • 其他财政信息

    • HOA: $448

    • HOA频率: Monthly

    • 年税额: $5,031

  • 来源细节

    • MLS ID: TB8416121

    其他详情

    • 建筑材料: Block / Stucco

    • 基金会详情: Slab

    • 洗衣功能: Inside / Laundry Room

    • 方向面: Northwest

    • 车库空间: 2

    • 附属车库: 是

    • 车库: 是

    • 生活区域: 1793

    • 水源: Public

    • 细分名称: BAYOU VILLAGE

类似房屋

369 WESTWINDS DRIVE placeholder 369 WESTWINDS DRIVE
1 天
待售
房屋
$380,000
3 贝兹 2 浴室 1,414 平方英尺
369 WESTWINDS DRIVE
4581 PLEASANT AVENUE placeholder 4581 PLEASANT AVENUE
2 天
待售
联排别墅
$369,990
3 贝兹 2 浴室 1,464 平方英尺
4581 PLEASANT AVENUE
4589 PLEASANT AVENUE placeholder 4589 PLEASANT AVENUE
2 天
待售
联排别墅
$359,990
3 贝兹 2 浴室 1,464 平方英尺
4589 PLEASANT AVENUE
4593 PLEASANT AVENUE placeholder 4593 PLEASANT AVENUE
2 天
待售
联排别墅
$369,990
3 贝兹 2 浴室 1,464 平方英尺
4593 PLEASANT AVENUE
4585 PLEASANT AVENUE placeholder 4585 PLEASANT AVENUE
2 天
待售
联排别墅
$359,990
3 贝兹 2 浴室 1,464 平方英尺
4585 PLEASANT AVENUE
36750 US HIGHWAY 19 N UNIT 15-308 placeholder 36750 US HIGHWAY 19 N UNIT 15-308
3 天
待售
公寓/合作社
$319,000
2 贝兹 2 浴室 1,210 平方英尺
36750 US HIGHWAY 19 N UNIT 15-308
3322 FAIRMOUNT DRIVE placeholder 3322 FAIRMOUNT DRIVE
3 天
待售
房屋
$300,000
3 贝兹 2 浴室 1,558 平方英尺
3322 FAIRMOUNT DRIVE
116 READ STREET placeholder 116 READ STREET
3 天
待售
房屋
$399,900
2 贝兹 1 浴室 936 平方英尺
116 READ STREET

The multiple listing information is provided by the Stellar MLS from a copyrighted compilation of listings. The compilation of listings and each individual listing are ©2025-present Stellar MLS. All Rights Reserved. The information provided is for consumers' personal, noncommercial use and may not be used for any purpose other than to identify prospective properties consumers may be interested in purchasing. All properties are subject to prior sale or withdrawal. All information provided is deemed reliable but is not guaranteed accurate, and should be independently verified. Listing courtesy of: OLYMPIC REALTY SERVICES LLC