Contacto
Cuéntenos sobre sus necesidades

702 WESTWOOD DRIVE

Lotes / Tierras En Venta
$195,000

BTC: 2.82608696

ETH: 94.05658830

49 días
0 room(s)
Est. Rango de ventas estimado: $0 - $0
$0

Visión general

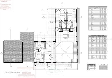
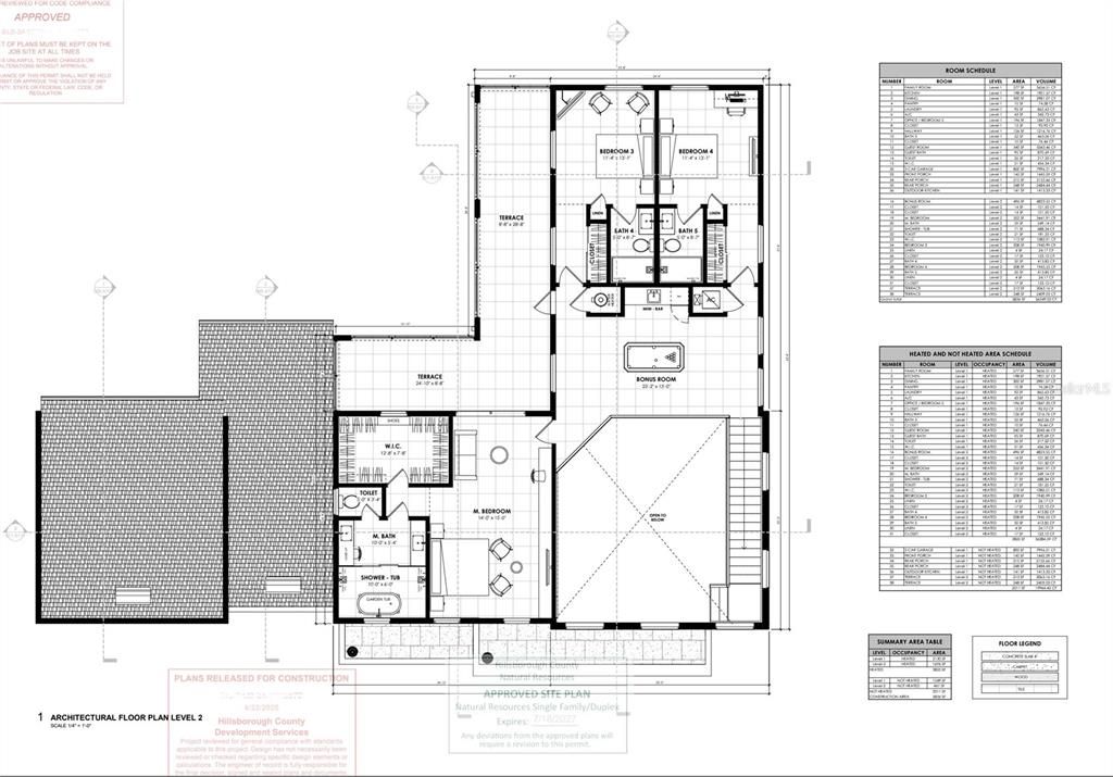
Prime Opportunity in the Heart of Brandon! Discover the potential of this spacious vacant lot located in a well-established neighborhood with no HOA or CDD fees. There is a approved plan from Hillsborough County and sample plan is attached. Nestled on a corner of the street, this vacant land offers a generous footprint ideal for building your dream home, investment property, or custom retreat. Surrounded by mature trees and residential charm, the lot provides convenience—just minutes from shopping, dining, major highways including I-75 and the Selmon Expressway. Utilities available nearby. Don’t miss your chance to secure land in one of Brandon’s most desirable areas!.

Ubicación

Hechos y características

Tipo:
Land
Estacionamiento:
Sin datos
Año de construcción:
Sin datos
Lote:
0.27 Hectáreas
Calefacción:
Sin datos
precio por sq. medidor:
Sin datos
Enfriamiento:
Sin datos
HOA:
Sin datos
Más hechos y características
  • Lote

    • Lote: 0.27 Hectáreas

    Otra Información de Propiedad

    • Número de Parcela: U272920ZZZ00000266370.0

    • Zonificación: RSC-6

  • Tipo y estilo

    • Tipo de propiedad: Land

  • Utilidad

    • Public

    • Water Available

  • Otra información financiera

    • Importe anual de impuestos: $1,338

  • Detalles de la fuente

    • MLS ID: TB8449539

    Otros hechos

    • Fuente de agua: Public

    • Tamaño de la parcela: 122 x 95

    • Nombre de subdivisión: UNPLATTED

Casas similares

4907 WHITE SANDERLING COURT placeholder 4907 WHITE SANDERLING COURT
1 días
En Venta
Adosados
$229,000
2 camas 2 baños 1,496 sqft
4907 WHITE SANDERLING COURT
1552 BLUE MAGNOLIA ROAD placeholder 1552 BLUE MAGNOLIA ROAD
5 días
En Venta
Adosados
$247,999
2 camas 2 baños 1,398 sqft
1552 BLUE MAGNOLIA ROAD
2030 FLUORSHIRE DRIVE placeholder 2030 FLUORSHIRE DRIVE
10 días
En Venta
Adosados
$225,000
2 camas 2 baños 1,595 sqft
2030 FLUORSHIRE DRIVE
952 VISTA CAY COURT placeholder 952 VISTA CAY COURT
21 días
En Venta
Adosados
$249,999
2 camas 2 baños 1,574 sqft
952 VISTA CAY COURT
6012 PORTSDALE PLACE UNIT 101 placeholder 6012 PORTSDALE PLACE UNIT 101
23 días
En Venta
Condo / Coop
$175,000
3 camas 2 baños 1,151 sqft
6012 PORTSDALE PLACE UNIT 101
2023 FLUORSHIRE DRIVE placeholder 2023 FLUORSHIRE DRIVE
25 días
En Venta
Adosados
$240,000
3 camas 2 baños 1,364 sqft
2023 FLUORSHIRE DRIVE
632 KENSINGTON LAKE CIR placeholder 632 KENSINGTON LAKE CIR
30 días
En Venta
Adosados
$230,000
2 camas 2 baños 1,396 sqft
632 KENSINGTON LAKE CIR
2113 FLUORSHIRE DRIVE placeholder 2113 FLUORSHIRE DRIVE
-$13K (2026/01/03)
En Venta
Adosados
$212,000
2 camas 2 baños 1,595 sqft
2113 FLUORSHIRE DRIVE

The multiple listing information is provided by the Stellar MLS from a copyrighted compilation of listings. The compilation of listings and each individual listing are ©2026-present Stellar MLS. All Rights Reserved. The information provided is for consumers' personal, noncommercial use and may not be used for any purpose other than to identify prospective properties consumers may be interested in purchasing. All properties are subject to prior sale or withdrawal. All information provided is deemed reliable but is not guaranteed accurate, and should be independently verified. Listing courtesy of: KELLER WILLIAMS SUBURBAN TAMPA