Contacto
Cuéntenos sobre sus necesidades

2625 OCOEE APOPKA ROAD UNIT 7

Comercial En Venta
$910,000

BTC: 13.50810345

ETH: 466.66666667

-$40K (2025/10/02)
229 días
0 room(s)
Est. Rango de ventas estimado: $0 - $0
$0

Visión general

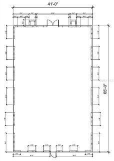
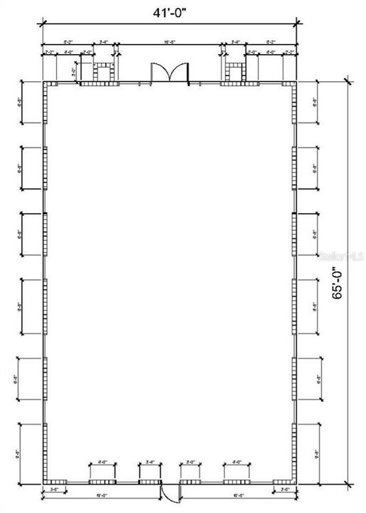
Under Construction. Building #07 is available for purchase at Lake Carter Exchange, a distinguished mixed-use development in Apopka’s East Shore at the intersection of Ocoee-Apopka Road and W Keene Road. This dark gray shell building is ideal for medical or professional offices, with potential for retail use based on buyer needs. The shell delivery offers full flexibility for custom interior design. The development is strategically located less than one mile from Advent Health’s seven-story, 120-bed hospital and opposite a new Publix Supermarket development. Situated in the vibrant East Shore trade area, which includes 5,000 planned residences and an average household income above $100k, this Class A property is perfectly positioned for businesses targeting growth in Central Florida’s second-fastest-growing city. Contact us for pricing details/incentives and to schedule a tour of this exceptional commercial opportunity.

Ubicación

Hechos y características

Tipo:
Commercial Sale
Estacionamiento:
Sin datos
Año de construcción:
2025
Lote:
0.11 Hectáreas
Calefacción:
Sin datos
precio por sq. medidor:
Sin datos
Enfriamiento:
None
HOA:
Sin datos
Más hechos y características
  • Enfriamiento

    • None

  • Propiedad

    • Pisos: One

    Lote

    • Lote: 0.11 Hectáreas

    Otra Información de Propiedad

    • Número de Parcela: 292128437607000

  • Tipo y estilo

    • Tipo de propiedad: Commercial Sale

    • Subtipo de propiedad: Office

  • Utilidad

    • Public

  • Detalles de la fuente

    • MLS ID: O6300773

    Otros hechos

    • Materiales de construcción: Block / Brick / Stucco

    • Detalles de la fundación: Stem Wall

    • Fuente de agua: Public

Casas similares

1452 WATERVIEW RIDGE CIRCLE placeholder 1452 WATERVIEW RIDGE CIRCLE
6 días
En Venta
Casa
$698,000
5 camas 4 baños 3,825 sqft
1452 WATERVIEW RIDGE CIRCLE
3127 PICCOLO COURT placeholder 3127 PICCOLO COURT
16 días
En Venta
Casa
$675,000
4 camas 4 baños 3,637 sqft
3127 PICCOLO COURT
1772 STONECLIFF DRIVE placeholder 1772 STONECLIFF DRIVE
27 días
En Venta
Casa
$933,946
5 camas 4 baños 3,987 sqft
1772 STONECLIFF DRIVE
2468 VERDE VIEW DRIVE placeholder 2468 VERDE VIEW DRIVE
-$100K (2026/01/05)
En Venta
Casa
$799,000
5 camas 4 baños 4,850 sqft
2468 VERDE VIEW DRIVE
702 POINTE EMERSON BOULEVARD placeholder 702 POINTE EMERSON BOULEVARD
-$36K (2025/12/07)
En Venta
Casa
$799,000
5 camas 4 baños 3,777 sqft
702 POINTE EMERSON BOULEVARD
1465 STONECLIFF DRIVE placeholder 1465 STONECLIFF DRIVE
47 días
En Venta
Casa
$749,990
4 camas 3 baños 2,961 sqft
1465 STONECLIFF DRIVE
3828 WALKER ROAD placeholder 3828 WALKER ROAD
54 días
En Venta
Casa
$749,000
4 camas 1 baños 3,602 sqft
3828 WALKER ROAD
2019 PANORAMIC CIRCLE placeholder 2019 PANORAMIC CIRCLE
-$30K (2025/11/19)
En Venta
Casa
$645,000
5 camas 4 baños 2,958 sqft
2019 PANORAMIC CIRCLE

The multiple listing information is provided by the Stellar MLS from a copyrighted compilation of listings. The compilation of listings and each individual listing are ©2026-present Stellar MLS. All Rights Reserved. The information provided is for consumers' personal, noncommercial use and may not be used for any purpose other than to identify prospective properties consumers may be interested in purchasing. All properties are subject to prior sale or withdrawal. All information provided is deemed reliable but is not guaranteed accurate, and should be independently verified. Listing courtesy of: THE MARKS GROUP REALTY, LLC