Contacto
Cuéntenos sobre sus necesidades

2835 OCOEE APOPKA ROAD UNIT 13

Comercial En Venta
$1,360,000

BTC: 20.18793483

ETH: 697.43589744

229 días
0 room(s)
Est. Rango de ventas estimado: $0 - $0
$0

Visión general

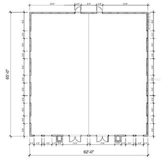
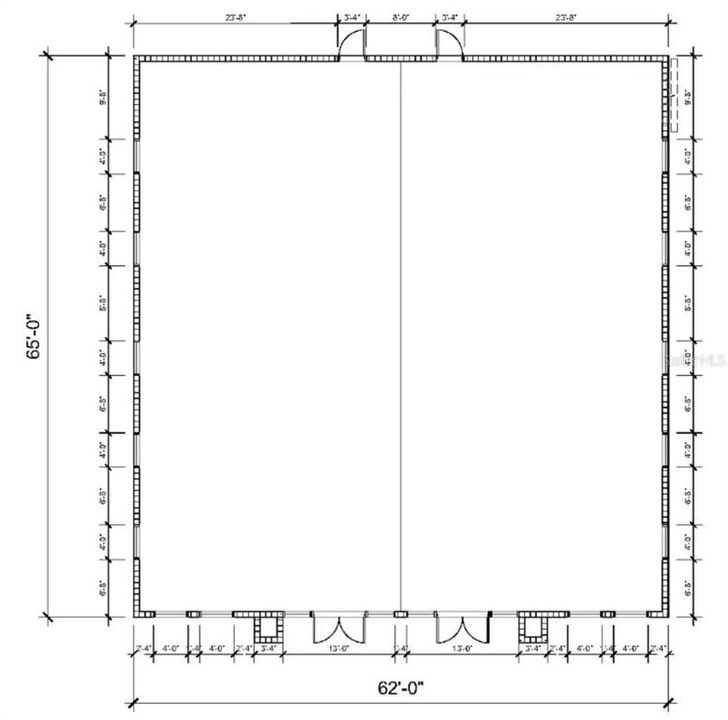
Under Construction. Building #13 is available for purchase at Lake Carter Exchange, a distinguished mixed-use development in Apopka’s East Shore at the intersection of Ocoee-Apopka Road and W Keene Road. This dark gray shell building is ideal for medical or professional offices, with potential for retail use based on buyer needs. The shell delivery offers full flexibility for custom interior design with two front entrances supporting up to two unique suites. The development is strategically located less than one mile from Advent Health’s seven-story, 120-bed hospital and opposite a new Publix Supermarket development. Situated in the vibrant East Shore trade area, which includes 5,000 planned residences and an average household income above $100k, this Class A property is perfectly positioned for businesses targeting growth in Central Florida’s second-fastest-growing city. Contact us for pricing details/incentives and to schedule a tour of this exceptional commercial opportunity.

Ubicación

Hechos y características

Tipo:
Commercial Sale
Estacionamiento:
Sin datos
Año de construcción:
2025
Lote:
0.15 Hectáreas
Calefacción:
Sin datos
precio por sq. medidor:
Sin datos
Enfriamiento:
None
HOA:
Sin datos
Más hechos y características
  • Enfriamiento

    • None

  • Propiedad

    • Pisos: One

    Lote

    • Lote: 0.15 Hectáreas

    Otra Información de Propiedad

    • Número de Parcela: 292128437613000

  • Tipo y estilo

    • Tipo de propiedad: Commercial Sale

    • Subtipo de propiedad: Office

  • Utilidad

    • Public

  • Detalles de la fuente

    • MLS ID: O6300799

    Otros hechos

    • Materiales de construcción: Block / Brick / Stucco

    • Detalles de la fundación: Stem Wall

    • Fuente de agua: Public

Casas similares

215 E MAIN STREET placeholder 215 E MAIN STREET
19 días
En Venta
Comercial
$1,550,000
0 room(s) 2,817 sqft
215 E MAIN STREET
842 CREEPING FIG STREET placeholder 842 CREEPING FIG STREET
217 días
En Venta
Casa
$1,099,000
5 camas 4 baños 3,485 sqft
842 CREEPING FIG STREET
2745 OCOEE APOPKA ROAD UNIT 10 placeholder 2745 OCOEE APOPKA ROAD UNIT 10
229 días
En Venta
Comercial
$1,360,000
0 room(s)
2745 OCOEE APOPKA ROAD UNIT 10
2505 FISHERMANS PARADISE ROAD placeholder 2505 FISHERMANS PARADISE ROAD
624 días
En Venta
Lotes / Tierras
$1,425,000
0 room(s)
2505 FISHERMANS PARADISE ROAD

The multiple listing information is provided by the Stellar MLS from a copyrighted compilation of listings. The compilation of listings and each individual listing are ©2026-present Stellar MLS. All Rights Reserved. The information provided is for consumers' personal, noncommercial use and may not be used for any purpose other than to identify prospective properties consumers may be interested in purchasing. All properties are subject to prior sale or withdrawal. All information provided is deemed reliable but is not guaranteed accurate, and should be independently verified. Listing courtesy of: THE MARKS GROUP REALTY, LLC