Contacto
Cuéntenos sobre sus necesidades

1963 TANGLEWOOD DRIVE NE

Casa En Venta
$1,290,000

BTC: 14.17582418

ETH: 645.00000000

3 días
Frente al mar
3 camas
2 baños
2,172 sqft
Est. Rango de ventas estimado: $0 - $0
$0

Visión general

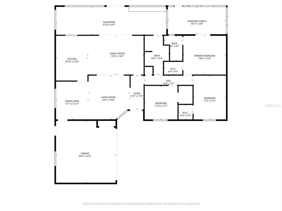
~~WATERFRONT POOL HOME~~Discover the perfect blend of coastal living and everyday comfort in this spacious 3-bedroom, 2-bath home located in Tanglewood, a hidden-gem neighborhood of mostly waterfront properties. Enjoy quick, unobstructed access to Tampa Bay, true SAILBOAT WATER, and your own boat lift; the ideal setup for effortless boating right from your backyard. Inside, the home offers a versatile and inviting layout with a welcoming living room, formal dining room, cozy family room, and a large, sun-filled Florida room. The updated kitchen features new shaker-style cabinetry, abundant storage, granite countertops, a stylish tile backsplash, and brand-new appliances. The spacious primary suite includes an en-suite bath, walk-in closet, and private access to the backyard via a screened patio, perfect for enjoying peaceful sunrises with your morning coffee. The two additional bedrooms also feature walk-in closets and generous space. Step outside to your personal retreat: a newly resurfaced PebbleTec pool with travertine decking, ideal for relaxing or entertaining. Additional features include a 2-car garage, space to park a trailer and valuable system upgrades: 1-year-old HVAC and water heater and a 3-year-old roof—providing peace of mind. Located close to schools, a golf course, the new YMCA, vibrant shops and restaurants along 4th Street, minutes from downtown St. Pete, and just 25 minutes to Tampa, this home offers an exceptional opportunity in a highly sought-after waterfront community.

Ubicación

Hechos y características

Tipo:
Residential
Estacionamiento:
Sin datos
Año de construcción:
1971
Lote:
0.21 Hectáreas
Calefacción:
Central
precio por sq. medidor:
$594
Enfriamiento:
Central Air
HOA:
Sin datos
Más hechos y características
  • Piso

    • Tile

    Calefacción

    • Central

    Enfriamiento

    • Central Air

    Accesorios

    • Dishwasher

    • Dryer

    • Range

    • Refrigerator

    • Washer

    Otras características interiores

    • Ceiling Fan(s)

    • Kitchen/Family Room Combo

    • Living Room/Dining Room Combo

    • Walk-In Closet(s)

    Dormitorios y baños

    • Dormitorios: 3

    • Baños completos: 2

  • Propiedad

    • Pisos: One

    • Piscina Privada: Si

    • Características Exteriores: Private Entrance / Private Mailbox

    Lote

    • Lote: 0.21 Hectáreas

    Otra Información de Propiedad

    • Número de Parcela: 333017897570010010

  • Tipo y estilo

    • Tipo de propiedad: Residential

    • Subtipo de propiedad: Single Family Residence

  • Utilidad

    • BB/HS Internet Available

    • Electricity Connected

    • Sewer Connected

    • Water Connected

  • Otra información financiera

    • Importe anual de impuestos: $7,332

  • Detalles de la fuente

    • MLS ID: TB8453154

    Otros hechos

    • Materiales de construcción: Block / Stucco

    • Detalles de la fundación: Slab

    • Características de lavandería: In Garage

    • Características de la piscina: Deck / In Ground

    • Caras de dirección: South

    • Frente al mar: Si

    • Espacios de garaje: 2

    • Garaje adjunto: Si

    • Garaje: Si

    • Salón: 2172

    • Fuente de agua: Public

    • Tamaño de la parcela: 78 x 120

    • Nombre de subdivisión: TANGLEWOOD ISLE SUB

Casas similares

719 40TH AVENUE N placeholder 719 40TH AVENUE N
2 días
En Venta
Casa
$1,495,000
4 camas 3 baños 3,154 sqft
719 40TH AVENUE N
1920 HAWAII AVENUE NE placeholder 1920 HAWAII AVENUE NE
6 días
En Venta
Lotes / Tierras
$1,625,000
0 room(s)
1920 HAWAII AVENUE NE
167 ALMEDO WAY NE placeholder 167 ALMEDO WAY NE
7 días
En Venta
Lotes / Tierras
$1,100,000
0 room(s)
167 ALMEDO WAY NE
246 44TH AVENUE N placeholder 246 44TH AVENUE N
9 días
En Venta
Casa
$1,249,990
4 camas 4 baños 3,044 sqft
246 44TH AVENUE N
2000 KANSAS AVENUE NE placeholder 2000 KANSAS AVENUE NE
9 días
En Venta
Casa
$1,595,000
5 camas 3 baños 2,495 sqft
2000 KANSAS AVENUE NE
1739 BAYOU GRANDE BOULEVARD NE placeholder 1739 BAYOU GRANDE BOULEVARD NE
10 días
En Venta
Casa
$1,349,000
3 camas 2 baños 1,658 sqft
1739 BAYOU GRANDE BOULEVARD NE
3104 11TH STREET N placeholder 3104 11TH STREET N
11 días
En Venta
Casa
$1,375,000
4 camas 3 baños 2,703 sqft
3104 11TH STREET N
465 47TH AVENUE N placeholder 465 47TH AVENUE N
11 días
En Venta
Casa
$1,325,000
5 camas 3 baños 2,964 sqft
465 47TH AVENUE N

The multiple listing information is provided by the Stellar MLS from a copyrighted compilation of listings. The compilation of listings and each individual listing are ©2025-present Stellar MLS. All Rights Reserved. The information provided is for consumers' personal, noncommercial use and may not be used for any purpose other than to identify prospective properties consumers may be interested in purchasing. All properties are subject to prior sale or withdrawal. All information provided is deemed reliable but is not guaranteed accurate, and should be independently verified. Listing courtesy of: KELLER WILLIAMS ST PETE REALTY