Недвижимость
Ознакомьтесь с нашими объявлениями
Контакты
Расскажите нам о своих потребностях

658 15TH STREET NW

Участки / Земля На продажу
$298,000

BTC: 4.25714286

ETH: 2,980.00000000

-$101K (2026/03/24)
84 Дней
0 room(s)
Est. Предполагаемый диапазон продаж: $0 - $0
$0

Обзор

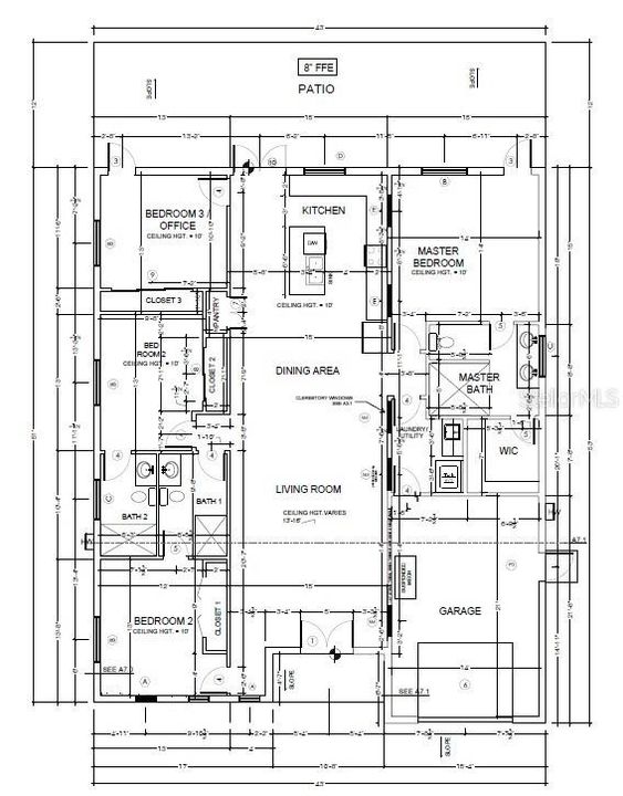
**CLEARED Vacant Lot – Largo, FL.** Build-ready **60 x 136 lot (8,160 sq ft)** **single-family home (rendering available) OR a duplex (rendering available)**. Duplex approval includes **separate addresses and separate utilities for each unit**. Shallow well installed for irrigation. **. Architect-designed plans available for a **2,174 sq ft modern home with 4 bedrooms, 3 baths, garage, and patio** **Short-term rentals allowed and ADU allowed** **No HOA. Not in a flood zone.** Lot is fully prepared with **trees removed, demolition completed, and permits approved**. Located approx. **2 miles to Belleair Beach**, near parks, golf courses, Pinellas Trail, shopping, dining, and transit. Rare opportunity for **investors or owner-builders** seeking flexibility and income potential. Rare chance to secure a **build-ready, income-friendly lot** in one of Pinellas County’s most desirable areas.

Локация

Факты и особенности

Тип:
Land
Парковка:
Нет данных
Год постройки:
Нет данных
Лот:
0.19 Акров
Отопление:
Нет данных
Цена/кв.фут:
Нет данных
Охлаждение:
Нет данных
HOA:
Нет данных
Больше фактов и особенностей
  • Лот

    • Лот: 0.19 Акров

    Другая Информация о Недвижимости

    • Номер Земельного Участка: 332915679680000200

  • Тип и стиль

    • Тип недвижимости: Land

  • Общественное благосостояние

    • Cable Available

    • Electricity Available

    • Natural Gas Available

    • Public

    • Sewer Connected

    • Street Lights

    • Water Available

  • Другая финансовая информация

    • Годовая сумма налога: $420

  • Детали источника

    • MLS ID: TB8463856

    Другие факты

    • Особенности лота: Buildable / Cleared / City Lot / Level / Near Golf Course / Near Marina / Near Public Transit

    • Направленные лица: East

    • Источник воды: Public / Well

    • Размеры участка: 60 x 136

    • Название подразделения: PATTERSONS C A SUB

Похожие дома

3252 21ST PLACE SW placeholder 3252 21ST PLACE SW
Новое
На продажу
Дом
$290,000
2 спален 1 ванн 875 кв.фт.
3252 21ST PLACE SW
712 S CREST AVENUE placeholder 712 S CREST AVENUE
Новое
На продажу
Дом
$367,900
3 спален 2 ванн 1,095 кв.фт.
712 S CREST AVENUE
707 S PROSPECT AVENUE placeholder 707 S PROSPECT AVENUE
2 Дней
На продажу
Дом
$315,000
2 спален 1 ванн 1,408 кв.фт.
707 S PROSPECT AVENUE
2153 POCAHONTAS DRIVE placeholder 2153 POCAHONTAS DRIVE
3 Дней
На продажу
Дом
$369,900
3 спален 2 ванн 993 кв.фт.
2153 POCAHONTAS DRIVE
1207 PINE AVENUE NW placeholder 1207 PINE AVENUE NW
3 Дней
На продажу
Участки / Земля
$259,000
0 room(s)
1207 PINE AVENUE NW
601 MCLENNAN ST placeholder 601 MCLENNAN ST
3 Дней
На продажу
Дом
$245,000
3 спален 1 ванн 786 кв.фт.
601 MCLENNAN ST
1461 S JEFFERSON AVENUE placeholder 1461 S JEFFERSON AVENUE
4 Дней
На продажу
Дом
$358,800
3 спален 2 ванн 1,312 кв.фт.
1461 S JEFFERSON AVENUE
1445 PINE STREET placeholder 1445 PINE STREET
5 Дней
На продажу
Дом
$325,000
2 спален 2 ванн 955 кв.фт.
1445 PINE STREET

The multiple listing information is provided by the Stellar MLS from a copyrighted compilation of listings. The compilation of listings and each individual listing are ©2026-present Stellar MLS. All Rights Reserved. The information provided is for consumers' personal, noncommercial use and may not be used for any purpose other than to identify prospective properties consumers may be interested in purchasing. All properties are subject to prior sale or withdrawal. All information provided is deemed reliable but is not guaranteed accurate, and should be independently verified. Listing courtesy of: FUTURE HOME REALTY INC