Недвижимость
Ознакомьтесь с нашими объявлениями
Контакты
Расскажите нам о своих потребностях

1361 NW 155th Dr, Miami Gardens FL 33169

Коммерческий В аренду
$14

BTC: 0.00021068

ETH: 0.00710992

/mo
71 Дней
0 room(s)
Est. Предполагаемый диапазон продаж: $0 - $0
$0

Обзор

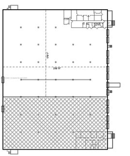
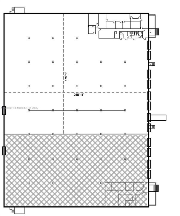
Located in the Sunshine State Industrial Park, this ±39,000 SF warehouse (±36,200 SF warehouse + ±2,800 SF office) offers modern functionality and unbeatable logistics access. With 22-foot clear height, heavy 3-phase power, 8 dock-height doors, and a secure fenced lot, this property is ideal for distribution, manufacturing, or logistics operations. The property offers immediate access to the Golden Glades Interchange, connecting SR-826 (Palmetto Expressway), Florida’s Turnpike, and I-95 — providing direct routes to Port of Miami, Miami International Airport, and key South Florida markets. Available May 1, 2026, with the sublease running through May 1, 2030 $14.00/SF Gross.

Локация

Факты и особенности

Тип:
Commercial Sale
Парковка:
Нет данных
Год постройки:
1973
Лот:
151638 Квадратных Футов
Отопление:
Нет данных
Цена/кв.фут:
Нет данных
Охлаждение:
Нет данных
HOA:
Нет данных
Больше фактов и особенностей
  • Лот

    • Лот: 151638 Квадратных Футов

    Другая Информация о Недвижимости

    • Номер Земельного Участка: 34-21-14-008-1380

    • Зонирование: 7100

  • Тип и стиль

    • Тип недвижимости: Commercial Sale

    • Подтип недвижимости: Industrial

  • Другая финансовая информация

    • Годовая сумма налога: $154,958

  • Детали источника

    • MLS ID: A11903991

Похожие дома

699 NE 167th St, North Miami Beach FL 33162 placeholder 699 NE 167th St, North Miami Beach FL 33162
6 Дней
В аренду
Коммерческий
$18 /mo
0 room(s)
699 NE 167th St, North Miami Beach FL 33162
2450 NW 151st St, Opa-Locka FL 33054 placeholder 2450 NW 151st St, Opa-Locka FL 33054
93 Дней
В аренду
Коммерческий
$15 /mo
0 room(s)
2450 NW 151st St, Opa-Locka FL 33054
12800 NW 38th Ave, Opa-Locka FL 33054 placeholder 12800 NW 38th Ave, Opa-Locka FL 33054
97 Дней
В аренду
Коммерческий
$16 /mo
0 room(s)
12800 NW 38th Ave, Opa-Locka FL 33054
12900 NW 38th Ave, Opa-Locka FL 33054 placeholder 12900 NW 38th Ave, Opa-Locka FL 33054
-$1 (2025/09/29)
В аренду
Коммерческий
$13 /mo
0 room(s)
12900 NW 38th Ave, Opa-Locka FL 33054
14931 NW 27th Ave, Opa-Locka FL 33054 placeholder 14931 NW 27th Ave, Opa-Locka FL 33054
-$1 (2025/11/07)
В аренду
Коммерческий
$17 /mo
0 room(s)
14931 NW 27th Ave, Opa-Locka FL 33054
1600 NW 165th St, Miami Gardens FL 33169 placeholder 1600 NW 165th St, Miami Gardens FL 33169
216 Дней
В аренду
Коммерческий
$16 /mo
0 room(s)
1600 NW 165th St, Miami Gardens FL 33169
1098 NW 159th Dr, Miami Gardens FL 33169 placeholder 1098 NW 159th Dr, Miami Gardens FL 33169
261 Дней
В аренду
Коммерческий
$14 /mo
0 room(s)
1098 NW 159th Dr, Miami Gardens FL 33169
16301 NW 15th Ave, Miami Gardens FL 33169 placeholder 16301 NW 15th Ave, Miami Gardens FL 33169
261 Дней
В аренду
Коммерческий
$16 /mo
0 room(s)
16301 NW 15th Ave, Miami Gardens FL 33169

The multiple listing information is provided by the Miami Association of REALTORS® from a copyrighted compilation of listings. The compilation of listings and each individual listing are ©2026-present Miami Association of REALTORS®. All Rights Reserved. The information provided is for consumers' personal, noncommercial use and may not be used for any purpose other than to identify prospective properties consumers may be interested in purchasing. All properties are subject to prior sale or withdrawal. All information provided is deemed reliable but is not guaranteed accurate, and should be independently verified. Listing courtesy of: Industrial Advisors