Недвижимость
Ознакомьтесь с нашими объявлениями
Контакты
Расскажите нам о своих потребностях

100 WATERWAY AVENUE

На продажу
$217,800

BTC: 3.20294118

ETH: 2,178.00000000

44 Дней
Набережная
3 спален
2 ванн
1,985 кв.фт.
Est. Предполагаемый диапазон продаж: $0 - $0
$0

Обзор

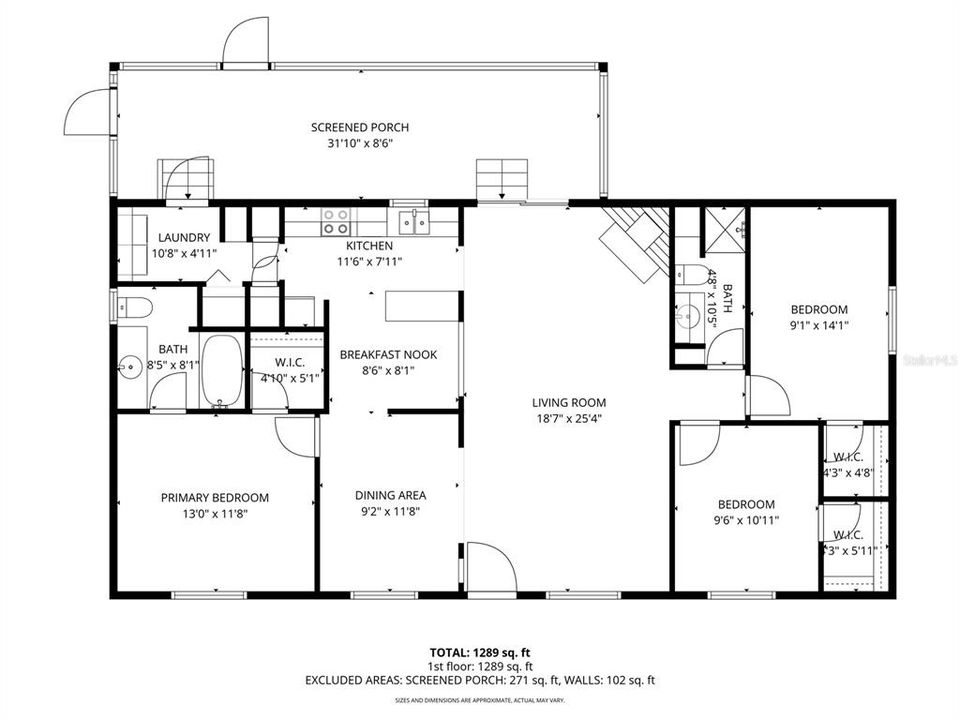
Affordable Canal-Front Living Near Dunns Creek-Discover the perfect blend of comfort and convenience in this cozy 3-bedroom, 2-bath doublewide home with direct canal access to Dunns Creek, Lake Crescent, the St. Johns River, and beyond. Bring your boat and fishing gear—this property includes a dock (needs TLC) and covered boathouse with lift, making it easy to enjoy days on the water. Inside, the spacious living room features a wood-burning fireplace, ideal for cozy winter evenings. Step out onto the 31.10 x 8.6 screened back porch to unwind and listen to the songs of native birds. A small, fenced area in the backyard provides a safe space for pets to play, along with a 2-car garage and workshop. Situated on a corner lot, this home offers quick access to downtown Palatka(approx 10 minutes), St. Augustine,(approx 35 minutes) and nearby beaches(approx 30 minutes)—a wonderful opportunity for affordable waterfront living in a peaceful setting. Priced to sell !!

Локация

Факты и особенности

Тип:
Residential
Парковка:
Workshop in Garage
Год постройки:
1985
Лот:
0.70 Акров
Отопление:
Central / Electric
Цена/кв.фут:
$110
Охлаждение:
Central Air
HOA:
Нет данных
Больше фактов и особенностей
  • Напольное покрытие

    • Carpet

    • Laminate

    Отопление

    • Central

    • Electric

    Охлаждение

    • Central Air

    Бытовая техника

    • Dishwasher

    • Microwave

    • Range

    • Refrigerator

    Другие особенности интерьера

    • Cathedral Ceiling(s)

    • Ceiling Fan(s)

    • Eating Space In Kitchen

    • Vaulted Ceiling(s)

    • Walk-In Closet(s)

    • Window Treatments

    Спальни и ванные комнаты

    • Спальни: 3

    • Полные ванные комнаты: 2

  • Парковка

    • Workshop in Garage

    Имущество

    • Этажи: One

    • Особенности Экстерьера: Private Mailbox

    Лот

    • Лот: 0.70 Акров

    Другая Информация о Недвижимости

    • Номер Земельного Участка: 431027825400100260

    • Зонирование: R-2

  • Тип и стиль

    • Тип недвижимости: Residential

    • Подтип недвижимости: Manufactured Home

  • Общественное благосостояние

    • Electricity Connected

  • Другая финансовая информация

    • Годовая сумма налога: $761

  • Детали источника

    • MLS ID: GC537787

    Другие факты

    • Строительные материалы: Wood Frame

    • Детали фундамента: Crawlspace

    • Особенности камина: Wood Burning

    • Особенности прачечной: Electric Dryer Hookup / Laundry Room / Washer Hookup

    • Особенности лота: Cleared / Corner Lot / In County

    • Особенности двора и крыльца: Rear Porch / Screened

    • Особенности окна: Drapes

    • Направленные лица: Northwest

    • Берег: Да

    • Камин: Да

    • Название водоема: CANAL OFF DUNN'S CREEK

    • Мест в гараже: 2

    • Гараж: Да

    • Жилая площадь: 1985

    • Источник воды: Well

    • Размеры участка: 110 x 266 x 143 x 218

    • Название подразделения: ST JOHNS RIVERSIDE ESTATES RIVEROAKS SEC 1ST ADD

Похожие дома

354 HOOT OWL ROAD placeholder 354 HOOT OWL ROAD
10 Дней
На продажу
Дом
$235,000
3 спален 2 ванн 1,490 кв.фт.
354 HOOT OWL ROAD
329 HOOT OWL ROAD placeholder 329 HOOT OWL ROAD
12 Дней
На продажу
Дом
$235,000
3 спален 2 ванн 1,254 кв.фт.
329 HOOT OWL ROAD
106 BROWNS ROAD placeholder 106 BROWNS ROAD
-$10K (2026/03/30)
На продажу
$229,000
3 спален 2 ванн 1,296 кв.фт.
106 BROWNS ROAD
204 RABBIT TRACK ROAD placeholder 204 RABBIT TRACK ROAD
-$6K (2026/03/11)
На продажу
$229,000
3 спален 2 ванн 1,248 кв.фт.
204 RABBIT TRACK ROAD
782 S US HIGHWAY 17 placeholder 782 S US HIGHWAY 17
42 Дней
На продажу
Участки / Земля
$170,000
0 room(s)
782 S US HIGHWAY 17
231 TROPIC AVENUE placeholder 231 TROPIC AVENUE
123 Дней
На продажу
$254,900
3 спален 2 ванн 1,296 кв.фт.
231 TROPIC AVENUE
134 WEERTS ROAD placeholder 134 WEERTS ROAD
-$40K (2026/02/13)
На продажу
$199,900
3 спален 2 ванн 1,248 кв.фт.
134 WEERTS ROAD
115 TROUPE ROAD placeholder 115 TROUPE ROAD
236 Дней
На продажу
Дом
$250,000
2 спален 1 ванн 1,888 кв.фт.
115 TROUPE ROAD

The multiple listing information is provided by the Stellar MLS from a copyrighted compilation of listings. The compilation of listings and each individual listing are ©2026-present Stellar MLS. All Rights Reserved. The information provided is for consumers' personal, noncommercial use and may not be used for any purpose other than to identify prospective properties consumers may be interested in purchasing. All properties are subject to prior sale or withdrawal. All information provided is deemed reliable but is not guaranteed accurate, and should be independently verified. Listing courtesy of: COLDWELL BANKER BEN BATES, INC