Недвижимость
Ознакомьтесь с нашими объявлениями
Контакты
Расскажите нам о своих потребностях

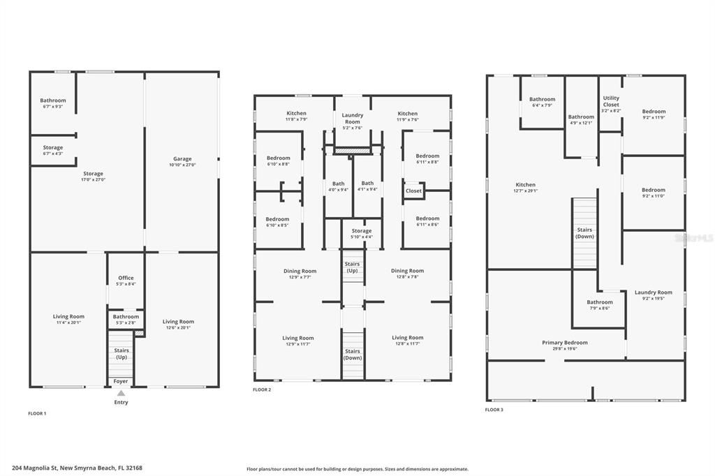
204 MAGNOLIA STREET

Коммерческий На продажу
$999,900

BTC: 33.33000000

ETH: 499.95000000

-$99K (2025/11/18)
117 Дней
0 room(s)
4,422 кв.фт.
Est. Предполагаемый диапазон продаж: $0 - $0
$0

Обзор

Unique opportunity in the heart of the Canal Street Historic District! This 6,753 sq ft, three-story mixed-use property offers the ultimate flexibility for investors, entrepreneurs, or creative visionaries. Zoned Mixed Use and located steps from New Smyrna Beach’s vibrant dining, shopping, and arts scene, this property blends history, location, and income potential. The second floor features existing apartments ideal for short- or long-term rentals (check with the municipality for restrictions). The third floor offers versatile flex space — perfect for a private event venue, large residential loft, or an inspiring art studio framed by exposed brick and wooden beams. The first floor provides prime commercial frontage visible from Canal Street, with original wood floors and industrial-style charm that set the stage for retail, dining, or creative businesses. The included rear lot provides valuable additional space, ideal for a landscaped courtyard, parking, or future expansion. Enjoy a premier location just blocks from the Intracoastal Waterway, where waterfront parks, marinas, and boating activities are at your doorstep, and only a short drive to New Smyrna Beach’s famous sandy shoreline. Currently mid-renovation, the property is ready for your finishing touches. Whether you choose to live and work from the same address, lease the residential units, rent all or part of the commercial space, or bring a fresh concept to life, this historic building is truly a blank canvas in one of Florida’s most charming coastal districts.

Локация

Факты и особенности

Тип:
Commercial Sale
Парковка:
Нет данных
Год постройки:
1927
Лот:
0.22 Акров
Отопление:
Нет данных
Цена/кв.фут:
$226
Охлаждение:
Other
HOA:
Нет данных
Больше фактов и особенностей
  • Охлаждение

    • Other

  • Имущество

    • Этажи: Three Or More

    Лот

    • Лот: 0.22 Акров

    Другая Информация о Недвижимости

    • Номер Земельного Участка: 41173438090911

    • Зонирование: 10B1

  • Тип и стиль

    • Тип недвижимости: Commercial Sale

    • Подтип недвижимости: Mixed Use

  • Другая финансовая информация

    • Годовая сумма налога: $18,281

  • Детали источника

    • MLS ID: V4944223

    Другие факты

    • Строительные материалы: Brick

    • Детали фундамента: Slab

    • Жилая площадь: 4422

    • Название подразделения: ANDREWS NEW SMYRNA

Похожие дома

250 MINORCA BEACH WAY UNIT 701 placeholder 250 MINORCA BEACH WAY UNIT 701
Новое
На продажу
Квартира
$1,215,000
3 спален 2 ванн 2,110 кв.фт.
250 MINORCA BEACH WAY UNIT 701
402 LINCOLN AVENUE placeholder 402 LINCOLN AVENUE
7 Дней
На продажу
Дом
$849,000
2 спален 2 ванн 1,205 кв.фт.
402 LINCOLN AVENUE
922 LOCUST STREET placeholder 922 LOCUST STREET
10 Дней
На продажу
Дом
$775,000
3 спален 3 ванн 1,642 кв.фт.
922 LOCUST STREET
712-714 OAKWOOD AVENUE placeholder 712-714 OAKWOOD AVENUE
15 Дней
На продажу
Дом
$965,000
4 спален 2 ванн 1,800 кв.фт.
712-714 OAKWOOD AVENUE
2700 N PENINSULA AVENUE UNIT 214 placeholder 2700 N PENINSULA AVENUE UNIT 214
18 Дней
На продажу
Квартира
$1,025,000
3 спален 2 ванн 1,792 кв.фт.
2700 N PENINSULA AVENUE UNIT 214
438 BOUCHELLE DRIVE UNIT 105 placeholder 438 BOUCHELLE DRIVE UNIT 105
18 Дней
На продажу
Квартира
$749,900
3 спален 2 ванн 1,614 кв.фт.
438 BOUCHELLE DRIVE UNIT 105
799 E 22ND AVENUE placeholder 799 E 22ND AVENUE
21 Дней
На продажу
Дом
$809,999
3 спален 2 ванн 1,422 кв.фт.
799 E 22ND AVENUE
257 MINORCA BEACH WAY UNIT 904 placeholder 257 MINORCA BEACH WAY UNIT 904
21 Дней
На продажу
Квартира
$950,000
2 спален 2 ванн 1,489 кв.фт.
257 MINORCA BEACH WAY UNIT 904

The multiple listing information is provided by the Stellar MLS from a copyrighted compilation of listings. The compilation of listings and each individual listing are ©2025-present Stellar MLS. All Rights Reserved. The information provided is for consumers' personal, noncommercial use and may not be used for any purpose other than to identify prospective properties consumers may be interested in purchasing. All properties are subject to prior sale or withdrawal. All information provided is deemed reliable but is not guaranteed accurate, and should be independently verified. Listing courtesy of: GLORY INTL. REAL ESTATE CO