Недвижимость
Ознакомьтесь с нашими объявлениями
Контакты
Расскажите нам о своих потребностях

10561 NE 104TH CIRCLE

Дом На продажу
$1,249,900

BTC: 41.66333333

ETH: 624.95000000

2 Дней
4 спален
3 ванн
3,088 кв.фт.
Est. Предполагаемый диапазон продаж: $0 - $0
$0

Обзор

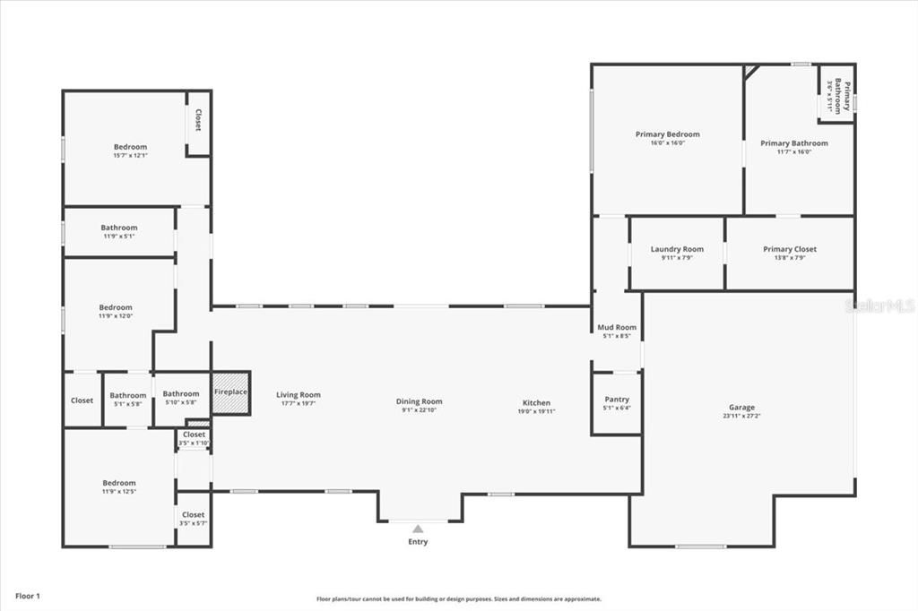
Welcome to this exceptional custom-built block home set on 5.12 acres in the gated community of Sumter Crossing. Completed in 2023 and offering 3,088 sq ft of living space, this residence blends quality construction, modern efficiency, and thoughtful custom design—perfect for buyers seeking privacy, acreage, and refined living. Inside, the home features 10 ft ceilings, 8 ft doors, LVP flooring, custom cabinetry, and an open layout centered around a beautiful brick wood-burning fireplace with a gas starter. The chef’s kitchen includes quartz countertops, a 48-inch gas range, large island, wine bar, custom cabinetry, and a walk-in pantry with integrated coffee bar. The primary suite offers a custom-designed walk-in closet with exceptional organization. Outdoor living is enhanced by a full summer kitchen on the covered back porch, finished with brick pavers that complement the home’s design. The front porch also features its own brick paver finish, creating a welcoming entry. The property is fully fenced (2023) and allows pets including equine and bovine, offering flexibility for recreation, livestock, or creating a private retreat. Designed for high efficiency and long-term performance, the home features Icynene spray-foam insulation throughout the attic, block construction with injected foam insulation on the front elevation, dual gas tankless water heaters, and a Generac 24-KW whole-home generator supported by a 1,000-gallon buried propane tank near the garage and well. Together, these features contribute to a remarkably low electric bill and superior year-round comfort. The home also includes a salt-filtration water softener system and operates on well and septic for added independence. The oversized 2.5-car garage offers epoxy flooring and is pre-wired for two EV charging ports, one on each side. Above the garage is a dedicated mechanical room that keeps major systems accessible without occupying attic space. A second attic access is located on the opposite end of the house. The electrical panel includes an extra 100-amp junction box, ideal for adding a barn, workshop, or future guest house. Additional upgrades include a custom mudroom bench, custom cabinets in the kitchen and baths, custom built-in bookshelves, smart-home systems (doorbell, thermostats, locks, garage controls, smoke and carbon monoxide detectors), and an AC system with 3 zones and a 5-ton unit. This extraordinary property combines acreage, luxury finishes, modern efficiency, and endless lifestyle possibilities—all within a peaceful gated setting. A rare opportunity to own a refined, move-in-ready estate crafted with exceptional detail. (Up to 2% of the loan amount available as a credit to the buyer toward closing costs, pre-paids, or rate buy-down when using preferred lender. Buyer may choose any lender of their preference.)

Локация

Факты и особенности

Тип:
Residential
Парковка:
Circular Driveway / Driveway / Garage Door Opener / Garage Faces Side / Golf Cart Garage
Год постройки:
2023
Лот:
5.12 Акров
Отопление:
Central / Electric
Цена/кв.фут:
$405
Охлаждение:
Central Air
HOA:
$1,100
Больше фактов и особенностей
  • Напольное покрытие

    • Carpet

    • Luxury Vinyl

    Отопление

    • Central

    • Electric

    Охлаждение

    • Central Air

    Бытовая техника

    • Cooktop

    • Dishwasher

    • Disposal

    • Dryer

    • Microwave

    • Range

    • Refrigerator

    • Tankless Water Heater

    • Washer

    • Water Filtration System

    • Wine Refrigerator

    Другие особенности интерьера

    • Built-in Features

    • Cathedral Ceiling(s)

    • Ceiling Fan(s)

    • Eating Space In Kitchen

    • High Ceilings

    • Living Room/Dining Room Combo

    • Open Floorplan

    • Primary Bedroom Main Floor

    • Smart Home

    • Split Bedroom

    • Thermostat

    • Vaulted Ceiling(s)

    • Walk-In Closet(s)

    Спальни и ванные комнаты

    • Спальни: 4

    • Полные ванные комнаты: 3

  • Парковка

    • Circular Driveway

    • Driveway

    • Garage Door Opener

    • Garage Faces Side

    • Golf Cart Garage

    Имущество

    • Этажи: One

    • Особенности Экстерьера: French Doors / Outdoor Kitchen / Private Entrance / Private Mailbox / Sidewalk / Sprinkler Metered

    Лот

    • Лот: 5.12 Акров

    Другая Информация о Недвижимости

    • Номер Земельного Участка: C24B010

    • Зонирование: X

  • Тип и стиль

    • Тип недвижимости: Residential

    • Подтип недвижимости: Single Family Residence

  • Общественное благосостояние

    • Cable Connected

    • Electricity Connected

    • Water Connected

    Озеленение

    • Insulation

    • Thermostat

  • Другая финансовая информация

    • HOA: $1,100

    • Частота HOA: Annually

    • Годовая сумма налога: $5,161

  • Детали источника

    • MLS ID: OM714193

    Другие факты

    • Строительные материалы: Block

    • Детали фундамента: Slab

    • Особенности камина: Gas / Living Room / Wood Burning

    • Особенности прачечной: Electric Dryer Hookup / Inside / Laundry Room / Same Floor As Condo Unit / Washer Hookup

    • Особенности лота: Farm / In County / Landscaped / Pasture / Zoned for Horses

    • Особенности двора и крыльца: Covered / Front Porch / Rear Porch

    • Особенности окна: Shades

    • Направленные лица: West

    • Другие структуры: Outdoor Kitchen

    • Камин: Да

    • Мест в гараже: 2

    • Прикрепленный гараж: Да

    • Гараж: Да

    • Жилая площадь: 3088

    • Источник воды: Well

    • Название подразделения: SUMTER XING

Похожие дома

10561 NE 104th Cir, Other City - In The State Of Florida FL 34484 placeholder 10561 NE 104th Cir, Other City - In The State Of Florida FL 34484
2 Дней
На продажу
Дом
$1,249,900
4 спален 3 ванн 3,088 кв.фт.
10561 NE 104th Cir, Other City - In The State Of Florida FL 34484
3636 E C-466 placeholder 3636 E C-466
67 Дней
На продажу
Коммерческий
$940,000
0 room(s) 2,105 кв.фт.
3636 E C-466
2540 NE 108TH LANE placeholder 2540 NE 108TH LANE
-$51K (2025/10/22)
На продажу
Дом
$1,149,000
4 спален 2 ванн 2,840 кв.фт.
2540 NE 108TH LANE
10757 COUNTY ROAD 223 placeholder 10757 COUNTY ROAD 223
90 Дней
На продажу
Дом
$1,200,000
4 спален 3 ванн 2,749 кв.фт.
10757 COUNTY ROAD 223
4040 COUNTY ROAD 104 placeholder 4040 COUNTY ROAD 104
128 Дней
На продажу
Участки / Земля
$1,200,000
0 room(s)
4040 COUNTY ROAD 104
1679 E COUNTY ROAD 462 placeholder 1679 E COUNTY ROAD 462
-$75K (2025/11/23)
На продажу
Дом
$899,900
3 спален 2 ванн 2,744 кв.фт.
1679 E COUNTY ROAD 462
SUMTER COUNTY ROAD 214 placeholder SUMTER COUNTY ROAD 214
-$18K (2025/06/06)
На продажу
Участки / Земля
$998,000
0 room(s)
SUMTER COUNTY ROAD 214
3778 E C-466 ROAD placeholder 3778 E C-466 ROAD
394 Дней
На продажу
Коммерческий
$940,000
0 room(s) 2,106 кв.фт.
3778 E C-466 ROAD

The multiple listing information is provided by the Stellar MLS from a copyrighted compilation of listings. The compilation of listings and each individual listing are ©2025-present Stellar MLS. All Rights Reserved. The information provided is for consumers' personal, noncommercial use and may not be used for any purpose other than to identify prospective properties consumers may be interested in purchasing. All properties are subject to prior sale or withdrawal. All information provided is deemed reliable but is not guaranteed accurate, and should be independently verified. Listing courtesy of: PROFESSIONAL REALTY OF OCALA