Недвижимость
Ознакомьтесь с нашими объявлениями
Контакты
Расскажите нам о своих потребностях

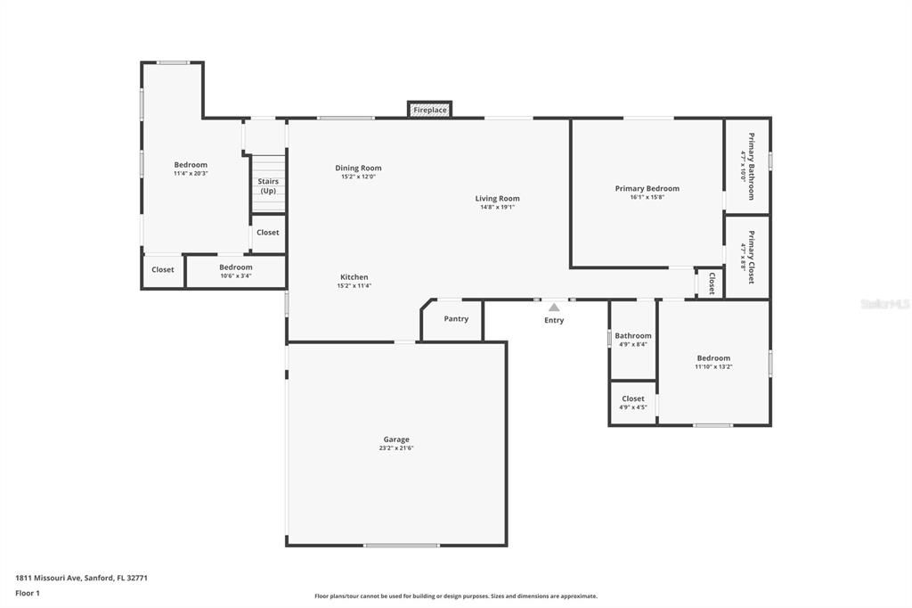
1811 MISSOURI AVENUE

Дом На продажу
$819,900

BTC: 12.61384615

ETH: 431.52631579

-$30K (2025/12/27)
200 Дней
Набережная
4 спален
3 ванн
2,159 кв.фт.
Est. Предполагаемый диапазон продаж: $0 - $0
$0

Обзор

Spacious Waterfront 4BR/3BA with In-Law Suite & Dock – Prime Sanford Location! This beautifully updated 4-bedroom, 3-bath home sits on a rare half-acre lot-and-a-half with direct canal access to the St Johns River, featuring a concrete seawall, private boat dock with boat lift, double jet ski lift, and ample space to relax by the water. The 2019 addition offers flexible living options: use it as a private in-law suite with its own entrance, or as a home office or studio with separate access from the main house. The home features hurricane-impact windows and doors, a durable metal roof, and upscale interior touches like crown molding and designer finishes typically found in luxury homes. Poured concrete safe room/panic room. Enjoy the spacious screened-in porch, perfect for entertaining or peaceful mornings overlooking the water. The property also boasts plenty of parking, mature landscaping, and room to roam—larger than most lots in the neighborhood. 30 Amp RV parking spot on the side of the house. Conveniently located just minutes from I-4 and the 417/Greenway, you're close to shopping, dining, and everything Central Florida has to offer. Nestled in Sanford, this location is perfectly positioned between Orlando and Daytona, offering the best of both worlds. Don’t miss this versatile, upgraded home with waterfront living and room to grow!

Локация

Факты и особенности

Тип:
Residential
Парковка:
Boat / Driveway / Garage Faces Side / Ground Level / RV Parking
Год постройки:
1979
Лот:
0.50 Акров
Отопление:
Central / Electric / Wall Units / Window Unit / Zoned
Цена/кв.фут:
$380
Охлаждение:
Central Air / Mini-Split Unit(s) / Zoned
HOA:
Нет данных
Больше фактов и особенностей
  • Напольное покрытие

    • Carpet

    • Ceramic Tile

    • Luxury Vinyl

    • Tile

    • Vinyl

    Отопление

    • Central

    • Electric

    • Wall Units / Window Unit

    • Zoned

    Охлаждение

    • Central Air

    • Mini-Split Unit(s)

    • Zoned

    Бытовая техника

    • Dishwasher

    • Electric Water Heater

    • Microwave

    Другие особенности интерьера

    • Ceiling Fan(s)

    • Crown Molding

    • Eating Space In Kitchen

    • Kitchen/Family Room Combo

    • Open Floorplan

    • Primary Bedroom Main Floor

    • Solid Wood Cabinets

    • Split Bedroom

    • Stone Counters

    • Thermostat

    • Walk-In Closet(s)

    • Window Treatments

    Спальни и ванные комнаты

    • Спальни: 4

    • Полные ванные комнаты: 3

  • Парковка

    • Boat

    • Driveway

    • Garage Faces Side

    • Ground Level

    • RV Parking

    Имущество

    • Этажи: Two

    • Особенности Экстерьера: French Doors / Irrigation System / Lighting / Private Mailbox / Storage

    Лот

    • Лот: 0.50 Акров

    Другая Информация о Недвижимости

    • Номер Земельного Участка: 1719305010C000060

    • Зонирование: R-1AA

  • Тип и стиль

    • Тип недвижимости: Residential

    • Подтип недвижимости: Single Family Residence

  • Общественное благосостояние

    • BB/HS Internet Available

    • Cable Connected

    • Electricity Connected

    • Fiber Optics

    • Public

    • Sprinkler Well

    • Street Lights

    • Water Connected

  • Другая финансовая информация

    • Годовая сумма налога: $4,255

  • Детали источника

    • MLS ID: O6320509

    Другие факты

    • Строительные материалы: Block / HardiPlank Type / Stucco

    • Детали фундамента: Slab

    • Особенности камина: Living Room / Non Wood Burning / Ventless

    • Особенности прачечной: In Garage

    • Особенности лота: Cul-De-Sac / Flood Insurance Required / FloodZone / In County / Landscaped / Level / Near Marina / Oversized Lot / Street Dead-End / Unincorporated

    • Особенности двора и крыльца: Covered / Deck / Rear Porch / Screened

    • Особенности окна: Double Pane Windows / Storm Window(s) / Window Treatments

    • Направленные лица: West

    • Другие структуры: Boat House / Other / Shed(s)

    • Берег: Да

    • Название водоема: ST JOHNS RIVER

    • Мест в гараже: 2

    • Прикрепленный гараж: Да

    • Гараж: Да

    • Жилая площадь: 2159

    • Источник воды: Well

    • Размеры участка: 121 x 120

    • Название подразделения: ST JOHNS RIVER ESTATES

Похожие дома

4771 CAINS WREN TRAIL placeholder 4771 CAINS WREN TRAIL
1 Дней
На продажу
Дом
$600,000
4 спален 3 ванн 2,833 кв.фт.
4771 CAINS WREN TRAIL
281 MEADOW BEAUTY TERRACE placeholder 281 MEADOW BEAUTY TERRACE
1 Дней
На продажу
Дом
$665,000
4 спален 3 ванн 2,679 кв.фт.
281 MEADOW BEAUTY TERRACE
780 YUKON LANE placeholder 780 YUKON LANE
2 Дней
На продажу
Дом
$650,000
5 спален 4 ванн 2,500 кв.фт.
780 YUKON LANE
100 S WHITE CEDAR ROAD placeholder 100 S WHITE CEDAR ROAD
16 Дней
На продажу
Коммерческий
$890,000
0 room(s) 1,650 кв.фт.
100 S WHITE CEDAR ROAD
709 PERONI AVENUE placeholder 709 PERONI AVENUE
+$2K (2025/12/22)
На продажу
Дом
$618,990
4 спален 4 ванн 3,216 кв.фт.
709 PERONI AVENUE
1691 ASTOR FARMS PLACE placeholder 1691 ASTOR FARMS PLACE
26 Дней
На продажу
Дом
$675,000
4 спален 3 ванн 2,833 кв.фт.
1691 ASTOR FARMS PLACE
1138 FRANKLIN TREE LANE placeholder 1138 FRANKLIN TREE LANE
-$13K (2026/01/01)
На продажу
Дом
$796,000
6 спален 3 ванн 3,120 кв.фт.
1138 FRANKLIN TREE LANE
209 BRYNWOOD LANE placeholder 209 BRYNWOOD LANE
-$20K (2026/01/07)
На продажу
Дом
$710,000
5 спален 3 ванн 3,126 кв.фт.
209 BRYNWOOD LANE

The multiple listing information is provided by the Stellar MLS from a copyrighted compilation of listings. The compilation of listings and each individual listing are ©2026-present Stellar MLS. All Rights Reserved. The information provided is for consumers' personal, noncommercial use and may not be used for any purpose other than to identify prospective properties consumers may be interested in purchasing. All properties are subject to prior sale or withdrawal. All information provided is deemed reliable but is not guaranteed accurate, and should be independently verified. Listing courtesy of: HD REALTY LLC