Недвижимость
Ознакомьтесь с нашими объявлениями
Контакты
Расскажите нам о своих потребностях

2013 NW 11th Ave, Fort Lauderdale FL 33311

Дом Недавно продано
$200,000

BTC: 2.23463687

ETH: 65.89785832

Дата продажи: 2020-10-09
2 Дней
3 спален
2 ванн
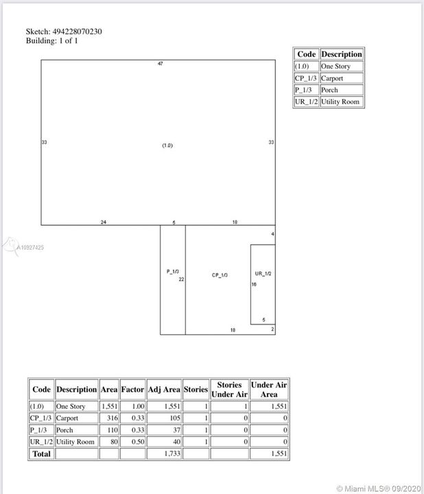
1,551 кв.фт.
Est. Предполагаемый диапазон продаж: $0 - $0
$0

Обзор

PERFECT FOR INVESTORS! Bring your remodeling crew along. Single Family, 3 bedrooms 2 baths ONE STORY. Impact Hurricane Windows. Central AC. Driveway can hold at least 4 cars. Quiet Neighborhood and close to Beaches, Hard Rock, major highways. This place has no association payments. Take advantage of the tax incentives since this place is located in an opportunity zone!

Локация

Факты и особенности

Тип:
Residential
Парковка:
Covered / Driveway
Год постройки:
1958
Лот:
6825 Квадратных Футов
Отопление:
Central
Цена/кв.фут:
$145
Охлаждение:
Central Air
HOA:
Нет данных
Больше фактов и особенностей
  • Напольное покрытие

    • Carpet

    Отопление

    • Central

    Охлаждение

    • Central Air

    Бытовая техника

    • Dishwasher

    • Dryer

    • Electric Range

    • Refrigerator

    • Washer

    Другие особенности интерьера

    • First Floor Entry

    • Family Room

    • Utility/Laundry In Garage

    Спальни и ванные комнаты

    • Спальни: 3

    • Полные ванные комнаты: 2

  • Парковка

    • Covered

    • Driveway

    Лот

    • Лот: 6825 Квадратных Футов

    Другая Информация о Недвижимости

    • Номер Земельного Участка: 494228070230

    • Зонирование: Residential

  • Тип и стиль

    • Тип недвижимости: Residential

    • Подтип недвижимости: Single Family Residence

  • Другая финансовая информация

    • Годовая сумма налога: $892

  • Детали источника

    • MLS ID: A10927425

    Другие факты

    • Строительные материалы: Concrete Block Construction / Stucco

    • Особенности прачечной: In Garage

    • Особенности лота: Less Than 1/4 Acre Lot

    • Направленные лица: West

    • Архитектурный стиль: Detached / One Story

    • Мест в гараже: 2

    • Гараж: Да

    • Жилая площадь: 1551

    • Источник воды: Municipal Water

    • Название подразделения: HILLMONT-MIDDLE RIVER VIS

Похожие дома

815 Middle River Dr # 312, Fort Lauderdale FL 33304 placeholder 815 Middle River Dr # 312, Fort Lauderdale FL 33304
Новое
Недавно продано
Квартира
$225,000
1 спален 1 ванн 450 кв.фт.
815 Middle River Dr # 312, Fort Lauderdale FL 33304
354 NW 29th Ter, Fort Lauderdale FL 33311 placeholder 354 NW 29th Ter, Fort Lauderdale FL 33311
Новое
Недавно продано
Дом
$230,000
3 спален 1 ванн 920 кв.фт.
354 NW 29th Ter, Fort Lauderdale FL 33311
118 Lake Emerald Dr # 210, Oakland Park FL 33309 placeholder 118 Lake Emerald Dr # 210, Oakland Park FL 33309
Новое
Недавно продано
Квартира
$155,000
2 спален 2 ванн 920 кв.фт.
118 Lake Emerald Dr # 210, Oakland Park FL 33309
533 NE 3rd Ave # 536, Fort Lauderdale FL 33301 placeholder 533 NE 3rd Ave # 536, Fort Lauderdale FL 33301
Новое
Недавно продано
Квартира
$285,000
1 спален 1 ванн 667 кв.фт.
533 NE 3rd Ave # 536, Fort Lauderdale FL 33301
611 NE 14th Ave # 403, Fort Lauderdale FL 33304 placeholder 611 NE 14th Ave # 403, Fort Lauderdale FL 33304
Новое
Недавно продано
Квартира
$162,000
1 спален 1 ванн 610 кв.фт.
611 NE 14th Ave # 403, Fort Lauderdale FL 33304
115 Royal Park Dr # 4E, Oakland Park FL 33309 placeholder 115 Royal Park Dr # 4E, Oakland Park FL 33309
Новое
Недавно продано
Квартира
$164,000
1 спален 1 ванн 750 кв.фт.
115 Royal Park Dr # 4E, Oakland Park FL 33309
1509 NE 1st Ave, Fort Lauderdale FL 33304 placeholder 1509 NE 1st Ave, Fort Lauderdale FL 33304
Новое
Недавно продано
Дом
$140,000
2 спален 1 ванн 825 кв.фт.
1509 NE 1st Ave, Fort Lauderdale FL 33304
3244 31st, Oakland Park, FL 33309 placeholder 3244 31st, Oakland Park, FL 33309
Новое
Недавно продано
Дом
$225,000
3 спален 2 ванн 1,559 кв.фт.
3244 31st, Oakland Park, FL 33309

The multiple listing information is provided by the Miami Association of REALTORS® from a copyrighted compilation of listings. The compilation of listings and each individual listing are ©2026-present Miami Association of REALTORS®. All Rights Reserved. The information provided is for consumers' personal, noncommercial use and may not be used for any purpose other than to identify prospective properties consumers may be interested in purchasing. All properties are subject to prior sale or withdrawal. All information provided is deemed reliable but is not guaranteed accurate, and should be independently verified. Listing courtesy of: Signature International RE,LLC