Недвижимость
Ознакомьтесь с нашими объявлениями
Контакты
Расскажите нам о своих потребностях

2727 MORNING LIGHT COURT

Дом На продажу
$949,000

BTC: 14.60000000

ETH: 499.47368421

Новое
Набережная
3 спален
3 ванн
3,118 кв.фт.
Est. Предполагаемый диапазон продаж: $0 - $0
$0

Обзор

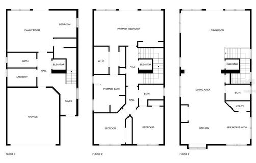
Experience the ultimate Florida waterfront lifestyle in this exceptional saltwater canal home in Beverly Beach, perfectly positioned off scenic A1A between the Atlantic Ocean and the Intracoastal Waterway. Located directly across from the beach with private beach access nearby, this three-story coastal retreat offers rare direct Intracoastal access and effortless boating, with a new boat lift to be installed prior to closing. The home features 3 bedrooms, 3.5 baths, a private first-floor in-law suite, and an elevator serving all levels. The spacious primary suite includes a sitting area, canal-view balcony, and a spa-inspired bath with double walk-in tiled shower, rain shower head, garden tub, dual vanities, and quartz countertops. The top floor showcases light-filled open living and dining areas, a custom built-in entertainment center, and a chef’s kitchen with large island, tile backsplash, and Monogram stainless steel appliances, all opening to a third balcony with water views. Outdoor living is equally impressive with a paver lanai, hot tub, fire pit, and seating overlooking the tranquil canal, plus a private dock providing quick access to the ICW. Additional highlights include a two-car garage with paver driveway, community dock, and close proximity to local dining, shopping, and attractions, with Daytona Beach and St. Augustine just a short drive away—offering the perfect blend of luxury, boating, and laid-back coastal living.

Локация

Факты и особенности

Тип:
Residential
Парковка:
Нет данных
Год постройки:
2016
Лот:
0.08 Акров
Отопление:
Central
Цена/кв.фут:
$304
Охлаждение:
Central Air
HOA:
$365
Больше фактов и особенностей
  • Напольное покрытие

    • Carpet

    • Engineered Hardwood

    Отопление

    • Central

    Охлаждение

    • Central Air

    Бытовая техника

    • Built-In Oven

    • Convection Oven

    • Cooktop

    • Dishwasher

    • Disposal

    • Dryer

    • Electric Water Heater

    • Microwave

    • Range

    • Refrigerator

    • Washer

    • Water Filtration System

    Другие особенности интерьера

    • Built-in Features

    • Ceiling Fan(s)

    • Crown Molding

    • Eating Space In Kitchen

    • Elevator

    • High Ceilings

    • Kitchen/Family Room Combo

    • Open Floorplan

    • PrimaryBedroom Upstairs

    • Solid Surface Counters

    Спальни и ванные комнаты

    • Спальни: 3

    • Ванные: 1

    • Полные ванные комнаты: 3

  • Имущество

    • Этажи: Three Or More

    • Особенности Экстерьера: Balcony

    Лот

    • Лот: 0.08 Акров

    Другая Информация о Недвижимости

    • Номер Земельного Участка: 2611315730000000100

    • Зонирование: PUD

  • Тип и стиль

    • Тип недвижимости: Residential

    • Подтип недвижимости: Single Family Residence

  • Общественное благосостояние

    • Cable Available

    • Electricity Connected

    • Sewer Connected

    • Street Lights

  • Другая финансовая информация

    • HOA: $365

    • Частота HOA: Monthly

    • Годовая сумма налога: $12,027

  • Детали источника

    • MLS ID: FC314986

    Другие факты

    • Строительные материалы: Concrete / HardiPlank Type / Stucco

    • Детали фундамента: Slab

    • Особенности прачечной: Inside / Laundry Room

    • Направленные лица: South

    • Берег: Да

    • Мест в гараже: 2

    • Прикрепленный гараж: Да

    • Гараж: Да

    • Жилая площадь: 3118

    • Источник воды: Public

    • Название подразделения: SUNSET INLET SUB

Похожие дома

23 N VILLAGE PARKWAY placeholder 23 N VILLAGE PARKWAY
20 Дней
На продажу
Дом
$678,900
5 спален 3 ванн 2,876 кв.фт.
23 N VILLAGE PARKWAY
24 N PARK CIRCLE placeholder 24 N PARK CIRCLE
26 Дней
На продажу
Дом
$775,000
4 спален 4 ванн 3,580 кв.фт.
24 N PARK CIRCLE
10 HERON DRIVE placeholder 10 HERON DRIVE
26 Дней
На продажу
Дом
$699,000
3 спален 3 ванн 2,703 кв.фт.
10 HERON DRIVE
36 HERON DRIVE placeholder 36 HERON DRIVE
30 Дней
На продажу
Дом
$718,000
4 спален 2 ванн 2,323 кв.фт.
36 HERON DRIVE
6 PARKVIEW CIRCLE placeholder 6 PARKVIEW CIRCLE
35 Дней
На продажу
Дом
$695,000
4 спален 2 ванн 2,195 кв.фт.
6 PARKVIEW CIRCLE
3777 N OCEAN SHORE BOULEVARD placeholder 3777 N OCEAN SHORE BOULEVARD
38 Дней
На продажу
Участки / Земля
$750,000
0 room(s)
3777 N OCEAN SHORE BOULEVARD
25 MARLIN DRIVE placeholder 25 MARLIN DRIVE
48 Дней
На продажу
Дом
$679,900
3 спален 3 ванн 2,620 кв.фт.
25 MARLIN DRIVE
15 CHINIER STREET placeholder 15 CHINIER STREET
49 Дней
На продажу
Дом
$879,990
3 спален 3 ванн 2,517 кв.фт.
15 CHINIER STREET

The multiple listing information is provided by the Stellar MLS from a copyrighted compilation of listings. The compilation of listings and each individual listing are ©2026-present Stellar MLS. All Rights Reserved. The information provided is for consumers' personal, noncommercial use and may not be used for any purpose other than to identify prospective properties consumers may be interested in purchasing. All properties are subject to prior sale or withdrawal. All information provided is deemed reliable but is not guaranteed accurate, and should be independently verified. Listing courtesy of: COMPASS FLORIDA