Недвижимость
Ознакомьтесь с нашими объявлениями
Контакты
Расскажите нам о своих потребностях

3041 S US HIGHWAY 41

Дом На продажу
$449,000

BTC: 6.66498731

ETH: 230.25641026

2 Дней
4 спален
2 ванн
2,077 кв.фт.
Est. Предполагаемый диапазон продаж: $0 - $0
$0

Обзор

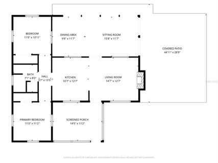
Versatile 12-acre agricultural property in Marion County, approximately 20 minutes from the World Equestrian Center, located within a desirable equestrian corridor. Set back from the road for added privacy, the property features high and dry, cleared interior land with wooded areas around the perimeter fully fenced, and favorable soil conditions suitable for pasture, livestock, horses, or expanded agricultural use. Improvements include an older 2-bedroom, 1-bath concrete block residence with screened front porch and rear Florida room overlooking the back acreage. Additional structures include a separate 1-bedroom, 1-bath guest cottage, two auxiliary buildings suitable for additional sleeping quarters or storage and a small workshop. Agricultural zoning with no deed restrictions allows for a wide range of uses, including farm operations, equestrian pursuits, or rental income-producing opportunities. Conveniently located near shopping, dining, the Rainbow River, and area amenities. This property is ready for new owners to customize and enhance as they see fit or use it As Is. All buildings have metal roofs 2013. New Electrical panel installed 2025

Локация

Факты и особенности

Тип:
Residential
Парковка:
Нет данных
Год постройки:
1957
Лот:
12.16 Акров
Отопление:
Space Heater
Цена/кв.фут:
$216
Охлаждение:
Mini-Split Unit(s) / Wall/Window Unit(s)
HOA:
Нет данных
Больше фактов и особенностей
  • Напольное покрытие

    • Carpet

    • Ceramic Tile

    • Luxury Vinyl

    Отопление

    • Space Heater

    Охлаждение

    • Mini-Split Unit(s)

    • Wall/Window Unit(s)

    Бытовая техника

    • Dryer

    • Range

    • Refrigerator

    • Washer

    Другие особенности интерьера

    • Ceiling Fan(s)

    Спальни и ванные комнаты

    • Спальни: 4

    • Полные ванные комнаты: 2

  • Имущество

    • Этажи: One

    • Особенности Экстерьера: Other

    Лот

    • Лот: 12.16 Акров

    Другая Информация о Недвижимости

    • Номер Земельного Участка: 1734400000

    • Зонирование: A1

  • Тип и стиль

    • Тип недвижимости: Residential

    • Подтип недвижимости: Single Family Residence

  • Общественное благосостояние

    • Electricity Connected

  • Другая финансовая информация

    • Годовая сумма налога: $2,389

  • Детали источника

    • MLS ID: OM715996

    Другие факты

    • Строительные материалы: Block / Wood Frame / Wood Siding

    • Детали фундамента: Slab

    • Особенности камина: Wood Burning

    • Особенности прачечной: Other

    • Особенности лота: Level / Zoned for Horses

    • Особенности двора и крыльца: Covered / Screened

    • Направленные лица: West

    • Другие структуры: Guest House / Storage

    • Камин: Да

    • Жилая площадь: 2077

    • Источник воды: Well

    • Название подразделения: FLORIDA TUNG OIL GRVS INC DEVE

Похожие дома

5190 SW 178TH TERRACE placeholder 5190 SW 178TH TERRACE
8 Дней
На продажу
$339,000
5 спален 3 ванн 2,132 кв.фт.
5190 SW 178TH TERRACE
4172 SW BEGONIA COURT placeholder 4172 SW BEGONIA COURT
16 Дней
На продажу
Дом
$319,900
3 спален 2 ванн 1,600 кв.фт.
4172 SW BEGONIA COURT
20201 SW CARDINAL AVENUE placeholder 20201 SW CARDINAL AVENUE
19 Дней
На продажу
Дом
$425,000
3 спален 2 ванн 2,002 кв.фт.
20201 SW CARDINAL AVENUE
6606 SW 180TH CIRCLE placeholder 6606 SW 180TH CIRCLE
-$10K (2026/01/06)
На продажу
Дом
$389,990
5 спален 3 ванн 2,587 кв.фт.
6606 SW 180TH CIRCLE
5475 SW 194TH AVENUE placeholder 5475 SW 194TH AVENUE
26 Дней
На продажу
Дом
$449,000
4 спален 3 ванн 2,836 кв.фт.
5475 SW 194TH AVENUE
6580 SW 180TH CIRCLE placeholder 6580 SW 180TH CIRCLE
-$250 (2025/12/29)
На продажу
Дом
$324,740
3 спален 2 ванн 1,843 кв.фт.
6580 SW 180TH CIRCLE
6770 SW 179TH AVENUE ROAD placeholder 6770 SW 179TH AVENUE ROAD
50 Дней
На продажу
Дом
$319,600
3 спален 2 ванн 1,540 кв.фт.
6770 SW 179TH AVENUE ROAD
4664 SW 181ST COURT placeholder 4664 SW 181ST COURT
-$25K (2025/11/21)
На продажу
$364,900
5 спален 3 ванн 2,280 кв.фт.
4664 SW 181ST COURT

The multiple listing information is provided by the Stellar MLS from a copyrighted compilation of listings. The compilation of listings and each individual listing are ©2026-present Stellar MLS. All Rights Reserved. The information provided is for consumers' personal, noncommercial use and may not be used for any purpose other than to identify prospective properties consumers may be interested in purchasing. All properties are subject to prior sale or withdrawal. All information provided is deemed reliable but is not guaranteed accurate, and should be independently verified. Listing courtesy of: COLDWELL BANKER RIVERLAND RLTY