Недвижимость
Ознакомьтесь с нашими объявлениями
Контакты
Расскажите нам о своих потребностях

4402 SE 20TH AVENUE

Дом На продажу
$2,350,000

BTC: 27.21482339

ETH: 803.14422420

-$519K (2025/12/17)
189 Дней
Набережная
6 спален
5 ванн
5,006 кв.фт.
Est. Предполагаемый диапазон продаж: $0 - $0
$0

Обзор

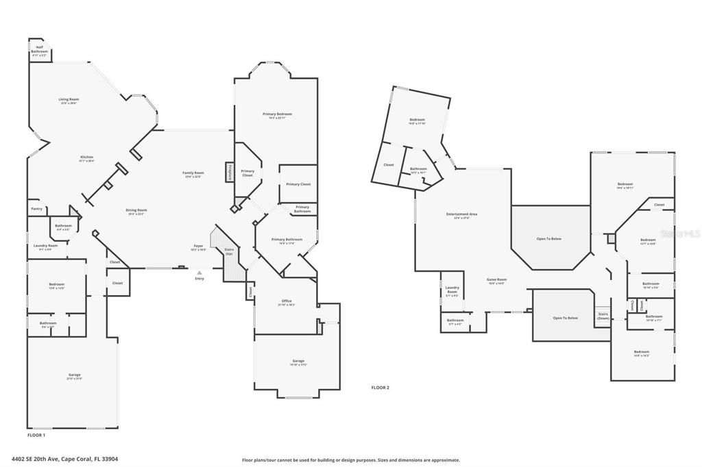
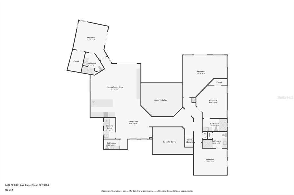
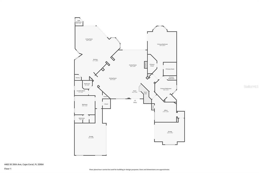
A Rare Waterfront Masterpiece: Ultimate Luxury, Prime Location, Limitless Potential! Welcome to your dream escape in Southwest Florida—where timeless elegance meets unmatched boating access. Whether you're envisioning a private estate, a luxury vacation rental, or a corporate retreat, this impeccably crafted home offers the perfect balance of comfort, sophistication, and opportunity. Nestled on an oversized corner lot, this stunning Koogler-built residence is just one turn from the Caloosahatchee River—no bridges, no locks, and pure open-water convenience. Designed for those who crave the best in waterfront living, this property is both a serene sanctuary and an entertainer’s dream. From the moment you arrive, grand double glass doors with wrought iron detail open to a stately foyer, setting the tone for the home’s refined style. The formal living room dazzles with a dramatic chandelier, stone-accented electric fireplace, and seamless indoor-outdoor flow through expansive sliders to the lanai. Nearby, the formal dining room is an ideal space for elevated entertaining, complete with a wet bar, U-Line appliances, and a Marvel beer tap. The primary suite is a private retreat, showcasing double-door entry, tray ceiling, custom his-and-hers closets, lanai access, and a spa-inspired bath. Indulge in a jetted soaking tub, granite dual vanities, a spacious walk-in shower with dual shower heads, and precision temperature controls. The heart of the home—the chef’s kitchen—is outfitted with premium KitchenAid appliances, a Viking 6-burner gas stove with griddle, dual dishwashers, granite countertops, and a walk-in pantry. A cozy breakfast nook opens to the inviting family room with built-in entertainment and lanai access, creating effortless flow for everyday living or large gatherings. Step outside to a resort-style lanai with a tongue-and-groove ceiling, half bath, built-in GE Monogram grill and refrigerator, and a cozy gas fireplace. The electric-heated saltwater pool and spa feature a sun deck and gated access to your private dock—crafted from composite decking and equipped with water, electricity, and dual boat lifts (10,000 lb and 20,000 lb). 200 feet wide canal, 66 feet dock with 21 feet width. Upstairs, a generous entertainment loft offers a billiards area, full bar with granite counters, and balcony access. Guests will feel pampered in spacious en-suite bedrooms with custom walk-in closets and private balcony access. A well-appointed laundry room with GE Profile appliances and an additional half bath complete the second floor. This versatile luxury residence is as functional as it is exquisite—ideal for homeowners, investors, or business professionals seeking an elite retreat in paradise. Don’t miss this extraordinary opportunity. Schedule your private tour today and experience the pinnacle of waterfront luxury living.

Локация

Факты и особенности

Тип:
Residential
Парковка:
Нет данных
Год постройки:
2006
Лот:
0.31 Акров
Отопление:
Electric
Цена/кв.фут:
$469
Охлаждение:
Central Air
HOA:
Нет данных
Больше фактов и особенностей
  • Напольное покрытие

    • Carpet

    • Tile

    Отопление

    • Electric

    Охлаждение

    • Central Air

    Бытовая техника

    • Bar Fridge

    • Built-In Oven

    • Dishwasher

    • Disposal

    • Dryer

    • Electric Water Heater

    • Microwave

    • Range

    • Range Hood

    • Refrigerator

    • Washer

    • Wine Refrigerator

    Другие особенности интерьера

    • Cathedral Ceiling(s)

    • Ceiling Fan(s)

    • Central Vacuum

    • Crown Molding

    • Open Floorplan

    • Primary Bedroom Main Floor

    • Split Bedroom

    • Walk-In Closet(s)

    • Wet Bar

    • Window Treatments

    Спальни и ванные комнаты

    • Спальни: 6

    • Ванные: 3

    • Полные ванные комнаты: 5

  • Имущество

    • Этажи: Two

    • Частный Бассейн: Да

    • Особенности Экстерьера: Balcony / Irrigation System / Lighting / Outdoor Grill / Outdoor Kitchen / Sliding Doors

    Лот

    • Лот: 0.31 Акров

    Другая Информация о Недвижимости

    • Номер Земельного Участка: 084524C400369.0410

    • Зонирование: R1-W

  • Тип и стиль

    • Тип недвижимости: Residential

    • Подтип недвижимости: Single Family Residence

  • Общественное благосостояние

    • Cable Available

    • Electricity Connected

    • Phone Available

    • Propane

    • Sewer Connected

    • Street Lights

    • Water Connected

  • Другая финансовая информация

    • Годовая сумма налога: $36,577

  • Детали источника

    • MLS ID: C7511336

    Другие факты

    • Строительные материалы: Stucco

    • Детали фундамента: Slab

    • Особенности камина: Family Room

    • Особенности прачечной: Inside

    • Особенности лота: Corner Lot / Landscaped / Oversized Lot

    • Особенности бассейна: Heated / In Ground / Salt Water

    • Направленные лица: West

    • Другие структуры: Outdoor Kitchen

    • Берег: Да

    • Камин: Да

    • Мест в гараже: 3

    • Прикрепленный гараж: Да

    • Гараж: Да

    • Жилая площадь: 5006

    • Источник воды: Public

    • Размеры участка: 92 x 150

    • Название подразделения: CAPE CORAL

Похожие дома

264 Bayshore Dr, Cape Coral FL 33904 placeholder 264 Bayshore Dr, Cape Coral FL 33904
7 Дней
На продажу
Дом
$1,750,000
3 спален 2 ванн 2,276 кв.фт.
264 Bayshore Dr, Cape Coral FL 33904
264 BAYSHORE DRIVE placeholder 264 BAYSHORE DRIVE
8 Дней
На продажу
Дом
$1,750,000
3 спален 2 ванн 2,276 кв.фт.
264 BAYSHORE DRIVE
1732 SE 40TH TERRACE placeholder 1732 SE 40TH TERRACE
-$399K (2025/07/31)
На продажу
Дом
$2,450,000
4 спален 4 ванн 3,651 кв.фт.
1732 SE 40TH TERRACE
1759 SE 46th Street, Cape Coral FL 33904 placeholder 1759 SE 46th Street, Cape Coral FL 33904
-$250K (2025/01/06)
На продажу
Дом
$1,725,000
6 спален 3 ванн
1759 SE 46th Street, Cape Coral FL 33904

The multiple listing information is provided by the Stellar MLS from a copyrighted compilation of listings. The compilation of listings and each individual listing are ©2025-present Stellar MLS. All Rights Reserved. The information provided is for consumers' personal, noncommercial use and may not be used for any purpose other than to identify prospective properties consumers may be interested in purchasing. All properties are subject to prior sale or withdrawal. All information provided is deemed reliable but is not guaranteed accurate, and should be independently verified. Listing courtesy of: REAL MARK REALTY