Недвижимость
Ознакомьтесь с нашими объявлениями
Контакты
Расскажите нам о своих потребностях

9080 MORGANA COURT

Дом Недавно продано
$2,340,000

BTC: 34.73512316

ETH: 1,218.75000000

Дата продажи: 2025-12-11
6 Дней
Набережная
5 спален
5 ванн
5,390 кв.фт.
Est. Предполагаемый диапазон продаж: $0 - $0
$0

Обзор

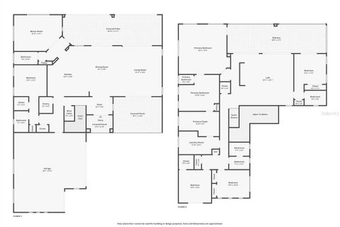
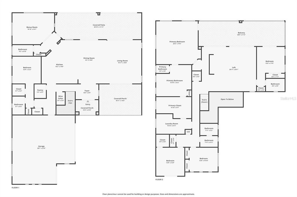
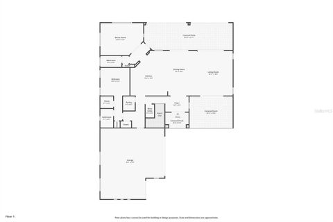
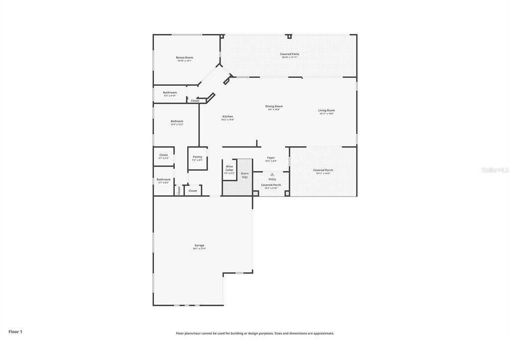
One or more photo(s) has been virtually staged. **WINTER GARDEN WONDER** Lakefront luxury with that true “WOW” factor—this furnished former model by Jones Homes USA sits on Hickory Nut Lake, showcases every builder upgrade imaginable and had a recent refresh for a turnkey, move-in ready experience. Enjoy panoramic water views from both levels, an oversized .36-acre lot with lush landscaping, resort-style pool & spa, and a private dock with power boat lift and seating area. Seamless indoor/outdoor living features retractable screens, a covered outdoor kitchen, and expansive sliders that open to all 4 patio spaces. Inside, discover custom millwork, glass-enclosed wine room, gourmet kitchen with oversized island, a flexible bonus room, spacious loft with wet bar, luxurious primary suite with balcony access, and SO MUCH MORE! Premier location near top-rated schools, Disney, and Winter Garden Village. Home is being sold as-is with all existing furniture and décor included. Schedule your showing today!

Локация

Факты и особенности

Тип:
Residential
Парковка:
Нет данных
Год постройки:
2020
Лот:
0.36 Акров
Отопление:
Central / Electric / Exhaust Fan / Natural Gas / Zoned
Цена/кв.фут:
$441
Охлаждение:
Central Air / Zoned
HOA:
$310
Больше фактов и особенностей
  • Напольное покрытие

    • Carpet

    • Engineered Hardwood

    • Tile

    • Travertine

    Отопление

    • Central

    • Electric

    • Exhaust Fan

    • Natural Gas

    • Zoned

    Охлаждение

    • Central Air

    • Zoned

    Бытовая техника

    • Bar Fridge

    • Built-In Oven

    • Cooktop

    • Dishwasher

    • Disposal

    • Dryer

    • Exhaust Fan

    • Gas Water Heater

    • Microwave

    • Range Hood

    • Refrigerator

    • Washer

    • Wine Refrigerator

    Другие особенности интерьера

    • Built-in Features

    • Crown Molding

    • Eating Space In Kitchen

    • High Ceilings

    • Kitchen/Family Room Combo

    • Living Room/Dining Room Combo

    • Open Floorplan

    • PrimaryBedroom Upstairs

    • Solid Wood Cabinets

    • Stone Counters

    • Thermostat

    • Tray Ceiling(s)

    • Walk-In Closet(s)

    • Wet Bar

    • Window Treatments

    Спальни и ванные комнаты

    • Спальни: 5

    • Полные ванные комнаты: 5

  • Имущество

    • Этажи: Two

    • Частный Бассейн: Да

    • Особенности Экстерьера: Balcony / Irrigation System / Lighting / Other / Outdoor Grill / Outdoor Kitchen / Rain Gutters / Sidewalk / Sliding Doors

    Лот

    • Лот: 0.36 Акров

    Другая Информация о Недвижимости

    • Номер Земельного Участка: 082427031000120

    • Зонирование: P-D

  • Тип и стиль

    • Тип недвижимости: Residential

    • Подтип недвижимости: Single Family Residence

  • Общественное благосостояние

    • BB/HS Internet Available

    • Electricity Connected

    • Natural Gas Connected

    • Public

    • Sewer Connected

    • Sprinkler Recycled

    • Street Lights

    • Underground Utilities

    • Water Connected

  • Другая финансовая информация

    • HOA: $310

    • Частота HOA: Monthly

    • Годовая сумма налога: $21,923

  • Детали источника

    • MLS ID: O6359987

    Другие факты

    • Строительные материалы: Block / Stucco

    • Детали фундамента: Slab

    • Особенности прачечной: Laundry Room / Upper Level

    • Особенности бассейна: Gunite / Heated / In Ground / Lighting / Other / Salt Water / Tile

    • Направленные лица: East

    • Берег: Да

    • Мест в гараже: 3

    • Прикрепленный гараж: Да

    • Гараж: Да

    • Жилая площадь: 5390

    • Источник воды: Public

    • Название подразделения: AVALON COVE

Похожие дома

10129 ATWATER BAY DRIVE placeholder 10129 ATWATER BAY DRIVE
Новое
Недавно продано
Дом
$1,740,000
4 спален 4 ванн 4,328 кв.фт.
10129 ATWATER BAY DRIVE
14628 AVENUE OF THE RUSHES placeholder 14628 AVENUE OF THE RUSHES
Новое
Недавно продано
Дом
$2,299,000
5 спален 5 ванн 5,675 кв.фт.
14628 AVENUE OF THE RUSHES
9056 MORGANA COURT placeholder 9056 MORGANA COURT
Новое
Недавно продано
$1,672,690
5 спален 5 ванн 4,636 кв.фт.
9056 MORGANA COURT
15669 PANTHER LAKE DRIVE placeholder 15669 PANTHER LAKE DRIVE
Новое
Недавно продано
Дом
$2,045,554
6 спален 5 ванн 5,544 кв.фт.
15669 PANTHER LAKE DRIVE
14645 ISLEVIEW DRIVE placeholder 14645 ISLEVIEW DRIVE
Новое
Недавно продано
Дом
$2,600,000
4 спален 5 ванн 6,780 кв.фт.
14645 ISLEVIEW DRIVE
14544 AVENUE OF THE RUSHES placeholder 14544 AVENUE OF THE RUSHES
Новое
Недавно продано
Дом
$2,700,000
5 спален 5 ванн
14544 AVENUE OF THE RUSHES
 placeholder
Новое
Недавно продано
Дом
$2,299,990
5 спален 4 ванн 4,679 кв.фт.
8518 BAYVIEW CROSSING DRIVE placeholder 8518 BAYVIEW CROSSING DRIVE
1 Дней
Недавно продано
Дом
$2,100,000
5 спален 6 ванн 4,629 кв.фт.
8518 BAYVIEW CROSSING DRIVE

The multiple listing information is provided by the Stellar MLS from a copyrighted compilation of listings. The compilation of listings and each individual listing are ©2026-present Stellar MLS. All Rights Reserved. The information provided is for consumers' personal, noncommercial use and may not be used for any purpose other than to identify prospective properties consumers may be interested in purchasing. All properties are subject to prior sale or withdrawal. All information provided is deemed reliable but is not guaranteed accurate, and should be independently verified. Listing courtesy of: ALL REAL ESTATE & INVESTMENTS