Недвижимость
Ознакомьтесь с нашими объявлениями
Контакты
Расскажите нам о своих потребностях

9159 AURELIA AVENUE

Таунхаус Под контрактом
$290,490

BTC: 4.27191176

ETH: 2,904.90000000

Новое
Набережная
3 спален
2 ванн
1,691 кв.фт.
Est. Предполагаемый диапазон продаж: $0 - $0
$0

Обзор

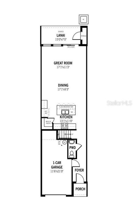
Under Construction. Welcome to the Lakewood, a thoughtfully designed 1,691 square foot townhome that offers the perfect blend of comfort, style, and functionality. Featuring three bedrooms, two full bathrooms, a convenient powder room, and a one-car garage, this home is ideal for modern living. Step inside to an inviting open-concept main floor that seamlessly integrates the kitchen, dining, and great room areas—perfect for entertaining or everyday life. The L-shaped kitchen is a chef’s delight, boasting quartz countertops, a walk-in pantry, and a generous island with a flush breakfast bar that comfortably seats four. Just beyond the great room, glass sliders lead to a covered lanai, creating a bright and airy extension of the living space. The lanai also includes a handy storage closet, ideal for stashing seasonal items or outdoor gear. The powder room is conveniently located just off the foyer for guests. Upstairs, the landing area provides access to the laundry space and a linen closet for added practicality. The two secondary bedrooms are positioned on one side of the home and share a spacious full bathroom. One of these bedrooms even includes a cozy seating area, making it perfect for guests or a private retreat. The owner’s suite offers a luxurious escape with a dual-sink raised vanity, glass-enclosed shower, private water closet, and a large walk-in closet that provides ample storage. Designed with energy efficiency in mind, the Lakewood includes a hybrid hot water heater and is rated with a HERS (Home Energy Rating System) score, ensuring lower utility costs and environmental impact. Thoughtful exterior touches such as paver driveways, walkways, and lanais add curb appeal and long-lasting durability. The Lakewood combines smart design and elegant finishes to offer a lifestyle of comfort and convenience—welcome home.

Локация

Факты и особенности

Тип:
Residential
Парковка:
Garage Door Opener
Год постройки:
2025
Лот:
0.04 Акров
Отопление:
Electric / Heat Pump
Цена/кв.фут:
$172
Охлаждение:
Central Air
HOA:
$144
Больше фактов и особенностей
  • Напольное покрытие

    • Carpet

    • Tile

    Отопление

    • Electric

    • Heat Pump

    Охлаждение

    • Central Air

    Бытовая техника

    • Dishwasher

    • Dryer

    • Electric Water Heater

    • Microwave

    • Range

    • Refrigerator

    • Washer

    Другие особенности интерьера

    • Eating Space In Kitchen

    • Open Floorplan

    • PrimaryBedroom Upstairs

    • Solid Surface Counters

    • Thermostat

    • Walk-In Closet(s)

    Спальни и ванные комнаты

    • Спальни: 3

    • Ванные: 1

    • Полные ванные комнаты: 2

  • Парковка

    • Garage Door Opener

    Имущество

    • Этажи: Two

    • Особенности Экстерьера: Irrigation System / Sidewalk / Sliding Doors

    Лот

    • Лот: 0.04 Акров

    Другая Информация о Недвижимости

    • Номер Земельного Участка: 414060809

    • Зонирование: PD-MU

  • Тип и стиль

    • Тип недвижимости: Residential

    • Подтип недвижимости: Townhouse

  • Общественное благосостояние

    • Cable Available

    • Electricity Connected

    • Public

    • Street Lights

    • Underground Utilities

    • Water Connected

    Озеленение

    • Appliances

    • Insulation

    • Lighting

    • Thermostat

    • Water Heater

  • Другая финансовая информация

    • HOA: $144

    • Частота HOA: Monthly

  • Детали источника

    • MLS ID: TB8476307

    Другие факты

    • Строительные материалы: Block / Stucco / Wood Frame

    • Детали фундамента: Slab

    • Особенности прачечной: Inside / Upper Level / Washer Hookup

    • Особенности лота: Sidewalk

    • Особенности двора и крыльца: Rear Porch / Screened

    • Особенности окна: Insulated Windows / Low-Emissivity Windows

    • Направленные лица: Northeast

    • Архитектурный стиль: Craftsman

    • Берег: Да

    • Мест в гараже: 1

    • Прикрепленный гараж: Да

    • Гараж: Да

    • Жилая площадь: 1691

    • Источник воды: Public

    • Название подразделения: CROSSWIND RANCH

Похожие дома

9912 WIMICO TERRACE placeholder 9912 WIMICO TERRACE
Новое
Под контрактом
Дом
$358,990
4 спален 2 ванн 1,665 кв.фт.
9912 WIMICO TERRACE
11953 MOUNTAIN ISLAND TRAIL placeholder 11953 MOUNTAIN ISLAND TRAIL
Новое
Под контрактом
Дом
$365,000
4 спален 2 ванн 1,828 кв.фт.
11953 MOUNTAIN ISLAND TRAIL
9923 WIMICO TERRACE placeholder 9923 WIMICO TERRACE
Новое
Под контрактом
Дом
$331,310
3 спален 2 ванн 1,504 кв.фт.
9923 WIMICO TERRACE
9928 WIMICO TERRACE placeholder 9928 WIMICO TERRACE
Новое
Под контрактом
Дом
$319,000
3 спален 2 ванн 1,504 кв.фт.
9928 WIMICO TERRACE
8819 GINKO RUN placeholder 8819 GINKO RUN
Новое
Под контрактом
Таунхаус
$284,529
3 спален 2 ванн 1,691 кв.фт.
8819 GINKO RUN
9163 AURELIA AVENUE placeholder 9163 AURELIA AVENUE
Новое
Под контрактом
Таунхаус
$325,490
3 спален 2 ванн 1,828 кв.фт.
9163 AURELIA AVENUE
11905 MOUNTAIN ISLAND TRAIL placeholder 11905 MOUNTAIN ISLAND TRAIL
Новое
Под контрактом
Дом
$368,000
3 спален 2 ванн 1,672 кв.фт.
11905 MOUNTAIN ISLAND TRAIL
12015 MOUNTAIN ISLAND TRAIL placeholder 12015 MOUNTAIN ISLAND TRAIL
3 Дней
Под контрактом
Дом
$363,110
3 спален 2 ванн 1,672 кв.фт.
12015 MOUNTAIN ISLAND TRAIL

The multiple listing information is provided by the Stellar MLS from a copyrighted compilation of listings. The compilation of listings and each individual listing are ©2026-present Stellar MLS. All Rights Reserved. The information provided is for consumers' personal, noncommercial use and may not be used for any purpose other than to identify prospective properties consumers may be interested in purchasing. All properties are subject to prior sale or withdrawal. All information provided is deemed reliable but is not guaranteed accurate, and should be independently verified. Listing courtesy of: MATTAMY REAL ESTATE SERVICES