Недвижимость
Ознакомьтесь с нашими объявлениями
Контакты
Расскажите нам о своих потребностях

TBD SE US HIGHWAY 441

На продажу
$88,770

BTC: 1.02210708

ETH: 44.38500000

304 Дней
0 room(s)
Est. Предполагаемый диапазон продаж: $0 - $0
$0

Обзор

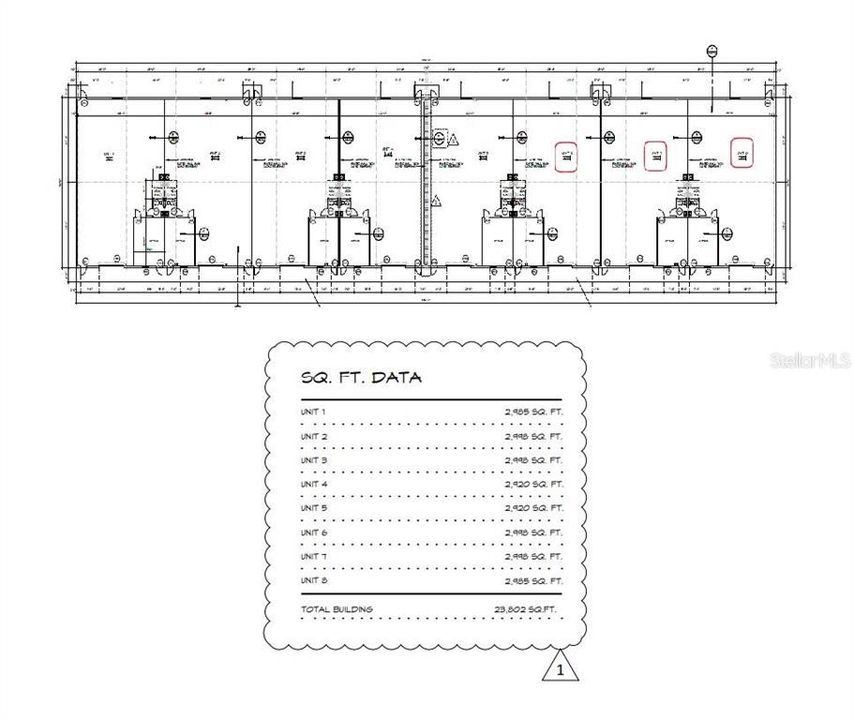
Pre-Construction. To be built. Now pre-leasing, this new construction project along the South US Highway 441 corridor is slated for completion in December 2025. The development features B-5 zoning and free-span warehouses with flexible unit configurations ranging from 2,920 SF to 11,901 SF. Options include up to eight units, each +/- 3,000 SF; up to four units, each 5,918 SF; up to two units, each approximately 11,901 SF; or a combination of varying sizes. Each unit will include 400 SF of office space, ADA-compliant restrooms, 14-foot ground-level roll-up doors, 200 Amp service panels, and mini-split HVAC units for the office spaces. Secure your space now in this highly anticipated development!

Локация

Факты и особенности

Тип:
Commercial Lease
Парковка:
Нет данных
Год постройки:
1977
Лот:
1.06 Акров
Отопление:
Нет данных
Цена/кв.фут:
Нет данных
Охлаждение:
A/C - Office Only / Mini-Split Unit(s)
HOA:
Нет данных
Больше фактов и особенностей
  • Охлаждение

    • A/C - Office Only

    • Mini-Split Unit(s)

  • Лот

    • Лот: 1.06 Акров

    Другая Информация о Недвижимости

    • Номер Земельного Участка: 3924021007

    • Зонирование: B5

  • Тип и стиль

    • Тип недвижимости: Commercial Lease

    • Подтип недвижимости: Warehouse

  • Другая финансовая информация

    • Годовая сумма налога: $3,461

  • Детали источника

    • MLS ID: OM695562

    Другие факты

    • Строительные материалы: Other

    • Детали фундамента: Slab

    • Название подразделения: LAKE WEIR GARDENS

Похожие дома

5925 SE ABSHIER BOULEVARD placeholder 5925 SE ABSHIER BOULEVARD
3 Дней
На продажу
$64,000
0 room(s) 4,000 кв.фт.
5925 SE ABSHIER BOULEVARD
9251 SE 140TH PLACE placeholder 9251 SE 140TH PLACE
52 Дней
На продажу
Участки / Земля
$65,000
0 room(s)
9251 SE 140TH PLACE
5850 SE ABSHIER BOULEVARD placeholder 5850 SE ABSHIER BOULEVARD
-$14K (2025/09/27)
На продажу
$63,600
0 room(s)
5850 SE ABSHIER BOULEVARD
TBD SW 41 CIRCLE UNIT 6 placeholder TBD SW 41 CIRCLE UNIT 6
240 Дней
На продажу
Участки / Земля
$65,000
0 room(s)
TBD SW 41 CIRCLE UNIT 6
0 SW 41 CIRCLE UNIT 6 placeholder 0 SW 41 CIRCLE UNIT 6
240 Дней
На продажу
Участки / Земля
$65,000
0 room(s)
0 SW 41 CIRCLE UNIT 6
SE 103RD PLACE placeholder SE 103RD PLACE
323 Дней
На продажу
Участки / Земля
$80,000
0 room(s)
SE 103RD PLACE
SE 92ND AVENUE placeholder SE 92ND AVENUE
+$5K (2024/07/16)
На продажу
Участки / Земля
$80,000
0 room(s)
SE 92ND AVENUE

The multiple listing information is provided by the Stellar MLS from a copyrighted compilation of listings. The compilation of listings and each individual listing are ©2025-present Stellar MLS. All Rights Reserved. The information provided is for consumers' personal, noncommercial use and may not be used for any purpose other than to identify prospective properties consumers may be interested in purchasing. All properties are subject to prior sale or withdrawal. All information provided is deemed reliable but is not guaranteed accurate, and should be independently verified. Listing courtesy of: WIECHENS REALTY INC