特性
探索我们的清单
聯繫
告诉我们您的需求

2560 BAYBREEZE STREET

地段/土地 待售
$419,000

BTC: 13.96666667

ETH: 209.50000000

230 天
滨水区
0 room(s)
Est. 预计销售范围: $0 - $0
$0

总览

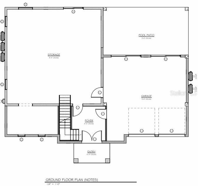
Remodel permit approved, all fees PAID. All a new owner needs to complete is an owner/builder affidavit with the building department or have your contractor provide their contractor information to the County. Pool permit in hand with Design Concepts! Took over a year to get the remodel permit. House is ready for complete transformation. Existing home requires remodel per building plan. The planned addition is to be built ON TOP of the existing concrete block walls. No expensive lifting of the house required. House is totally gutted and concrete cut and hammered out for new thickened footings. All that is left to do is remove the trusses and roof. Two existing boat lifts, one is 10,000 lb the other is 20,000 lb. Beautiful open floor plan with all vaulted ceilings. Modern design with old Florida appeal. 2,075 sq ft of finished space, two car garage and roughly 1,215 sq ft of flex space on lower level. Seller got tired of waiting for the permit and bought another one in the neighborhood. Pool design does not encroach under the house as shown in the renderings. A short 10 minute boat ride to open water via Philips canal. Situated in the heart of a golf cart-friendly community, this home offers easy access to nearby amenities, including a general store, local fish market, Galt Preserve, and St. Jude Nature Trail—all within golf cart distance in St. James City. The island is also home to several preserves, including the Calusa Heritage Trail and the Pine Island Sound Aquatic Preserve, perfect for nature enthusiasts. St. James City is alive with community spirit, featuring the Civic Association Park, which hosts a variety of events, including free afternoon concerts. There is no shortage of things to keep you occupied, with 18 miles of biking/walking paths, tennis and pickleball courts, heated community pool, and playground. Plus, you’ll find weekly live entertainment at several spots across the island, and fun tiki restaurants, creating an inviting and vibrant atmosphere. Short boating adventures out to Sanibel, Captiva, or Fort Myers Beach. Come experience the laid back island lifestyle you’ve been looking for!

位置

详情与特色

类型:
Land
停车:
没有数据
建造年份:
没有数据
地段:
0.23 英亩
暖气:
没有数据
价格/平方英尺:
没有数据
冷气:
没有数据
HOA:
没有数据
更多事实和特点
  • 地段

    • 地段: 0.23 英亩

    其他财产信息

    • 包裹编号: 024622080000C.0180

    • 分区: RS-1

  • 类型与风格

    • 财产种类: Land

  • 公益

    • BB/HS Internet Available

    • Cable Available

    • Electricity Available

    • Public

    • Water Connected

  • 其他财政信息

    • 年税额: $3,154

  • 来源细节

    • MLS ID: C7508625

    其他详情

    • 地段特征: Buildable / In County / Level / Unincorporated

    • 方向面: West

    • 滨水区: 是

    • 水体名称: PHILIPS CANAL

    • 水源: Public

    • 地块大小: 81 x 125

    • 细分名称: ST JAMES CITY

类似房屋

5209 WESTERN DRIVE placeholder 5209 WESTERN DRIVE
24 天
待售
$499,000
3 贝兹 3 浴室 1,512 平方英尺
5209 WESTERN DRIVE
2368 DATE STREET placeholder 2368 DATE STREET
62 天
待售
房屋
$515,000
2 贝兹 2 浴室 1,191 平方英尺
2368 DATE STREET
3435 SEA HOLLY LANE placeholder 3435 SEA HOLLY LANE
-$100K (2025/12/03)
待售
地段/土地
$499,999
0 room(s)
3435 SEA HOLLY LANE
2880 8TH AVENUE placeholder 2880 8TH AVENUE
-$36K (2025/08/20)
待售
房屋
$399,000
2 贝兹 1 浴室 1,000 平方英尺
2880 8TH AVENUE
2560 BAYBREEZE STREET placeholder 2560 BAYBREEZE STREET
230 天
待售
房屋
$419,000
2 贝兹 2 浴室 2,075 平方英尺
2560 BAYBREEZE STREET

The multiple listing information is provided by the Stellar MLS from a copyrighted compilation of listings. The compilation of listings and each individual listing are ©2025-present Stellar MLS. All Rights Reserved. The information provided is for consumers' personal, noncommercial use and may not be used for any purpose other than to identify prospective properties consumers may be interested in purchasing. All properties are subject to prior sale or withdrawal. All information provided is deemed reliable but is not guaranteed accurate, and should be independently verified. Listing courtesy of: CALENDA REAL ESTATE GROUP,INC.