特性
探索我们的清单
聯繫
告诉我们您的需求

6081 SHELBY LANE

地段/土地 待售
$750,000

BTC: 25.00000000

ETH: 375.00000000

-$100K (2025/08/19)
178 天
0 room(s)
Est. 预计销售范围: $0 - $0
$0

总览

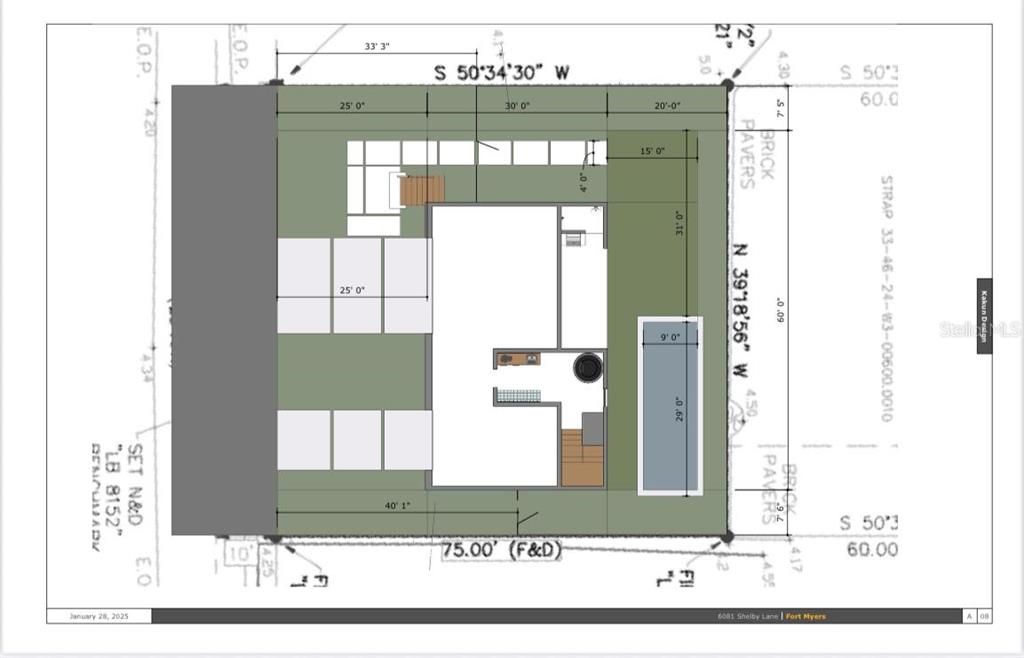
Just Two Homes from the Waves – Build-Ready Luxury Estate Opportunity. 6081 Shelby Lane, Fort Myers Beach. Welcome to 6081 Shelby Lane, a premier coastal lot offering the perfect blend of luxury design, prime location, and turnkey readiness—just steps from the Gulf of Mexico, with no streets to cross. Gulf Side. Luxury Poolside Living. Planned with leisure in mind, your future home includes a heated private swimming pool and a refreshing outdoor summer shower—the ultimate retreat after a beach day. Elevated Outdoor Entertaining. Host in style with a covered 145 sq ft BBQ area, ideal for open-air gatherings with friends and family while soaking in the sea breeze. Build-Ready Specs Include: • Lot size: 75 x 75 ft • 3,078 sq ft under air | 4,012 total sq ft • 3 Bedrooms + 1 Flex Room | 4 Bathrooms (3 Full + 1 Half) • Three-story design with private elevator • Expansive balconies for Gulf views • Impact-resistant windows & doors • Three-car garage & elevated construction to current FEMA & Miami-Dade hurricane codes Located on a quiet, upscale street of multimillion-dollar homes, and minutes from dining, marinas, and all Fort Myers Beach has to offer. Architectural & engineering plans included – just build and enjoy. Don’t miss your chance to secure this rare slice of coastal paradise. ALL INFORMATION FROM THE SELLER AND MUST BE VERIFIED BY THE BUYER!

位置

详情与特色

类型:
Land
停车:
没有数据
建造年份:
没有数据
地段:
0.13 英亩
暖气:
没有数据
价格/平方英尺:
没有数据
冷气:
没有数据
HOA:
没有数据
更多事实和特点
  • 地段

    • 地段: 0.13 英亩

    其他财产信息

    • 包裹编号: 334624W300600.001A

    • 分区: C-1

  • 类型与风格

    • 财产种类: Land

  • 公益

    • Electrical Nearby

  • 其他财政信息

    • 年税额: $4,240

  • 来源细节

    • MLS ID: TB8386877

    其他详情

    • 水源: None

    • 地块大小: 75 x 75

    • 细分名称: ESTERO PARK

类似房屋

2532 ESTERO BOULEVARD UNIT 607 placeholder 2532 ESTERO BOULEVARD UNIT 607
31 天
待售
公寓/合作社
$949,999
2 贝兹 2 浴室 1,235 平方英尺
2532 ESTERO BOULEVARD UNIT 607
5550 OAK RIDGE AVENUE placeholder 5550 OAK RIDGE AVENUE
121 天
待售
房屋
$680,000
3 贝兹 3 浴室 1,188 平方英尺
5550 OAK RIDGE AVENUE
6081 SHELBY LN, Fort Myers FL 33931 placeholder 6081 SHELBY LN, Fort Myers FL 33931
-$125K (2025/09/05)
待售
地段/土地
$725,000
0 room(s)
6081 SHELBY LN, Fort Myers FL 33931
140 BAY MAR DRIVE placeholder 140 BAY MAR DRIVE
338 天
待售
房屋
$899,000
3 贝兹 2 浴室 2,192 平方英尺
140 BAY MAR DRIVE

The multiple listing information is provided by the Stellar MLS from a copyrighted compilation of listings. The compilation of listings and each individual listing are ©2025-present Stellar MLS. All Rights Reserved. The information provided is for consumers' personal, noncommercial use and may not be used for any purpose other than to identify prospective properties consumers may be interested in purchasing. All properties are subject to prior sale or withdrawal. All information provided is deemed reliable but is not guaranteed accurate, and should be independently verified. Listing courtesy of: CASH FLOW IN MIAMI REALTY