特性
探索我们的清单
聯繫
告诉我们您的需求

414 W 9TH STREET

商业的 待售
$699,900

BTC: 23.33000000

ETH: 349.95000000

-$150K (2025/12/04)
78 天
0 room(s)
1,740 平方英尺
Est. 预计销售范围: $0 - $0
$0

总览

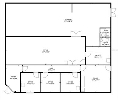
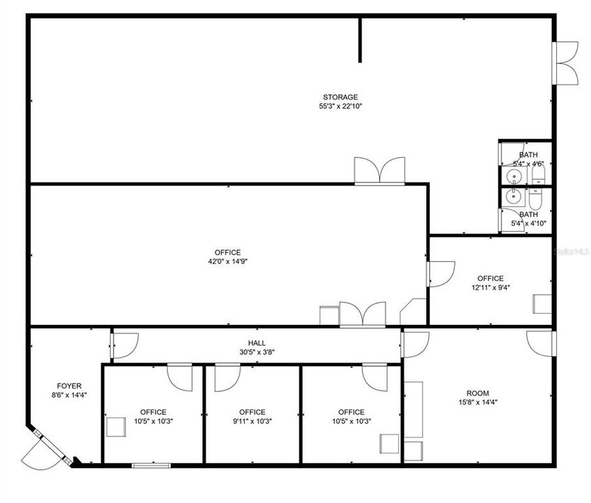
2,695 sq ft Industrial property located in Sanford spanning two parcels totaling 0.43 acres fully fenced and secure. 4 executive offices, 1 conference room, a spacious open workspace area (42’ x 14’), a warehouse/storage area (approx 1,000 sq ft) accessible directly through the office. The site also offers ample fenced outdoor storage, truck and fleet circulation areas, and convenient access to major highways. With utilities in place, the property is well-suited for distribution, equipment storage, or service-based operations. Currently zoned GC-2, permitting retail, service-oriented businesses, and light commercial/industrial uses. Note: outdoor storage, fueling, or hazardous materials may be subject to conditional approval by the City. Generator is approximately 5 years old, roof was replaced in September 2014,

位置

佛罗里达 SANFORD 32771 商业的 待售

详情与特色

类型:
Commercial Sale
停车:
没有数据
建造年份:
1956
地段:
0.43 英亩
暖气:
没有数据
价格/平方英尺:
$402
冷气:
Central Air
HOA:
没有数据
更多事实和特点
  • 冷气

    • Central Air

  • 地段

    • 地段: 0.43 英亩

    其他财产信息

    • 包裹编号: 2519305AG10070090

    • 分区: GC2

  • 类型与风格

    • 财产种类: Commercial Sale

    • 属性子类型: Business

  • 公益

    • Public

  • 其他财政信息

    • 年税额: $3,695

  • 来源细节

    • MLS ID: O6344973

    其他详情

    • 建筑材料: Brick / Concrete

    • 基金会详情: Slab

    • 生活区域: 1740

    • 水源: Public

    • 细分名称: SANFORD TOWN OF

类似房屋

2516 SANFORD AVENUE placeholder 2516 SANFORD AVENUE
2 天
待售
商业的
$875,000
0 room(s) 4,493 平方英尺
2516 SANFORD AVENUE
2004 LILY COURT placeholder 2004 LILY COURT
+$51K (2025/11/29)
待售
房屋
$850,000
5 贝兹 4 浴室 3,733 平方英尺
2004 LILY COURT
300 IDYLLWILDE DRIVE placeholder 300 IDYLLWILDE DRIVE
20 天
待售
房屋
$697,000
4 贝兹 3 浴室 3,456 平方英尺
300 IDYLLWILDE DRIVE
457 ELLIOTT AVE. placeholder 457 ELLIOTT AVE.
23 天
待售
房屋
$525,000
3 贝兹 2 浴室 1,874 平方英尺
457 ELLIOTT AVE.
330 KAYS LANDING DRIVE placeholder 330 KAYS LANDING DRIVE
25 天
待售
房屋
$549,000
6 贝兹 4 浴室 3,337 平方英尺
330 KAYS LANDING DRIVE
114 N SUMMERLIN AVENUE placeholder 114 N SUMMERLIN AVENUE
+$10K (2025/11/20)
待售
房屋
$734,987
4 贝兹 3 浴室 3,018 平方英尺
114 N SUMMERLIN AVENUE
2525 POINSETTA AVENUE placeholder 2525 POINSETTA AVENUE
30 天
待售
房屋
$540,000
5 贝兹 3 浴室 2,841 平方英尺
2525 POINSETTA AVENUE
2521 S FRENCH AVENUE placeholder 2521 S FRENCH AVENUE
51 天
待售
商业的
$800,000
0 room(s)
2521 S FRENCH AVENUE

The multiple listing information is provided by the Stellar MLS from a copyrighted compilation of listings. The compilation of listings and each individual listing are ©2025-present Stellar MLS. All Rights Reserved. The information provided is for consumers' personal, noncommercial use and may not be used for any purpose other than to identify prospective properties consumers may be interested in purchasing. All properties are subject to prior sale or withdrawal. All information provided is deemed reliable but is not guaranteed accurate, and should be independently verified. Listing courtesy of: SLOANE REALTY, LLC