特性
探索我们的清单
聯繫
告诉我们您的需求

530 5TH STREET W UNIT 4

公寓/合作社 出租
$4,000

BTC: 0.05937628

ETH: 2.05128205

/mo
123 天
2 贝兹
2 浴室
1,248 平方英尺
Est. 预计销售范围: $0 - $0
$0

总览

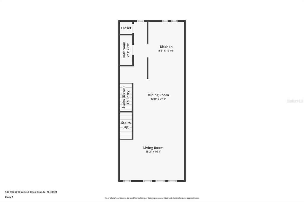
Weekly rate shown, please see description for detailed pricing. Welcome to Park Place #4 — a refined townhome in the heart of Boca Grande’s Historic District. Perfectly situated within a short distance of the Gulf’s pristine shoreline, boutique shops, art galleries, and charming dining. This two-bedroom, two-bath residence combines coastal elegance with modern comforts to create an unforgettable island retreat. The interior is filled with natural light, featuring an open living area with comfortable seating and large windows that frame views of the true entrance to Downtown. The fully equipped kitchen is designed with modern appliances and thoughtful details, making it easy to prepare everything from casual breakfasts to gourmet dinners. The adjacent dining space provides the ideal setting for enjoying meals that linger into the evening. Each of the two bedrooms includes a private en-suite bath, ensuring both comfort and convenience. One bedroom features a queen bed, while the second is designed with a versatile queen Murphy bed—offering flexibility for families or couples traveling together. Multiple balconies extend the living space outdoors, providing perfect spots for morning coffee, an afternoon read, or evening cocktails as the sun sets over the island. Amenities include central air conditioning, high-speed Wi-Fi, smart lock entry, and an in-unit washer and dryer. Dedicated parking adds ease to your stay, while the location places you at the gateway to Boca Grande’s natural beauty and recreation. Spend your days fishing, kayaking, paddleboarding, or snorkeling, or simply unwind along seven miles of pristine beaches lapped by turquoise waters. Boca Grande is celebrated for its unique blend of relaxed island charm and refined elegance. From fine dining and boutique shopping to historic landmarks and cultural attractions, the Historic District offers an experience like no other. Park Place #4 captures it all—an elegant retreat in an extraordinary location, offering the perfect balance of luxury, comfort, and convenience. Off-season: $3000 weekly/$12857.10 monthly Mid-season: $4000 weekly/$17142.90 monthly In-season: $5000 weekly/$21428.70 monthly

位置

详情与特色

类型:
Residential Lease
停车:
Garage Door Opener / Golf Cart Parking / Ground Level
建造年份:
1981
地段:
0.02 英亩
暖气:
Central
价格/平方英尺:
$3
冷气:
Central Air
HOA:
没有数据
更多事实和特点
  • 地板

    • Porcelain Tile

    暖气

    • Central

    冷气

    • Central Air

    设备

    • Dishwasher

    • Disposal

    • Dryer

    • Electric Water Heater

    • Freezer

    • Microwave

    • Range

    • Refrigerator

    • Washer

    其他室内特点

    • Ceiling Fan(s)

    • Eating Space In Kitchen

    • Living Room/Dining Room Combo

    • PrimaryBedroom Upstairs

    • Solid Surface Counters

    • Thermostat

    • Window Treatments

    卧室和浴室

    • 卧室: 2

    • 洗手间: 1

    • 完整的浴室: 2

  • 停车

    • Garage Door Opener

    • Golf Cart Parking

    • Ground Level

    房屋

    • 等级: Multi/Split

    • 外观特征: Balcony / French Doors / Sidewalk

    地段

    • 地段: 0.02 英亩

    其他财产信息

    • 包裹编号: 1443200500000.0040

  • 类型与风格

    • 财产种类: Residential Lease

    • 属性子类型: Condominium

  • 公益

    • Cable Connected

    • Electricity Connected

    • Fire Hydrant

    • Sewer Connected

    • Street Lights

    • Water Connected

  • 来源细节

    • MLS ID: D6143503

    其他详情

    • 洗衣功能: In Garage

    • 地段特征: City Lot / Sidewalk

    • 窗户功能: Blinds / Window Treatments

    • 方向面: North

    • 车库空间: 2

    • 附属车库: 是

    • 车库: 是

    • 生活区域: 1248

    • 水源: Private

    • 细分名称: PARK PLACE COLONY

类似房屋

241 GILCHRIST AVENUE UNIT C placeholder 241 GILCHRIST AVENUE UNIT C
92 天
出租
房屋
$4,900 /mo
4 贝兹 2 浴室 1,858 平方英尺
241 GILCHRIST AVENUE UNIT C
261 LEE AVENUE placeholder 261 LEE AVENUE
123 天
出租
房屋
$4,900 /mo
3 贝兹 3 浴室 1,213 平方英尺
261 LEE AVENUE
140 DAMFINO STREET placeholder 140 DAMFINO STREET
123 天
出租
房屋
$4,200 /mo
4 贝兹 3 浴室 2,047 平方英尺
140 DAMFINO STREET
1021 10TH STREET W placeholder 1021 10TH STREET W
139 天
出租
房屋
$5,000 /mo
3 贝兹 2 浴室 2,139 平方英尺
1021 10TH STREET W
212 PILOT STREET placeholder 212 PILOT STREET
931 天
出租
房屋
$4,900 /mo
4 贝兹 3 浴室 1,319 平方英尺
212 PILOT STREET

The multiple listing information is provided by the Stellar MLS from a copyrighted compilation of listings. The compilation of listings and each individual listing are ©2026-present Stellar MLS. All Rights Reserved. The information provided is for consumers' personal, noncommercial use and may not be used for any purpose other than to identify prospective properties consumers may be interested in purchasing. All properties are subject to prior sale or withdrawal. All information provided is deemed reliable but is not guaranteed accurate, and should be independently verified. Listing courtesy of: PARSLEY BALDWIN REAL ESTATE