特性
探索我们的清单
聯繫
告诉我们您的需求

1631 NE 165TH STREET

待售
$750,000

BTC: 25.00000000

ETH: 375.00000000

273 天
3 贝兹
2 浴室
1,457 平方英尺
Est. 预计销售范围: $0 - $0
$0

总览

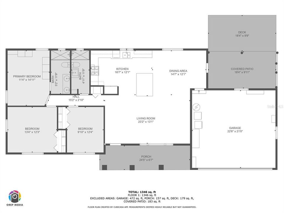
This fabalous property is back on the market due to no fault of it's own. Maybe it was waiting on you. Ideally located between both Ocala and Gainesville, this charming 5-acre mini-farm is thoughtfully designed and recently updated. The 3-bedroom, 2-bath home welcomes you with an open floor plan, where abundant natural light highlights the many upgrades throughout. The kitchen is well-equipped with granite counters, a center island, stainless steel appliances including a gas range, and a tiled backsplash— a perfect blend of function and style. Ceramic wood-look tile flooring flows throughout the home, complementing the modern farmhouse aesthetic. The primary suite features a private en-suite bath with dual sinks and a tiled shower for added convenience. Both the covered front porch and expanded rear porch offer cedar plank tongue-and-groove ceilings, with the rear porch further enhanced by a wooden deck extension that provides even more space to enjoy the peaceful views. Outside, the property is well-suited for horses or other livestock, with four cross-fenced paddocks ready for use. An RV hookup with septic is in place, offering even more options for your RV or potential guests. Whether you’re looking for a turnkey mini-farm or simply a serene country retreat, this property offers endless possibilities in a prime North Central Florida location.

位置

佛罗里达 CITRA 32113 待售

详情与特色

类型:
Residential
停车:
没有数据
建造年份:
1981
地段:
5.00 英亩
暖气:
Heat Pump
价格/平方英尺:
$515
冷气:
Central Air
HOA:
没有数据
更多事实和特点
  • 地板

    • Ceramic Tile

    暖气

    • Heat Pump

    冷气

    • Central Air

    设备

    • Dishwasher

    • Disposal

    • Dryer

    • Electric Water Heater

    • Microwave

    • Range

    • Range Hood

    • Refrigerator

    • Washer

    其他室内特点

    • Ceiling Fan(s)

    • Eating Space In Kitchen

    • Open Floorplan

    • Primary Bedroom Main Floor

    • Solid Surface Counters

    • Window Treatments

    卧室和浴室

    • 卧室: 3

    • 完整的浴室: 2

  • 房屋

    • 等级: One

    • 外观特征: Other

    地段

    • 地段: 5.00 英亩

    其他财产信息

    • 包裹编号: 0757002603

    • 分区: A1

  • 类型与风格

    • 财产种类: Residential

    • 属性子类型: Farm

  • 公益

    • Electricity Connected

    • Propane

    • Water Connected

  • 其他财政信息

    • 年税额: $1,587

  • 来源细节

    • MLS ID: OM695018

    其他详情

    • 建筑材料: Brick / Vinyl Siding

    • 基金会详情: Slab

    • 洗衣功能: Electric Dryer Hookup / In Garage / Inside / Washer Hookup

    • 地段特征: Cleared / Farm / In County / Level / Pasture / Zoned for Horses

    • 天井和门廊特色: Covered / Deck / Front Porch / Porch / Rear Porch

    • 方向面: South

    • 其他结构: Corral(s) / Shed(s)

    • 建筑风格: Ranch

    • 车库空间: 2

    • 附属车库: 是

    • 车库: 是

    • 生活区域: 1457

    • 水源: Well

    • 地块大小: 330 x 660

    • 细分名称: IN COUNTY

类似房屋

16990 NE 30TH COURT placeholder 16990 NE 30TH COURT
20 天
待售
房屋
$625,000
3 贝兹 1 浴室 1,100 平方英尺
16990 NE 30TH COURT
16876 NE 30TH COURT placeholder 16876 NE 30TH COURT
37 天
待售
$540,000
2 贝兹 1 浴室 1,900 平方英尺
16876 NE 30TH COURT
1671 W HIGHWAY 316 placeholder 1671 W HIGHWAY 316
54 天
待售
房屋
$824,900
3 贝兹 2 浴室 2,239 平方英尺
1671 W HIGHWAY 316
1880 NE 172ND PLACE placeholder 1880 NE 172ND PLACE
146 天
待售
地段/土地
$690,000
0 room(s)
1880 NE 172ND PLACE
1500 NW 155TH STREET placeholder 1500 NW 155TH STREET
-$79K (2025/09/20)
待售
$820,000
3 贝兹 2 浴室 2,487 平方英尺
1500 NW 155TH STREET
300 E HIGHWAY 316 placeholder 300 E HIGHWAY 316
-$400K (2025/10/30)
待售
地段/土地
$600,000
0 room(s)
300 E HIGHWAY 316
15551 N US HIGHWAY 301 placeholder 15551 N US HIGHWAY 301
1501 天
待售
商业的
$800,000
0 room(s) 3,062 平方英尺
15551 N US HIGHWAY 301

The multiple listing information is provided by the Stellar MLS from a copyrighted compilation of listings. The compilation of listings and each individual listing are ©2025-present Stellar MLS. All Rights Reserved. The information provided is for consumers' personal, noncommercial use and may not be used for any purpose other than to identify prospective properties consumers may be interested in purchasing. All properties are subject to prior sale or withdrawal. All information provided is deemed reliable but is not guaranteed accurate, and should be independently verified. Listing courtesy of: SHOWCASE PROPERTIES OF CENTRAL