特性
探索我们的清单
聯繫
告诉我们您的需求

8411-8419 DUFFIE DRIVE UNIT 205

商业的 待售
$720,000

BTC: 8.33815866

ETH: 246.06971975

143 天
0 room(s)
750 平方英尺
Est. 预计销售范围: $0 - $0
$0

总览

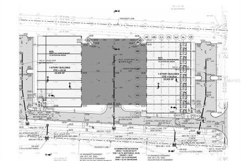
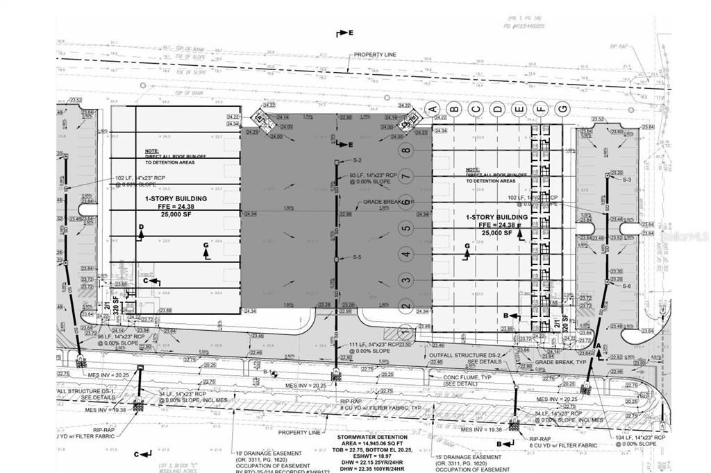
One or more photo(s) has been virtually staged. Pre-Construction. To be built. ECAP Zoned Flex Condos. 16 Units available across two - 25,000 Sq Ft. Buildings. Each unit will be 3,125 Sq Ft. Units may be bought individually or in bulk. Each unit will feature showroom space, 3 individual offices, and 1 ADA compliant bathroom. Warehouse space will include roll up door in rear, and 26+ feet ceiling heights. Property is conveniently located near the Punta Gorda airport 5 minute car drive to I75 Jones Loop Ramp. Enjoy the vibrant community of Punta Gorda featuring fine dinning, shopping & more Estimated completion date for the buildings is Quarter 4 of 2026. Condo fees are to be determined. For more information call. Information is deemed reliable but is not guaranteed.

位置

佛罗里达 PUNTA GORDA 33982 商业的 待售

详情与特色

类型:
Commercial Sale
停车:
Common / Over 30 Spaces
建造年份:
2026
地段:
5.00 英亩
暖气:
Central
价格/平方英尺:
$960
冷气:
A/C - Office Only
HOA:
没有数据
更多事实和特点
  • 地板

    • Concrete

    • Luxury Vinyl

    暖气

    • Central

    冷气

    • A/C - Office Only

  • 停车

    • Common

    • Over 30 Spaces

    地段

    • 地段: 5.00 英亩

    其他财产信息

    • 包裹编号: 412314400025

    • 分区: ECAP

  • 类型与风格

    • 财产种类: Commercial Sale

    • 属性子类型: Industrial

  • 公益

    • BB/HS Internet Capable

    • Electricity Available

    • Public

    • Water Connected

  • 其他财政信息

    • 年税额: $8,393

  • 来源细节

    • MLS ID: C7513220

    其他详情

    • 建筑材料: Metal Frame / Stone

    • 基金会详情: Slab

    • 生活区域: 750

    • 细分名称: WOODLAND ACRES

类似房屋

442 SCARLET SAGE placeholder 442 SCARLET SAGE
22 天
待售
房屋
$675,000
3 贝兹 3 浴室 2,472 平方英尺
442 SCARLET SAGE
2911 RIVERSIDE DRIVE placeholder 2911 RIVERSIDE DRIVE
30 天
待售
房屋
$599,000
4 贝兹 3 浴室 2,104 平方英尺
2911 RIVERSIDE DRIVE
8158 ALFRED BOULEVARD placeholder 8158 ALFRED BOULEVARD
46 天
待售
房屋
$589,000
3 贝兹 2 浴室 1,748 平方英尺
8158 ALFRED BOULEVARD
6640 TAYLOR ROAD UNIT B placeholder 6640 TAYLOR ROAD UNIT B
50 天
待售
地段/土地
$699,000
0 room(s)
6640 TAYLOR ROAD UNIT B
7028 N PLUM TREE placeholder 7028 N PLUM TREE
57 天
待售
房屋
$545,000
4 贝兹 3 浴室 2,365 平方英尺
7028 N PLUM TREE
6405 ALAN BOULEVARD placeholder 6405 ALAN BOULEVARD
-$7K (2025/11/29)
待售
房屋
$542,900
3 贝兹 2 浴室 1,920 平方英尺
6405 ALAN BOULEVARD
8411-8419 DUFFIE DRIVE UNIT 207 placeholder 8411-8419 DUFFIE DRIVE UNIT 207
115 天
待售
商业的
$720,000
0 room(s) 750 平方英尺
8411-8419 DUFFIE DRIVE UNIT 207
10043 WINDING RIVER ROAD placeholder 10043 WINDING RIVER ROAD
-$15K (2025/10/23)
待售
房屋
$510,000
4 贝兹 3 浴室 3,327 平方英尺
10043 WINDING RIVER ROAD

The multiple listing information is provided by the Stellar MLS from a copyrighted compilation of listings. The compilation of listings and each individual listing are ©2025-present Stellar MLS. All Rights Reserved. The information provided is for consumers' personal, noncommercial use and may not be used for any purpose other than to identify prospective properties consumers may be interested in purchasing. All properties are subject to prior sale or withdrawal. All information provided is deemed reliable but is not guaranteed accurate, and should be independently verified. Listing courtesy of: PREMIERE PLUS REALTY COMPANY