特性
探索我们的清单
聯繫
告诉我们您的需求

1349 NW 109TH AVENUE

待售
$279,900

BTC: 3.24145918

ETH: 95.65960355

-$9K (2025/12/07)
54 天
4 贝兹
2 浴室
1,904 平方英尺
Est. 预计销售范围: $0 - $0
$0

总览

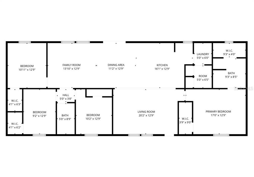
Price Improvement! Brand-new manufactured home on 1 acre near WEC. This double wide manufactured home delivers 1,904 sq ft with 4 bedrooms and 2 baths in a bright open plan. The living and dining areas flow to a spacious island kitchen with shaker cabinetry, stainless steel appliances, vent hood, and tile backsplash. Sliding glass doors bring in natural light and connect to the backyard. Durable laminate flooring runs throughout. All bedrooms offer generous closets. The large primary suite includes a walk-in closet and a private bath. Exterior features low-maintenance siding with vinyl skirting and plenty of room to spread out. Rural residential setting with a convenient Ocala location near the World Equestrian Center, shopping, and services.

位置

佛罗里达 OCALA 34482 待售

详情与特色

类型:
Residential
停车:
没有数据
建造年份:
2025
地段:
1.00 英亩
暖气:
Central
价格/平方英尺:
$147
冷气:
Central Air
HOA:
没有数据
更多事实和特点
  • 地板

    • Carpet

    • Laminate

    暖气

    • Central

    冷气

    • Central Air

    设备

    • Electric Water Heater

    • Microwave

    • Range

    • Refrigerator

    其他室内特点

    • L Dining

    卧室和浴室

    • 卧室: 4

    • 完整的浴室: 2

  • 房屋

    • 等级: One

    • 外观特征: Other

    地段

    • 地段: 1.00 英亩

    其他财产信息

    • 包裹编号: 2105008001

    • 分区: RR1

  • 类型与风格

    • 财产种类: Residential

    • 属性子类型: Manufactured Home

  • 公益

    • Cable Available

    • Electricity Connected

    • Water Available

  • 其他财政信息

    • 年税额: $451

  • 来源细节

    • MLS ID: OM712072

    其他详情

    • 建筑材料: Vinyl Siding / Wood Frame

    • 基金会详情: Block / Crawlspace

    • 洗衣功能: Laundry Closet

    • 地段特征: Corner Lot

    • 方向面: West

    • 建筑风格: Other

    • 生活区域: 1904

    • 水源: Well

    • 地块大小: 152 x 286

    • 细分名称: FELLOWSHIP ACRES

类似房屋

11605 NW 20TH STREET placeholder 11605 NW 20TH STREET
30 天
待售
$205,000
4 贝兹 2 浴室 1,378 平方英尺
11605 NW 20TH STREET
7TH PLACE placeholder 7TH PLACE
43 天
待售
地段/土地
$245,000
0 room(s)
7TH PLACE
11701 NW 13TH STREET placeholder 11701 NW 13TH STREET
45 天
待售
$249,000
5 贝兹 3 浴室 1,288 平方英尺
11701 NW 13TH STREET
13144 SW 18TH STREET ROAD placeholder 13144 SW 18TH STREET ROAD
50 天
待售
$225,000
3 贝兹 2 浴室 1,120 平方英尺
13144 SW 18TH STREET ROAD
454 NW 117TH COURT placeholder 454 NW 117TH COURT
-$10K (2025/11/18)
待售
$319,900
4 贝兹 2 浴室 1,632 平方英尺
454 NW 117TH COURT
1525 NW 105TH TERRACE placeholder 1525 NW 105TH TERRACE
62 天
待售
$283,000
3 贝兹 2 浴室 1,620 平方英尺
1525 NW 105TH TERRACE
555 NW 125TH AVENUE placeholder 555 NW 125TH AVENUE
86 天
待售
地段/土地
$250,000
0 room(s)
555 NW 125TH AVENUE
10630 NW 10TH STREET ROAD placeholder 10630 NW 10TH STREET ROAD
90 天
待售
$260,000
3 贝兹 2 浴室 1,620 平方英尺
10630 NW 10TH STREET ROAD

The multiple listing information is provided by the Stellar MLS from a copyrighted compilation of listings. The compilation of listings and each individual listing are ©2025-present Stellar MLS. All Rights Reserved. The information provided is for consumers' personal, noncommercial use and may not be used for any purpose other than to identify prospective properties consumers may be interested in purchasing. All properties are subject to prior sale or withdrawal. All information provided is deemed reliable but is not guaranteed accurate, and should be independently verified. Listing courtesy of: GLOBALWIDE REALTY LLC