特性
探索我们的清单
聯繫
告诉我们您的需求

21351 CANAL DRIVE

待售
$229,500

BTC: 2.65778807

ETH: 78.43472317

-$400 (2025/12/12)
49 天
3 贝兹
2 浴室
1,280 平方英尺
Est. 预计销售范围: $0 - $0
$0

总览

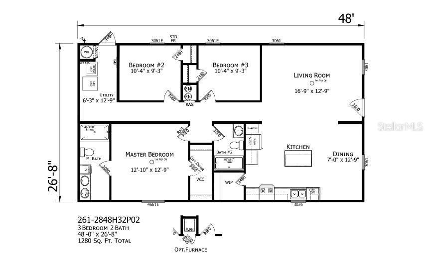
Pre-Construction. To be built. Welcome to your dream home, 21351 Canal Drive, Brooksville, FL 34601! Corner lot with a cul-de-sac, offering less through-traffic and a sense of privacy. This beautifully designed 3-bedroom, 2-bathroom brand-new manufactured home offers a spacious, open floor plan ideal for modern living. From the moment you step inside, you’ll appreciate the high-quality finishes and attention to detail with vinyl flooring throughout. The spacious living room seamlessly flows into the kitchen and dining area, perfect for entertaining guests. The master bedroom is a serene retreat, with a luxurious en-suite master bath with a dual sink vanity, shower and a walk-in closet. The second bathroom offers a tub, perfect for unwinding after a long day. The chef-inspired kitchen is equipped with brand-new stainless-steel appliances, featuring a central island with a breakfast bar, shaker-style cabinets and walk-in pantry. Two additional bedrooms provide plenty of space for family members or guests, each with walk-in closet. The added family room provides even more space to spread out, whether you need a home office, playroom, or second living area. Additionally, the utility room is a great space for laundry and storage, adding to the home’s overall convenience. Situated just a short drive from essential services and local attractions. Downtown Brooksville, with its historic charm, festivals, shops, and eateries, is approximately 2 miles away. Nature lovers will appreciate the proximity to the Withlacoochee State Trail, about 4 miles away, offering expansive pathways perfect for biking, walking, and enjoying the beautiful Florida outdoors. For a classic Florida experience, attractions like Weeki Wachee Springs are also easily accessible. This home is a prime location with no HOA or lot rent to worry about. Don't miss out on this incredible opportunity to make this brand-new home yours! Schedule your viewing today and experience the best of Florida living.

位置

佛罗里达 BROOKSVILLE 34601 待售

详情与特色

类型:
Residential
停车:
Driveway / Guest / Off Street
建造年份:
2025
地段:
0.14 英亩
暖气:
Central
价格/平方英尺:
$179
冷气:
Central Air
HOA:
没有数据
更多事实和特点
  • 地板

    • Vinyl

    暖气

    • Central

    冷气

    • Central Air

    设备

    • Dishwasher

    • Electric Water Heater

    • Range

    • Refrigerator

    其他室内特点

    • Eating Space In Kitchen

    • Kitchen/Family Room Combo

    • Open Floorplan

    • Primary Bedroom Main Floor

    • Thermostat

    • Walk-In Closet(s)

    卧室和浴室

    • 卧室: 3

    • 完整的浴室: 2

  • 停车

    • Driveway

    • Guest

    • Off Street

    房屋

    • 等级: One

    • 外观特征: Other / Private Mailbox

    地段

    • 地段: 0.14 英亩

    其他财产信息

    • 包裹编号: R1122219166000000700

    • 分区: RES

  • 类型与风格

    • 财产种类: Residential

    • 属性子类型: Manufactured Home

  • 公益

    • BB/HS Internet Available

    • Cable Available

    • Electricity Connected

    • Phone Available

    • Sewer Connected

    • Water Connected

  • 其他财政信息

    • 年税额: $1,107

  • 来源细节

    • MLS ID: P4936949

    其他详情

    • 建筑材料: Vinyl Siding

    • 基金会详情: Concrete Perimeter / Crawlspace / Pillar/Post/Pier

    • 洗衣功能: Electric Dryer Hookup / Inside / Laundry Room / Washer Hookup

    • 地段特征: Cul-De-Sac / In County / Level

    • 天井和门廊特色: Front Porch / Side Porch

    • 方向面: Southeast

    • 建筑风格: Other

    • 生活区域: 1280

    • 水源: Public

    • 细分名称: DAMAC MODULAR HOME PARK

类似房屋

524 EAST AVENUE placeholder 524 EAST AVENUE
-$10K (2025/11/21)
待售
房屋
$237,000
3 贝兹 2 浴室 2,052 平方英尺
524 EAST AVENUE
0 PONCE DE LEON BOULEVARD placeholder 0 PONCE DE LEON BOULEVARD
67 天
待售
地段/土地
$200,000
0 room(s)
0 PONCE DE LEON BOULEVARD
839 VILLAGE DRIVE placeholder 839 VILLAGE DRIVE
73 天
待售
联排别墅
$229,900
2 贝兹 2 浴室 1,142 平方英尺
839 VILLAGE DRIVE
19429 MCCLOY CIRCLE placeholder 19429 MCCLOY CIRCLE
-$12K (2025/11/07)
待售
$182,900
2 贝兹 2 浴室 784 平方英尺
19429 MCCLOY CIRCLE
248 Palm, Brooksville, FL 34601 placeholder 248 Palm, Brooksville, FL 34601
-$10K (2025/12/09)
待售
房屋
$195,000
3 贝兹 2 浴室 1,260 平方英尺
248 Palm, Brooksville, FL 34601
10371 EASTSIDE AVENUE placeholder 10371 EASTSIDE AVENUE
-$11K (2025/12/10)
待售
房屋
$229,000
3 贝兹 2 浴室 1,180 平方英尺
10371 EASTSIDE AVENUE
737 S BAILEY AVENUE placeholder 737 S BAILEY AVENUE
-$10K (2025/12/20)
待售
房屋
$199,900
3 贝兹 1 浴室 1,113 平方英尺
737 S BAILEY AVENUE
910 WHITEWAY DRIVE placeholder 910 WHITEWAY DRIVE
-$13K (2025/11/22)
待售
房屋
$217,000
3 贝兹 1 浴室 1,100 平方英尺
910 WHITEWAY DRIVE

The multiple listing information is provided by the Stellar MLS from a copyrighted compilation of listings. The compilation of listings and each individual listing are ©2025-present Stellar MLS. All Rights Reserved. The information provided is for consumers' personal, noncommercial use and may not be used for any purpose other than to identify prospective properties consumers may be interested in purchasing. All properties are subject to prior sale or withdrawal. All information provided is deemed reliable but is not guaranteed accurate, and should be independently verified. Listing courtesy of: LA ROSA REALTY PRESTIGE