特性
探索我们的清单
聯繫
告诉我们您的需求

225 FOLKLORE DRIVE

合同活跃
$240,000

BTC: 8.00000000

ETH: 120.00000000

-$20K (2025/09/17)
144 天
4 贝兹
2 浴室
2,280 平方英尺
Est. 预计销售范围: $0 - $0
$0

总览

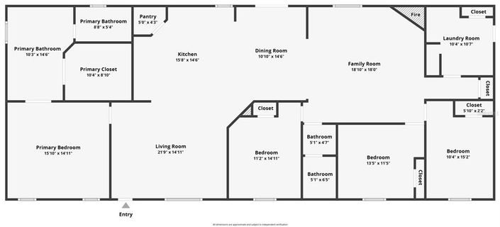
Under contract-accepting backup offers. Welcome to Satsuma—where small-town charm and natural surroundings come together to create a lifestyle that feels easy, grounded, and truly connected to the outdoors. This well-maintained 4 bedroom, 2 bath manufactured home offers 2,280 square feet of thoughtfully designed living area and sits on just over half an acre (.51) along a quiet paved road. With a flexible layout, two living rooms, and room to spread out, it’s an excellent fit for first-time buyers, seasonal residents, and growing generations. From the moment you arrive, you’ll appreciate the welcoming curb appeal, complete with a covered front porch accented by railings, classic columns, and window shutters that add a timeless touch. Inside a light-filled front living room makes a warm first impression. At the center of the home, the kitchen and dining area bring everyone together. The kitchen features a large island with breakfast bar seating and a built-in sink, a walk-in pantry, and generous cabinetry for storage. The dining area includes sliding glass doors that lead to the screened rear porch—perfect for enjoying quiet mornings with a cup of coffee or evenings outdoors. The second living room includes a cozy wood burning fireplace which offers an additional gathering space. The split bedroom design provides privacy, with the primary suite on one side featuring double vanities, a garden tub, separate shower, and a walk-in closet. Three additional bedrooms and a full bath are located on the opposite side—ideal for guests, shared living, or office space. A dedicated laundry room provides added convenience. Outside enjoy the screened back porch or relax on the front porch as you take in the quiet setting. A 24x26 double carport provides covered parking, and the 12x16 shed is ideal for tools and fishing gear. A 2018 metal roof brings peace of mind with lasting durability. This home offers easy access to natural beauty and outdoor adventure conveniently located near Dunn's Creek, the St. Johns River, Welaka State Forest, and Log Cabin Winery. Crescent City, known as the Bass Capital of the World, is nearby and features scenic lakes and a quaint historic downtown. Palatka is just 15 minutes away providing everyday shopping and dining. Take a day trip to Gainesville or St. Augustine in one hour. If you're looking for comfort, flexibility, and a peaceful setting that keeps you connected, schedule your private showing today and see all that this Satsuma gem has to offer! This home may qualify for USDA financing with ZERO DOWN for eligible buyer's.

位置

佛罗里达 SATSUMA 32189 合同活跃

详情与特色

类型:
Residential
停车:
Covered
建造年份:
2008
地段:
0.51 英亩
暖气:
Electric
价格/平方英尺:
$105
冷气:
Central Air
HOA:
没有数据
更多事实和特点
  • 地板

    • Carpet

    • Vinyl

    暖气

    • Electric

    冷气

    • Central Air

    设备

    • Dishwasher

    • Range

    • Refrigerator

    其他室内特点

    • Ceiling Fan(s)

    • Open Floorplan

    • Split Bedroom

    • Thermostat

    • Walk-In Closet(s)

    卧室和浴室

    • 卧室: 4

    • 完整的浴室: 2

  • 停车

    • Covered

    房屋

    • 等级: One

    • 外观特征: Private Mailbox / Rain Gutters / Shade Shutter(s) / Sliding Doors / Storage

    地段

    • 地段: 0.51 英亩

    其他财产信息

    • 包裹编号: 391126823100800330

    • 分区: R-2

  • 类型与风格

    • 财产种类: Residential

    • 属性子类型: Manufactured Home

  • 公益

    • Electricity Connected

    • Water Connected

  • 其他财政信息

    • 年税额: $3,855

  • 来源细节

    • MLS ID: V4943574

    其他详情

    • 建筑材料: Vinyl Siding / Wood Frame

    • 基金会详情: Pillar/Post/Pier

    • 壁炉功能: Living Room / Wood Burning

    • 洗衣功能: Electric Dryer Hookup / Inside / Laundry Room / Washer Hookup

    • 地段特征: In County / Oversized Lot / Unincorporated

    • 天井和门廊特色: Covered / Front Porch / Rear Porch / Screened

    • 方向面: Northeast

    • 其他结构: Shed(s)

    • 建筑风格: Ranch

    • 壁炉: 是

    • 生活区域: 2280

    • 水源: Well

    • 地块大小: 122 x 181

    • 细分名称: ST JOHNS RIVERSIDE ESTATES

类似房屋

在该地区没有找到类似的属性

The multiple listing information is provided by the Stellar MLS from a copyrighted compilation of listings. The compilation of listings and each individual listing are ©2025-present Stellar MLS. All Rights Reserved. The information provided is for consumers' personal, noncommercial use and may not be used for any purpose other than to identify prospective properties consumers may be interested in purchasing. All properties are subject to prior sale or withdrawal. All information provided is deemed reliable but is not guaranteed accurate, and should be independently verified. Listing courtesy of: CENTURY 21 MCBRIDE REALTY GROUP