特性
探索我们的清单
聯繫
告诉我们您的需求

1233 47TH AVENUE N

房屋 待售
$1,695,000

BTC: 19.62941517

ETH: 579.28913192

69 天
4 贝兹
4 浴室
3,033 平方英尺
Est. 预计销售范围: $0 - $0
$0

总览

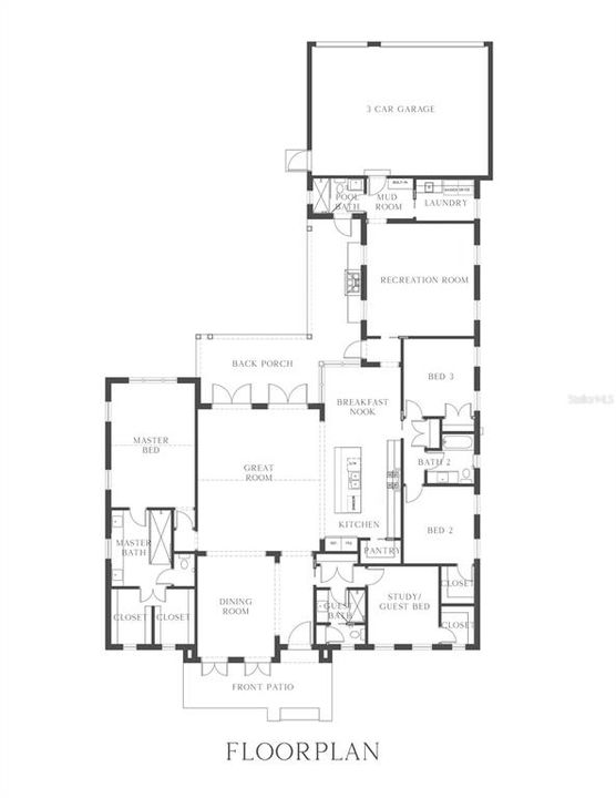
Pre-Construction. To be built. Est. Completion: Jan 2027. Would you love to live in St. Petersburg’s coveted Euclid Heights in a SINGLE-STORY HOME? Here’s your chance to make that dream a reality with Canopy Builders – St. Petersburg’s most TRUSTED name in luxury home construction. Located in a NON-FLOOD AND NON-EVACUATION ZONE, this brand-new ALL BLOCK build sits on an expansive lot measuring 70 x 127 sq ft and offers 4 Bedrooms + Study + Recreation room, 4 Baths, and an oversized 3-car garage. The main residence boasts a total of 3,033 sq ft under air. Surrounded by the neighborhood’s charming tree lined streets, this home blends modern luxury with timeless character. All of this, just a 10-minute drive to downtown St. Pete. Buyers currently have an EXCLUSIVE opportunity to personalize this home with the expertise of an in-house designer from the Canopy Builders team—but this chance won’t last long. A generous design allowance allows for the selection of customized finishes, ensuring every detail aligns seamlessly with the home's luxury specifications. Entering through the front corridor, you’re welcomed into the spacious great room, featuring vaulted ceilings. Off the great room sits the formal dining room and kitchen, complete with a breakfast nook, pantry, gas oven and range, and a large center island ideal for both cooking and gathering. The primary suite, located off the great room, also offers vaulted ceilings, dual closets, and a luxurious en suite bathroom with dual vanities. Featuring a split floor plan, the study or guest bedroom includes a full closet and a detached bathroom for added flexibility. Bedrooms two and three share a bathroom, providing both function and privacy. Toward the back of the home, a recreation room offers multipurpose space—perfect for entertaining, hobbies, or a playroom. Beyond the recreation room, you’ll find a full pool bathroom with shower, a mudroom with built-in cabinetry, and a laundry room with a sink for everyday convenience. Outside, double doors from the great room open to the covered back porch, featuring an outdoor kitchen—ideal for relaxing or entertaining by the pool. Several key features have already been planned including a tankless gas water heater, impact-resistant windows, and engineered hardwood flooring throughout. Additional luxury elements include 10’ ceilings throughout , 12’ ceilings in the great room and primary bedroom, as well as 8’ interior doors. Canopy’s signature gas sconce adds an elegant touch to the front porch. The large backyard offers ample space for lounging and entertaining. Enjoy a 10 minute drive to downtown St. Pete, 20-minute drive to St. Pete Beach and only 20 minutes to Tampa. Don’t miss the opportunity to make this breathtaking home yours today!

位置

佛罗里达 ST PETERSBURG 33703 房屋 待售

详情与特色

类型:
Residential
停车:
没有数据
建造年份:
2026
地段:
0.20 英亩
暖气:
Central
价格/平方英尺:
$559
冷气:
Central Air
HOA:
没有数据
更多事实和特点
  • 地板

    • Engineered Hardwood

    • Tile

    暖气

    • Central

    冷气

    • Central Air

    设备

    • Dishwasher

    • Disposal

    • Exhaust Fan

    • Gas Water Heater

    • Microwave

    • Range

    • Range Hood

    • Refrigerator

    • Tankless Water Heater

    其他室内特点

    • Crown Molding

    • Eating Space In Kitchen

    • High Ceilings

    • In Wall Pest System

    • Kitchen/Family Room Combo

    • Open Floorplan

    • Primary Bedroom Main Floor

    • Solid Surface Counters

    • Solid Wood Cabinets

    • Stone Counters

    • Thermostat

    • Walk-In Closet(s)

    卧室和浴室

    • 卧室: 4

    • 完整的浴室: 4

  • 房屋

    • 等级: One

    • 外观特征: Irrigation System / Lighting / Outdoor Grill / Outdoor Kitchen / Private Mailbox / Rain Gutters / Sidewalk / Sprinkler Metered

    地段

    • 地段: 0.20 英亩

    其他财产信息

    • 包裹编号: 013116258300000010

  • 类型与风格

    • 财产种类: Residential

    • 属性子类型: Single Family Residence

  • 公益

    • Public

  • 其他财政信息

    • 年税额: $906

  • 来源细节

    • MLS ID: TB8438885

    其他详情

    • 建筑材料: Block / Stucco

    • 基金会详情: Slab

    • 洗衣功能: Inside / Laundry Room

    • 方向面: South

    • 车库空间: 3

    • 附属车库: 是

    • 车库: 是

    • 生活区域: 3033

    • 水源: Public

    • 地块大小: 70 x 127

    • 细分名称: EMMONS GROVEMONT PT REP

类似房屋

655 19TH AVENUE NE placeholder 655 19TH AVENUE NE
2 天
待售
房屋
$1,800,000
3 贝兹 2 浴室 2,429 平方英尺
655 19TH AVENUE NE
2800 COFFEE POT BOULEVARD NE placeholder 2800 COFFEE POT BOULEVARD NE
5 天
待售
房屋
$1,600,000
2 贝兹 1 浴室 1,904 平方英尺
2800 COFFEE POT BOULEVARD NE
2011 10TH STREET N placeholder 2011 10TH STREET N
6 天
待售
房屋
$1,850,000
5 贝兹 4 浴室 3,402 平方英尺
2011 10TH STREET N
819 38TH AVENUE NE placeholder 819 38TH AVENUE NE
9 天
待售
房屋
$1,950,000
5 贝兹 3 浴室 3,120 平方英尺
819 38TH AVENUE NE
115 RAFAEL BOULEVARD NE placeholder 115 RAFAEL BOULEVARD NE
9 天
待售
房屋
$1,500,000
3 贝兹 3 浴室 2,444 平方英尺
115 RAFAEL BOULEVARD NE
346 16TH AVENUE NE placeholder 346 16TH AVENUE NE
12 天
待售
房屋
$1,495,000
3 贝兹 3 浴室 1,713 平方英尺
346 16TH AVENUE NE
719 40TH AVENUE N placeholder 719 40TH AVENUE N
13 天
待售
房屋
$1,495,000
4 贝兹 3 浴室 3,154 平方英尺
719 40TH AVENUE N
808 BRIGHTWATERS BOULEVARD NE placeholder 808 BRIGHTWATERS BOULEVARD NE
16 天
待售
房屋
$1,795,000
4 贝兹 3 浴室 2,698 平方英尺
808 BRIGHTWATERS BOULEVARD NE

The multiple listing information is provided by the Stellar MLS from a copyrighted compilation of listings. The compilation of listings and each individual listing are ©2025-present Stellar MLS. All Rights Reserved. The information provided is for consumers' personal, noncommercial use and may not be used for any purpose other than to identify prospective properties consumers may be interested in purchasing. All properties are subject to prior sale or withdrawal. All information provided is deemed reliable but is not guaranteed accurate, and should be independently verified. Listing courtesy of: COMPASS FLORIDA LLC