特性
探索我们的清单
聯繫
告诉我们您的需求

1655 E HIGHWAY 329

房屋 待售
$599,000

BTC: 19.96666667

ETH: 299.50000000

-$20K (2025/09/30)
129 天
3 贝兹
2 浴室
945 平方英尺
Est. 预计销售范围: $0 - $0
$0

总览

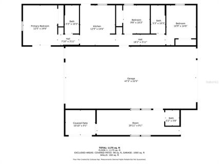
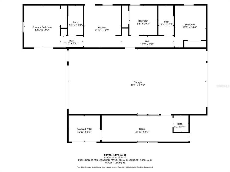
LOCATION! LOCATION! A BEAUTIFUL BARNDOMINIUM SITTING ON 3.05 ACRES CENTRALLY LOCATED BETWEEN OCALA AND GAINESVILLE! THIS IS DEFINITELY A ONE OF A KIND PROPERTY! THE HOME CONSISTS OF 3 BEDROOMS AND 2.5 BATHS, VINYL FLOORING THROUGHOUT, GRANITE COUNTERTOPS, AND ALL STAINLESS STEEL APPLIANCES! THE GARAGE CONSISTS OF 1,138 SQUARE FEET AND IS FULLY INSULATED AND RUNS OFF OF ITS ON SEPERATE AC IF YOU SO DESIRE! ON ONE SIDE OF THE GARAGE YOU HAVE YOUR 945 SQ FT 3 BED 2 BATH HOUSE AND ON THE OTHER SIDE OF THE INSULATED AIR CONDITIONED GARAGE YOU HAVE 470 SQ FT WHICH CONSISTS OF A STORAGE AREA, A 1/2 BATH, AND A LARGE ROOM THAT COULD BE USED FOR STORAGE OR TURNED INTO A 4TH BEDROOM. OFF THE BACK OF THE HOUSE YOU HAVE A COVERED PATIO PERFECT FOR GRILLING OUT AND A BIG SCREEN TV ON THE WALL! THE ENTIRE HOUSE IS SPRAY FOAMED INCLUDING THE WALLS MAKING IT SUPER ENERGY EFFICIENT. THE PROPERTY CONSISTS OF 3.05 ACRES BUT THE FULLY FENCED IN AREA CONSIST OF 2 ACRES. THE HOUSE IS PERFECTLY LOCATED ON HWY 329 IN SPARR WHICH MEANS YOU'RE ONLY 2 MINUTES FROM 441, 10 MINUTES FROM I75, 20 MINUTES FROM OCALA, 30 MINUTES FROM THE WORLD EQUESTRIAN CENTER AND 45 MINUTES FROM GAINESVILLE! THE PROPERTY IS ZONED AGRICULTURE SO BRING THE ANIMALS WITH YOU!

位置

佛罗里达 CITRA 32113 房屋 待售

详情与特色

类型:
Residential
停车:
没有数据
建造年份:
2024
地段:
3.05 英亩
暖气:
Central
价格/平方英尺:
$634
冷气:
Central Air
HOA:
没有数据
更多事实和特点
  • 地板

    • Laminate

    暖气

    • Central

    冷气

    • Central Air

    设备

    • Dishwasher

    • Microwave

    • Range

    • Refrigerator

    其他室内特点

    • Eating Space In Kitchen

    • Primary Bedroom Main Floor

    • Split Bedroom

    卧室和浴室

    • 卧室: 3

    • 洗手间: 1

    • 完整的浴室: 2

  • 房屋

    • 等级: One

    • 外观特征: Private Mailbox / Storage

    地段

    • 地段: 3.05 英亩

    其他财产信息

    • 包裹编号: 0781200001

    • 分区: A1

  • 类型与风格

    • 财产种类: Residential

    • 属性子类型: Single Family Residence

  • 公益

    • Cable Connected

    • Electricity Connected

    • Fiber Optics

  • 其他财政信息

    • 年税额: $799

  • 来源细节

    • MLS ID: OM706406

    其他详情

    • 建筑材料: Metal Siding

    • 基金会详情: Slab

    • 洗衣功能: In Garage

    • 方向面: South

    • 车库空间: 3

    • 附属车库: 是

    • 车库: 是

    • 生活区域: 945

    • 水源: Well

    • 地块大小: 244 x 545

    • 细分名称: NONE

类似房屋

4160 NE 127TH PLACE placeholder 4160 NE 127TH PLACE
-$46K (2025/11/26)
待售
地段/土地
$549,000
0 room(s)
4160 NE 127TH PLACE
399 NE 155TH PLACE placeholder 399 NE 155TH PLACE
33 天
待售
房屋
$499,900
4 贝兹 3 浴室 2,942 平方英尺
399 NE 155TH PLACE
13232 NE 39TH TERRACE placeholder 13232 NE 39TH TERRACE
-$16K (2025/12/04)
待售
房屋
$449,000
3 贝兹 2 浴室 2,024 平方英尺
13232 NE 39TH TERRACE
4275 NE 138TH PLACE placeholder 4275 NE 138TH PLACE
-$7K (2025/10/31)
待售
房屋
$437,900
3 贝兹 2 浴室 2,206 平方英尺
4275 NE 138TH PLACE
12131 NE 10TH TERRACE placeholder 12131 NE 10TH TERRACE
-$2K (2025/11/05)
待售
房屋
$627,500
4 贝兹 2 浴室 2,832 平方英尺
12131 NE 10TH TERRACE
TBD NE 8TH placeholder TBD NE 8TH
82 天
待售
地段/土地
$425,000
0 room(s)
TBD NE 8TH
999 NE 120 PLACE placeholder 999 NE 120 PLACE
104 天
待售
房屋
$525,000
4 贝兹 2 浴室 2,526 平方英尺
999 NE 120 PLACE
1050 E HIGHWAY 329 placeholder 1050 E HIGHWAY 329
-$10K (2025/08/09)
待售
房屋
$499,900
2 贝兹 1 浴室 1,787 平方英尺
1050 E HIGHWAY 329

The multiple listing information is provided by the Stellar MLS from a copyrighted compilation of listings. The compilation of listings and each individual listing are ©2025-present Stellar MLS. All Rights Reserved. The information provided is for consumers' personal, noncommercial use and may not be used for any purpose other than to identify prospective properties consumers may be interested in purchasing. All properties are subject to prior sale or withdrawal. All information provided is deemed reliable but is not guaranteed accurate, and should be independently verified. Listing courtesy of: KELLER WILLIAMS CORNERSTONE RE