特性
探索我们的清单
聯繫
告诉我们您的需求

1918 WANDA AVE N # 1918, Lehigh Acres FL 33971

房屋 出租
$1,900

BTC: 0.06333333

ETH: 0.95000000

/mo
3 天
4 贝兹
2 浴室
1,639 平方英尺
Est. 预计销售范围: $0 - $0
$0

总览

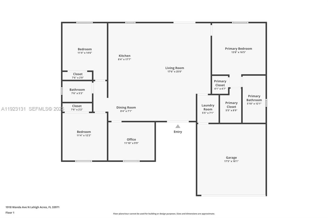
Be the first to live in this brand-new construction home set on a generous 13,068 SqFt lot. This 4BR | 2BA residence with a 2-car garage delivers modern design, bright open living spaces, and high-quality finishes. The kitchen features quartz countertops, a waterfall island, soft-close shaker cabinets, and stainless-steel appliances. Enjoy built-in custom closets, a full sprinkler system, washer, dryer, and all appliances already in place for immediate move-in. The flexible 4th bedroom with full closet is ideal as a home office or guest room. Located minutes from FGCU, RSW Airport, shopping, dining, and top-rated schools, this home offers the perfect blend of new construction comfort and everyday convenience.

位置

详情与特色

类型:
Residential Lease
停车:
Additional Spaces Available / Covered
建造年份:
2025
地段:
13068 平方英尺
暖气:
Central
价格/平方英尺:
$1
冷气:
Central Air
HOA:
没有数据
更多事实和特点
  • 地板

    • Ceramic Floor

    • Other

    暖气

    • Central

    冷气

    • Central Air

    设备

    • Dishwasher

    • Disposal

    • Dryer

    • Microwave

    • Other Equipment/Appliances

    • Electric Range

    • Refrigerator

    • Wall Oven

    • Washer

    其他室内特点

    • First Floor Entry

    • Built-in Features

    • Closet Cabinetry

    • Custom Mirrors

    • Fire Sprinklers

    • French Doors

    • Laundry Tub

    • Other

    • Walk-In Closet(s)

    • Den/Library/Office

    • Family Room

    • Great Room

    • Utility Room/Laundry

    卧室和浴室

    • 卧室: 4

    • 完整的浴室: 2

  • 停车

    • Additional Spaces Available

    • Covered

    房屋

    • 外观特征: Lighting / Other / Room For Pool

    地段

    • 地段: 13068 平方英尺

    其他财产信息

    • 包裹编号: 10317628

    • 分区: RS-1

  • 类型与风格

    • 财产种类: Residential Lease

    • 属性子类型: Single Family Residence

  • 来源细节

    • MLS ID: A11923131

    其他详情

    • 建筑材料: CBS Construction

    • 洗衣功能: Laundry Tub / Utility Room/Laundry

    • 地段特征: 1/4 To Less Than 1/2 Acre Lot / Oversized Lot

    • 天井和门廊特色: Patio

    • 窗户功能: Clear Impact Glass / High Impact Windows

    • 方向面: North

    • 车库空间: 2

    • 附属车库: 是

    • 车库: 是

    • 生活区域: 1639

    • 水源: Municipal Water

    • 细分名称: Lee County Unincorporated

类似房屋

2812 W 54TH ST # 0, Lehigh Acres FL 33971 placeholder 2812 W 54TH ST # 0, Lehigh Acres FL 33971
出租
房屋
$2,350 /mo
4 贝兹 2 浴室 1,534 平方英尺
2812 W 54TH ST # 0, Lehigh Acres FL 33971
4516 Douglas Lane # 4516, Lehigh Acres FL 33973 placeholder 4516 Douglas Lane # 4516, Lehigh Acres FL 33973
1 天
出租
多户家庭
$1,675 /mo
3 贝兹 2 浴室
4516 Douglas Lane # 4516, Lehigh Acres FL 33973
55 Douglas Ave S, Other City - In The State Of Florida FL 33976 placeholder 55 Douglas Ave S, Other City - In The State Of Florida FL 33976
-$125 (2025/12/04)
出租
房屋
$2,075 /mo
4 贝兹 2 浴室
55 Douglas Ave S, Other City - In The State Of Florida FL 33976
2516 Park Road # 2518, Lehigh Acres FL 33971 placeholder 2516 Park Road # 2518, Lehigh Acres FL 33971
29 天
出租
多户家庭
$2,100 /mo
3 贝兹 2 浴室
2516 Park Road # 2518, Lehigh Acres FL 33971
4662 26TH SW # 0, Lehigh Acres FL 33973 placeholder 4662 26TH SW # 0, Lehigh Acres FL 33973
40 天
出租
房屋
$2,200 /mo
3 贝兹 2 浴室
4662 26TH SW # 0, Lehigh Acres FL 33973
3111 W 17TH ST W, Lehigh Acres FL 33971 placeholder 3111 W 17TH ST W, Lehigh Acres FL 33971
45 天
出租
房屋
$2,000 /mo
3 贝兹 2 浴室
3111 W 17TH ST W, Lehigh Acres FL 33971
1032 CHAMPION AVE, Lehigh Acres FL 33971 placeholder 1032 CHAMPION AVE, Lehigh Acres FL 33971
57 天
出租
房屋
$2,400 /mo
4 贝兹 2 浴室 1,828 平方英尺
1032 CHAMPION AVE, Lehigh Acres FL 33971
5217 CENTENNIAL BOULEVARD placeholder 5217 CENTENNIAL BOULEVARD
-$250 (2025/11/11)
出租
$1,400 /mo
3 贝兹 2 浴室 1,125 平方英尺
5217 CENTENNIAL BOULEVARD

The multiple listing information is provided by the Miami Association of REALTORS® from a copyrighted compilation of listings. The compilation of listings and each individual listing are ©2025-present Miami Association of REALTORS®. All Rights Reserved. The information provided is for consumers' personal, noncommercial use and may not be used for any purpose other than to identify prospective properties consumers may be interested in purchasing. All properties are subject to prior sale or withdrawal. All information provided is deemed reliable but is not guaranteed accurate, and should be independently verified. Listing courtesy of: Coldwell Banker Realty