特性
探索我们的清单
聯繫
告诉我们您的需求

3589 GRANDE TUSCANY WAY

房屋 待售
$1,995,000

BTC: 29.61391911

ETH: 1,039.06250000

-$105K (2025/11/22)
110 天
滨水区
6 贝兹
7 浴室
8,260 平方英尺
Est. 预计销售范围: $0 - $0
$0

总览

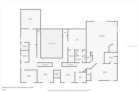
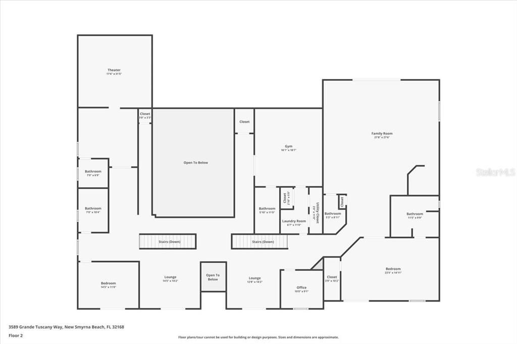
Built by Johnson Group Homes as the builder’s personal custom residence, this extraordinary estate is located in the award-winning Venetian Bay golfing community in New Smyrna Beach, where he served as the original developer, and is nestled on over a half-acre lakefront cul-de-sac lot with a tiered fountain centerpiece in the highly sought-after gated enclave of Tuscany Reserve. Offering in excess of 8,000 SF under air and over 11,000 SF total, this fully furnished turnkey mansion features 6 bedrooms, 10 bathrooms (7 full, 3 half), a grand travertine entry with large wood doors, soaring foyer flanked by a formal dining room and music room complete with baby grand, dual staircases, a massive living room with fireplace and balconies above, a wine cellar, wet bar, and chef’s kitchen with granite counters, pantry, and GE Monogram stainless appliances. The downstairs primary suite is fit for royalty with its own fireplace, 3-way mirrored dressing room, 20’ walk-in closet, garden tub, and separate shower, while 3 additional guest suites are also located on the main level. Step outside to the lanai with outdoor kitchen, pool bath, shower, and a spectacular 150’ saltwater pool with beach entry, landscaped island, arched bridge, spillover hot tub, and expansive paver deck overlooking the lake. Upstairs you’ll find 2 more bedroom suites, multiple balconies, 2 offices, a flex space, wood-paneled theater room with wet bar and half bath, billiards/game room with sports décor, wet bar, balcony, and half bath, plus a mirrored fitness studio outfitted with top-tier cardio and strength equipment. Every bedroom has its own walk-in closet with built-ins, and laundry rooms are located on each floor. Additional features include a 4-car garage (two tandem spaces) with cabinetry, tile roof, mature landscaping, central vac, whole-house generator, water treatment system, lightning protection, propane tanks, electric hurricane shutters, plantation shutters on interior windows, art niches, and extensive built-ins throughout. Just 15 minutes to the Atlantic Ocean beaches and Intracoastal Waterway, and close to downtown NSB’s historic district, shops, restaurants, parks, and entertainment, this home is unlike anything else—built to the highest standards and impossible to replace at this price. ALL INFORMATION IS ASSUMED ACCURATE BUT NOT GUARANTEED. ALL MEASUREMENTS ARE APPROXIMATE. BUYERS AND THEIR AGENTS SHALL VERIFY ANY INFORMATION DEEMED IMPORTANT TO THEM.

位置

详情与特色

类型:
Residential
停车:
Driveway / Garage Door Opener / Garage Faces Side / Tandem
建造年份:
2005
地段:
0.55 英亩
暖气:
Natural Gas
价格/平方英尺:
$242
冷气:
Central Air / Zoned
HOA:
$750
更多事实和特点
  • 地板

    • Carpet

    • Ceramic Tile

    • Hardwood

    暖气

    • Natural Gas

    冷气

    • Central Air

    • Zoned

    设备

    • Bar Fridge

    • Built-In Oven

    • Cooktop

    • Dishwasher

    • Disposal

    • Dryer

    • Exhaust Fan

    • Freezer

    • Gas Water Heater

    • Microwave

    • Range

    • Range Hood

    • Refrigerator

    • Washer

    • Water Filtration System

    • Wine Refrigerator

    其他室内特点

    • Built-in Features

    • Ceiling Fan(s)

    • Central Vacuum

    • Coffered Ceiling(s)

    • Crown Molding

    • Eating Space In Kitchen

    • High Ceilings

    • L Dining

    • Open Floorplan

    • Primary Bedroom Main Floor

    • Skylight(s)

    • Solid Wood Cabinets

    • Split Bedroom

    • Stone Counters

    • Thermostat

    • Vaulted Ceiling(s)

    • Walk-In Closet(s)

    • Wet Bar

    • Window Treatments

    卧室和浴室

    • 卧室: 6

    • 洗手间: 3

    • 完整的浴室: 7

  • 停车

    • Driveway

    • Garage Door Opener

    • Garage Faces Side

    • Tandem

    房屋

    • 等级: Two

    • 私人泳池: 是

    • 外观特征: Balcony / French Doors / Hurricane Shutters / Irrigation System / Outdoor Grill / Outdoor Kitchen / Outdoor Shower / Sidewalk

    地段

    • 地段: 0.55 英亩

    其他财产信息

    • 包裹编号: 730606001540

    • 分区: PUD

  • 类型与风格

    • 财产种类: Residential

    • 属性子类型: Single Family Residence

  • 公益

    • BB/HS Internet Available

    • Cable Connected

    • Electricity Connected

    • Propane

    • Public

    • Sewer Connected

    绿色能源

    • Appliances

  • 其他财政信息

    • HOA: $750

    • HOA频率: Annually

    • 年税额: $26,896

  • 来源细节

    • MLS ID: NS1085990

    其他详情

    • 建筑材料: Block / Stucco

    • 基金会详情: Concrete Perimeter

    • 壁炉功能: Gas

    • 洗衣功能: Inside / Laundry Room

    • 地段特征: Cul-De-Sac / Landscaped / Near Golf Course / Oversized Lot / Sidewalk

    • 天井和门廊特色: Covered / Front Porch / Patio / Porch / Rear Porch

    • 泳池特色: Heated / In Ground / Salt Water

    • 窗户功能: Shutters / Window Treatments

    • 方向面: South

    • 其他结构: Outdoor Kitchen

    • 建筑风格: Mediterranean

    • 滨水区: 是

    • 壁炉: 是

    • 车库空间: 4

    • 附属车库: 是

    • 车库: 是

    • 生活区域: 8260

    • 水源: Public

    • 地块大小: IRREGULAR

    • 细分名称: VENETIAN BAY PH 01A

类似房屋

TOMOKA FARMS ROAD placeholder TOMOKA FARMS ROAD
2 天
待售
地段/土地
$1,950,000
0 room(s)
TOMOKA FARMS ROAD
3960 PIONEER TRAIL placeholder 3960 PIONEER TRAIL
82 天
待售
地段/土地
$1,750,000
0 room(s)
3960 PIONEER TRAIL

The multiple listing information is provided by the Stellar MLS from a copyrighted compilation of listings. The compilation of listings and each individual listing are ©2026-present Stellar MLS. All Rights Reserved. The information provided is for consumers' personal, noncommercial use and may not be used for any purpose other than to identify prospective properties consumers may be interested in purchasing. All properties are subject to prior sale or withdrawal. All information provided is deemed reliable but is not guaranteed accurate, and should be independently verified. Listing courtesy of: COLLADO REAL ESTATE