特性
探索我们的清单
聯繫
告诉我们您的需求

39636 CAROLINA AVENUE

房屋 待售
$985,000

BTC: 10.36842105

ETH: 317.74193548

-$115K (2025/12/04)
292 天
4 贝兹
3 浴室
3,996 平方英尺
Est. 预计销售范围: $0 - $0
$0

总览

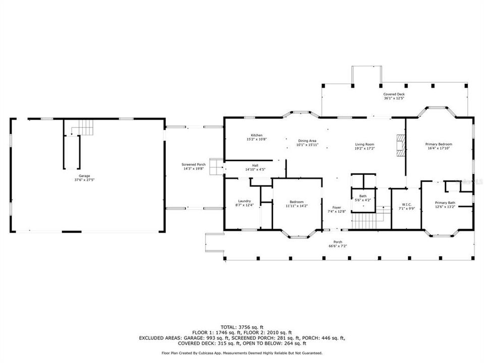
One or more photo(s) has been virtually staged. A DREAM COME TRUE... Welcome home to your 10 acre estate in Lady Lake! GORGEOUS custom built home with 4 BEDROOMS, 3 BATHS, 3,996 SQUARE FEET, 3 CAR GARAGE, ON A TOTAL OF 10- ACRES IN THE HEART OF LADY LAKE! THE MINUTE YOUR EYES MEET THIS PROPERTY, YOU WILL FALL IN LOVE OVER AND OVER! THIS HOME HAS TONS OF UPGRADES - COME SEE FOR YOURSELF – HOME EVEN HAS A BRAND NEW ROOF (2023), HVAC (2021) AND A GENERAC ENTIRE HOME GENERATOR. AS YOU ENTER THE HOME, YOU WILL SEE THE BEAUTIFUL LIVING/GREAT ROOM WITH A WARM, WELCOMING FEEL. COZY UP BY THE WOOD BURNING FIREPLACE AS YOU GAZE AT LAKE ALICE. THE EAT IN KITCHEN IS OPEN TO THE FAMILY ROOM AND JUST AROUND THE CORNER IS A LARGE LAUNDRY ROOM. THE ROOMY MASTER BEDROOM SUITE IS DOWNSTAIRS WITH LARGE MASTER BATH WITH DOUBLE VANITY AND STEP IN SHOWER. DOWNSTAIRS YOU WILL ALSO FIND ANOTHER BEDROOM THAT CAN BE USED AS A HOME OFFICE. THE OTHER TWO OVERSIZED BEDROOMS ARE UPSTAIRS WITH A FULL BATH. THE HOME HAS WOOD AND TILE FLOORING THROUGHOUT EXCEPT THE UPSTAIRS BEDROOMS WHICH ARE CARPETED. THE FRONT AND REAR PORCHES ARE PERFECT FOR ENTERTAINING AND RELAXING! THE FENCED IN PORTION OF THE HOME HAS A SPRINKLER SYSTEM AND THERE IS IRRIGATION. THE PROPERTY IS GORGEOUS WITH LOTS OF SHADE TREES AND ROOM TO GROW! THE 3 CAR GARAGE HAS A BONUS ROOM ABOVE COMPLETE WITH LAMINATE FLLORING, AC SPLIT UNIT AND 4 OVERSIZED WALK IN STORAGE SPACES! TO TOP IT OFF, THERE IS A LARGE BARN WITH ELECTRIC AND A CONCRETE FLOOR. THE DRIVEWAY LEADING TO THE PROPERTY IS UNIMPROVED. THIS PROPERTY IS LOCATED CLOSE TO SHOPPING, RESTAURANTS, AND THE VILLAGES; VERY CENTRALLY LOCATED IN CENTRAL FLORIDA AND APPROX. 1.5 HRS TO THE ORLANDO AIRPORT! CALL TODAY FOR YOUR PRIVATE SHOWING!

位置

佛罗里达 LADY LAKE 32159 房屋 待售

详情与特色

类型:
Residential
停车:
Garage Door Opener / Oversized / Workshop in Garage
建造年份:
1998
地段:
10.00 英亩
暖气:
Electric
价格/平方英尺:
$246
冷气:
Central Air
HOA:
没有数据
更多事实和特点
  • 地板

    • Ceramic Tile

    • Porcelain Tile

    暖气

    • Electric

    冷气

    • Central Air

    设备

    • Built-In Oven

    • Cooktop

    • Dishwasher

    • Disposal

    • Electric Water Heater

    • Ice Maker

    • Microwave

    • Refrigerator

    其他室内特点

    • Built-in Features

    • Cathedral Ceiling(s)

    • Eating Space In Kitchen

    • High Ceilings

    • Primary Bedroom Main Floor

    • Solid Wood Cabinets

    • Split Bedroom

    • Window Treatments

    卧室和浴室

    • 卧室: 4

    • 洗手间: 1

    • 完整的浴室: 3

  • 停车

    • Garage Door Opener

    • Oversized

    • Workshop in Garage

    房屋

    • 等级: Two

    • 外观特征: French Doors / Irrigation System

    地段

    • 地段: 10.00 英亩

    其他财产信息

    • 包裹编号: 161824090000003800

    • 分区: R-1

  • 类型与风格

    • 财产种类: Residential

    • 属性子类型: Single Family Residence

  • 公益

    • Cable Connected

    • Electricity Connected

    • Propane

  • 其他财政信息

    • 年税额: $6,460

  • 来源细节

    • MLS ID: G5094570

    其他详情

    • 建筑材料: HardiPlank Type

    • 基金会详情: Crawlspace

    • 壁炉功能: Family Room / Wood Burning

    • 洗衣功能: Electric Dryer Hookup / Inside / Laundry Room / Washer Hookup

    • 地段特征: Landscaped / Pasture

    • 天井和门廊特色: Covered / Front Porch / Rear Porch

    • 方向面: South

    • 其他结构: Shed(s) / Storage

    • 建筑风格: Ranch

    • 壁炉: 是

    • 车库空间: 3

    • 附属车库: 是

    • 车库: 是

    • 生活区域: 3996

    • 水源: Well

    • 细分名称: SLIGH & TEAGUES ADD

类似房屋

2902 MARION COUNTY ROAD placeholder 2902 MARION COUNTY ROAD
8 天
待售
$699,000
3 贝兹 2 浴室 2,579 平方英尺
2902 MARION COUNTY ROAD
39742 GELLA WAY placeholder 39742 GELLA WAY
29 天
待售
房屋
$715,000
4 贝兹 4 浴室 2,398 平方英尺
39742 GELLA WAY
960 CLUB CRESSWIND DRIVE placeholder 960 CLUB CRESSWIND DRIVE
-$5K (2025/12/11)
待售
房屋
$689,990
3 贝兹 3 浴室 2,490 平方英尺
960 CLUB CRESSWIND DRIVE
956 CLUB CRESSWIND DRIVE placeholder 956 CLUB CRESSWIND DRIVE
-$10K (2025/12/02)
待售
房屋
$739,990
3 贝兹 3 浴室 2,776 平方英尺
956 CLUB CRESSWIND DRIVE
1202 FIESTA KEY CIRCLE placeholder 1202 FIESTA KEY CIRCLE
+$20K (2025/08/08)
待售
房屋
$799,995
4 贝兹 3 浴室 2,940 平方英尺
1202 FIESTA KEY CIRCLE
S LAKE HIAWATHA DRIVE placeholder S LAKE HIAWATHA DRIVE
-$222K (2025/12/18)
待售
地段/土地
$773,000
0 room(s)
S LAKE HIAWATHA DRIVE
41015 COUNTY ROAD 25 placeholder 41015 COUNTY ROAD 25
-$246K (2025/10/29)
待售
地段/土地
$749,000
0 room(s)
41015 COUNTY ROAD 25
737 COUNTY ROAD 466 placeholder 737 COUNTY ROAD 466
-$20K (2025/01/20)
待售
商业的
$700,000
0 room(s) 1,920 平方英尺
737 COUNTY ROAD 466

The multiple listing information is provided by the Stellar MLS from a copyrighted compilation of listings. The compilation of listings and each individual listing are ©2026-present Stellar MLS. All Rights Reserved. The information provided is for consumers' personal, noncommercial use and may not be used for any purpose other than to identify prospective properties consumers may be interested in purchasing. All properties are subject to prior sale or withdrawal. All information provided is deemed reliable but is not guaranteed accurate, and should be independently verified. Listing courtesy of: PARRISH REALTY GROUP INC