特性
探索我们的清单
聯繫
告诉我们您的需求

4899 NW 36TH STREET

房屋 待售
$419,000

BTC: 13.96666667

ETH: 209.50000000

104 天
3 贝兹
2 浴室
1,804 平方英尺
Est. 预计销售范围: $0 - $0
$0

总览

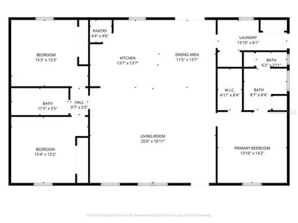
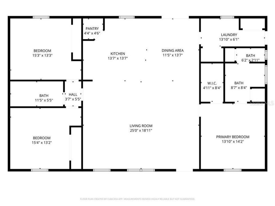
BRAND NEW CONSTRUCTION in the HIGHLY DESIRABLE HIDDEN OAKS NEIGHBORHOOD! Expected completion by mid-October! This 3 bedroom, 2 bathroom, site-built home SITTING ON 5 ACRES boasts over 1,800 heated & cooled square feet and features SO many upgrades such as luxury vinyl plank flooring, granite countertops, soft close doors & drawers, and stainless steel appliances! Spray foam insulation (low energy bill) and covered porches the front of the home - making the perfect spot to sit and relax! 1 year builder warranty! Fiber optic internet is available here. Located just north of Bell, this home sits in a quaint subdivision on a wooded lot on a PAVED ROAD! No HOA and light deed restrictions! Easy commute to High Springs and Alachua and only 3 miles to the historic Suwannee River, Rock Bluff General Store, and Rock Bluff Springs! Come enjoy low property taxes and "A" rated schools. The countryside's peace and quiet is calling! Inquire today for more details and the opportunity to see such a well built home ready for you and your family!

位置

佛罗里达 BELL 32619 房屋 待售

详情与特色

类型:
Residential
停车:
没有数据
建造年份:
2025
地段:
4.69 英亩
暖气:
Central
价格/平方英尺:
$232
冷气:
Central Air
HOA:
没有数据
更多事实和特点
  • 地板

    • Luxury Vinyl

    暖气

    • Central

    冷气

    • Central Air

    设备

    • Dishwasher

    • Range

    • Range Hood

    • Refrigerator

    其他室内特点

    • Ceiling Fan(s)

    • Open Floorplan

    卧室和浴室

    • 卧室: 3

    • 完整的浴室: 2

  • 房屋

    • 等级: One

    • 外观特征: Other

    地段

    • 地段: 4.69 英亩

    其他财产信息

    • 包裹编号: 140814036100000100

    • 分区: RES

  • 类型与风格

    • 财产种类: Residential

    • 属性子类型: Single Family Residence

  • 公益

    • Cable Available

    • Electricity Available

  • 其他财政信息

    • 年税额: $707

  • 来源细节

    • MLS ID: GC533481

    其他详情

    • 建筑材料: HardiPlank Type

    • 基金会详情: Slab

    • 洗衣功能: Inside / Laundry Room

    • 天井和门廊特色: Covered / Patio

    • 方向面: West

    • 建筑风格: Craftsman

    • 生活区域: 1804

    • 水源: Well

    • 细分名称: HIDDEN OAKS FIRST ADD

类似房屋

3780 NW COUNTY ROAD 340 placeholder 3780 NW COUNTY ROAD 340
10 天
待售
房屋
$325,000
4 贝兹 2 浴室 2,095 平方英尺
3780 NW COUNTY ROAD 340
2710 NW COUNTY ROAD 340 placeholder 2710 NW COUNTY ROAD 340
37 天
待售
$325,000
3 贝兹 2 浴室 1,512 平方英尺
2710 NW COUNTY ROAD 340
4654 NW 45TH AVENUE placeholder 4654 NW 45TH AVENUE
38 天
待售
$399,000
5 贝兹 3 浴室 2,128 平方英尺
4654 NW 45TH AVENUE
4700 NW 55TH AVENUE placeholder 4700 NW 55TH AVENUE
87 天
待售
房屋
$539,900
3 贝兹 2 浴室 1,441 平方英尺
4700 NW 55TH AVENUE
4700 NW COUNTY ROAD 340 placeholder 4700 NW COUNTY ROAD 340
92 天
待售
地段/土地
$429,000
0 room(s)
4700 NW COUNTY ROAD 340
829 S MAIN STREET placeholder 829 S MAIN STREET
139 天
待售
商业的
$450,000
0 room(s) 2,950 平方英尺
829 S MAIN STREET
1010 S MAIN STREET placeholder 1010 S MAIN STREET
245 天
待售
商业的
$320,000
0 room(s) 1,660 平方英尺
1010 S MAIN STREET
NW COUNTY ROAD 236 placeholder NW COUNTY ROAD 236
-$29K (2025/09/30)
待售
地段/土地
$390,000
0 room(s)
NW COUNTY ROAD 236

The multiple listing information is provided by the Stellar MLS from a copyrighted compilation of listings. The compilation of listings and each individual listing are ©2025-present Stellar MLS. All Rights Reserved. The information provided is for consumers' personal, noncommercial use and may not be used for any purpose other than to identify prospective properties consumers may be interested in purchasing. All properties are subject to prior sale or withdrawal. All information provided is deemed reliable but is not guaranteed accurate, and should be independently verified. Listing courtesy of: HOMETOWN REALTY OF NORTH FLORIDA, INC